Prodej rodinného domu, Ruda, Pražská, 400 m2

Pražská, Ruda

7 400 000 Kč
/za nemovitost
Hypotéka od 33 074 Kč /měs. Chci hypotéku

Parametry domu

AdresaPražská, Ruda
StavbaCihlová
Stav objektuPřed rekonstrukcí
Druh objektuSamostatný
Užitná plocha400 m2
Plocha pozemku589 m2
Třída energetické náročnostiF - Velmi nehospodárná
Elektřina230V, 400V
PlynPlynovod
OdpadVeřejná kanalizace
DopravaDálnice, Autobus
VodaVodovod, Studna
Topné tělesoRadiátory
Zdroj topeníKotel na tuhá paliva
Garáž
Sklep
Parkování

Origo partneři v Rudě

Popis

Nabídka prostorného rodinného domu v klidné ulici v obci Ruda u Nového Strašecí, okres Rakovník. Dům byl postaven v polovině devadesátých let, je v započaté rekonstrukci k dokončení dle vlastních představ. Dům kromě bydlení je možné využít také díky nebytovým prostorům – prostorné autodílny na podnikaní.

Pozemek včetně zastavěné plochy je o celkové rozloze 589 m², z toho zastavěná plocha domu je o rozloze 148 m2 (zahrada u domu 441m2). Dům má celkem 3 podlaží a je i částečně podsklepen.

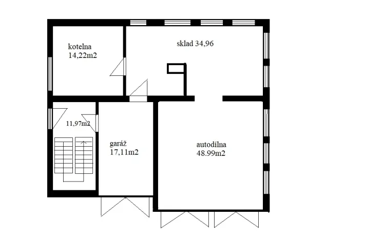
V 1 nadzemním podlaží se nachází kromě vstupní chodby se schodištěm, kotelna, sklad , garáž a dále prostorná autodílna s montážní jámou.

V 2. nadzemním podlaží se nachází se samostatným vstupem byt 3+1. Z bytu je vstupe na nedokončenou prostornou terasu.

V 3. nadzemním podlaží – podkroví ( výška stropu cca 2,1 m ) je v rekonstrukci – ve výstavbě další byt 3+1.

Dům je napojen na obecní vodovod a kanalizaci, plyn přiveden na hranici pozemku do vyzděného „antoníčku“. Na zahradě vlastní studna. Topení na pevná paliva – kotel.

V obci Ruda je mateřská škola, prodejna COOP, hostinec, obecní úřad. Dobrá dostupnost na D6 (Praha-Karlovy Vary), Hranice Prahy do 25 min. V okolí Křivoklátské lesy.

PENB = " F "

Makléř

Máte zájem o tento dům?

Tímto, v souladu s nařízením Evropského parlamentu a Rady (EU) 2016/679, v platném znění, prohlašuji, že mi je alespoň 16 let a uděluji tak svůj souhlas se zpracováním zadaných údajů (jméno, telefon, e-mail, ip adresa) společnosti B3 Technology, s.r.o., IČ: 07330600, se sídlem Novostavby 126/23, 435 11 Lom (správce dat), za účelem předání dotazu z tohoto formuláře Vámi vybranému inzerentovi a zpětného kontaktování mé osoby. Osobní údaje bude správce zpracovávat manuálně i automaticky přímo prostřednictvím svých zaměstnanců. Informace předané tímto formulářem budou uloženy v databázi správce maximálně po dobu 10 let. Odvolání souhlasu s uložením a zpracováním poskytnutých dat lze e-mailem na info@origo-reality.cz. V případě podezření na neoprávněné použití Vámi poskytnutých údajů máte právo předat podnět k šetření Úřadu pro ochranu osobních údajů. Více informací
Chystáte se prodat nemovitost?
Pomůžeme Vám!

Přihlášení k odběru

Nenechte si ujít nejnovější nabídky prodeje rodinných domů v Rudě (okr. Rakovník).