Prodej rodinného domu, Dobřenice, 66 m2

Dobřenice

Rezervováno
2 750 000 Kč
/za nemovitost
cena včetně služeb RK
Hypotéka od 12 291 Kč /měs. Chci hypotéku

Parametry domu

StavRezervováno
AdresaDobřenice
IDXA-463
StavbaSmíšená
Stav objektuPřed rekonstrukcí
Typ objektuPřízemní
Druh objektuSamostatný
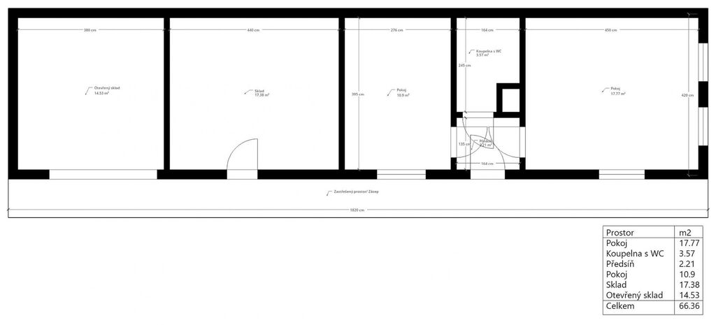
Užitná plocha66 m2
Zastavěná plocha86 m2
Podlahová plocha66 m2
Plocha pozemku947 m2
Plocha zahrady861 m2
Třída energetické náročnostiG - Mimořádně nehospodárná
Elektřina400V
OdpadVeřejná kanalizace
TopeníLokální tuhá paliva
VodaVodovod
Topné tělesoKamna
Zdroj topeníKamna
Bezbarierový přístup

Origo partneři v Dobřenicích

Popis

Rezervováno. Dobrý den, máte rádi výzvy a hledáte chalupu, kde se ,,zastavil čas and #34; nebo jen cenově dostupnou nemovitost v klidném místě, ale s dobrým dopravním napojením? Možná hledáte jen pozemek k výstavbě menšího domu, například modulárního, mobilního domu, Tiny house apod. a potřebujete vhodné místo, ale prázdné nezastavěné pozemky bez vzrostlé zeleně Vás neoslovují?

Možná právě Vás by mohla oslovit naše nová nabídka. Jedná se o prodej, dle evidence, rodinného domu, ale spoustu let slouží jako chalupa. Umístěný je v klidném místě na okraji obce Dobřenice v sousedství lesa. Celková výměra pozemku činí 947 m2 a je částečně svažitý. Jeho svažitost je právě jeho přednost, protože při umístění mobilního domu na tomto pozemku ve svahu dochází k výhledu přes střechy do dáli, a to na dobřenický zámek.

Dobřenice jsou výborně dopravně dostupné, protože je zde sjezd z dálnice D11 a do Hradce Králové máte dojezd 20 minut, do Pardubic o pár minut více. Z Prahy hodinu a z Kolína půl hodiny. Takže za tyto skvělé časy se můžete přesunout do Dobřenic, na místo, které je obklopené zelení, místním klidem, ale i historií nejen nedalekého zámku.

Interiér předmětného rodinného domu je ve stavu, který je vhodný pro nadšence a zájemce, kteří mají rádi výzvy. Dům obsahuje dvě obytné místnosti, koupelnu s WC a dva skládky. Pro ostatní zájemce se dá stav hodnotit jako k celkové rekonstrukci/ demolici s přiblížením se k dnešním představám. Ze dvou třetin má novou střešní krytinu.

Objekt je připojen k inženýrským sítím - elektřina, vodovod, kanalizace.

5 důvodů proč uvažovat o koupi:
1. Klidné místo v sousedství lesa.
2. Výborná dopravní dostupnost do velkých měst.
3. Potenciál k výstavbě malého domku s využitím zavedených sítí.
4. V místě dobrá občanská vybavenost.
5. Dobrý poměr cena/ výkon.


Děkuji za pozornost a budu se těšit na komunikaci s Vámi. Václav Růžička, realitní specialista.

Prodávající si vyhrazuje právo na výběr kupujícího dle vlastní úvahy (způsob úhrady kupní ceny, serióznost jednání apod.).

Makléř

Máte zájem o tento dům?

Tímto, v souladu s nařízením Evropského parlamentu a Rady (EU) 2016/679, v platném znění, prohlašuji, že mi je alespoň 16 let a uděluji tak svůj souhlas se zpracováním zadaných údajů (jméno, telefon, e-mail, ip adresa) společnosti B3 Technology, s.r.o., IČ: 07330600, se sídlem Novostavby 126/23, 435 11 Lom (správce dat), za účelem předání dotazu z tohoto formuláře Vámi vybranému inzerentovi a zpětného kontaktování mé osoby. Osobní údaje bude správce zpracovávat manuálně i automaticky přímo prostřednictvím svých zaměstnanců. Informace předané tímto formulářem budou uloženy v databázi správce maximálně po dobu 10 let. Odvolání souhlasu s uložením a zpracováním poskytnutých dat lze e-mailem na info@origo-reality.cz. V případě podezření na neoprávněné použití Vámi poskytnutých údajů máte právo předat podnět k šetření Úřadu pro ochranu osobních údajů. Více informací
Chystáte se prodat nemovitost?
Pomůžeme Vám!

Přihlášení k odběru

Nenechte si ujít nejnovější nabídky prodeje rodinných domů v Dobřenicích.