Prodej rodinného domu, Hlučín, 200 m2 (ID: 1843461)

Hlučín, Darkovičky

3 620 000 Kč
/za nemovitost
Hypotéka od 16 179 Kč /měs. Chci hypotéku

Parametry domu

AdresaHlučín, Darkovičky
StavbaCihlová
Stav objektuV rekonstrukci
Užitná plocha200 m2
Plocha pozemku426 m2
Sklep
Parkování

Origo partneři v Hlučíně

Popis

Rodinný dům v Hlučíně - Darkovičkách


Poloha tohoto domu vám nabídne nejen skvělou dostupnost MHD a občanskou vybavenost, ale také příjemné chvíle v blízkém lesnatém okolí.

NA REKONSTRUKCI DOMU JE MOŽNO VYUŽÍT AŽ 1 000 000,- Kč DOTACI. Více informací podám na prohlídce.

Pozemek u domu je jako stvořený pro praktické parkování i chvíle odpočinku. Jeho rozloha umožňuje pohodlný život bez nutnosti náročné údržby zahrady.

Na hranici pozemku je již přívod plynu a odpad je napojen na centrální kanalizaci, což vám usnadní plánování rekonstrukce.

Dům disponuje dvěma prostornými bytovými jednotkami a plným podsklepením.
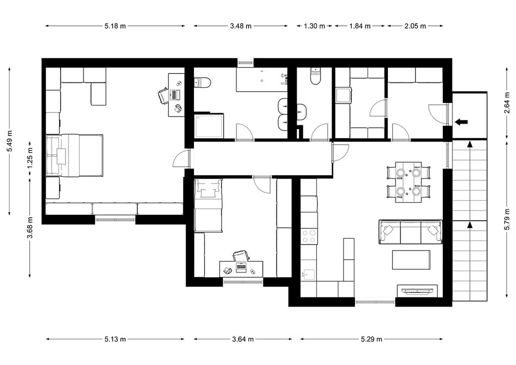
Na fotkách můžete vidět půdorys vypracovaný podle studie možných úprav.

Domluvte si se mnou prohlídku, budu se těšit.

Těšit se na vás.

Zuzana Konečná

Makléř

Máte zájem o tento dům?

Tímto, v souladu s nařízením Evropského parlamentu a Rady (EU) 2016/679, v platném znění, prohlašuji, že mi je alespoň 16 let a uděluji tak svůj souhlas se zpracováním zadaných údajů (jméno, telefon, e-mail, ip adresa) společnosti B3 Technology, s.r.o., IČ: 07330600, se sídlem Novostavby 126/23, 435 11 Lom (správce dat), za účelem předání dotazu z tohoto formuláře Vámi vybranému inzerentovi a zpětného kontaktování mé osoby. Osobní údaje bude správce zpracovávat manuálně i automaticky přímo prostřednictvím svých zaměstnanců. Informace předané tímto formulářem budou uloženy v databázi správce maximálně po dobu 10 let. Odvolání souhlasu s uložením a zpracováním poskytnutých dat lze e-mailem na info@origo-reality.cz. V případě podezření na neoprávněné použití Vámi poskytnutých údajů máte právo předat podnět k šetření Úřadu pro ochranu osobních údajů. Více informací
Chystáte se prodat nemovitost?
Pomůžeme Vám!

Přihlášení k odběru

Nenechte si ujít nejnovější nabídky prodeje rodinných domů v Hlučíně.