Prodej pozemku pro bydlení, Praha - Hodkovičky, Na lysinách, 1764 m2 (ID: 1843162)

Na Lysinách, Praha, Hodkovičky

Cena na vyžádání
/za nemovitost
info v RK, včetně DPH, včetně provize
Získejte výhodnou HYPOTÉKU Chci hypotéku

Parametry pozemku

AdresaNa Lysinách, Praha, Hodkovičky
IDN6974
Plocha pozemku1764 m2

Origo partneři v Praze 4

Stěhovací služby

Výkup a prodej starého nábytku

Popis

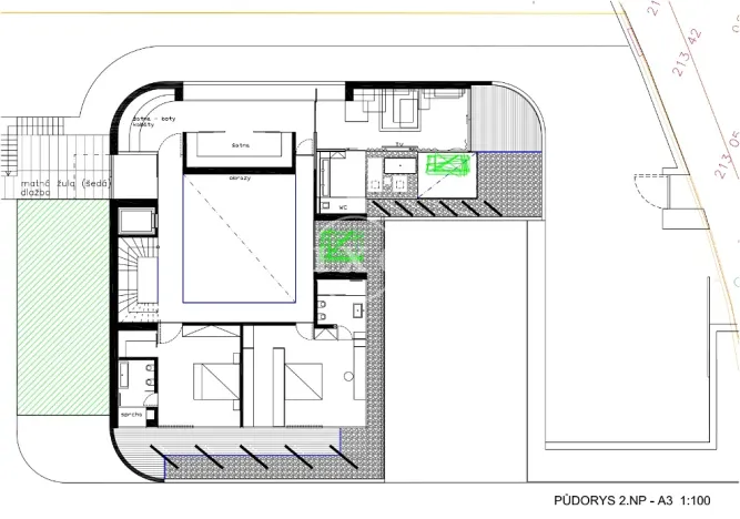
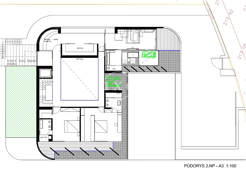
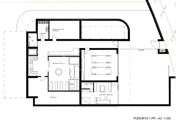
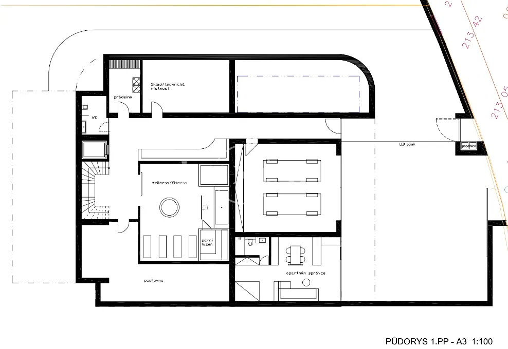
Nabízíme k prodeji stavební pozemek o celkové ploše 1 764 m2. Mírně svažitý pozemek obdélníkového tvaru a s jižní orientací, se nachází v klidné ulici Na Lysinách, Praha 4, mezi stávající zástavbou. Kompletní inženýrské sítě u pozemku.

Dle územního plánu se jedná o OB – čistě obytné. Jako hlavní využití jsou zde plochy pro bydlení.
Přípustné využití: Byty v nebytových domech, mimoškolní zařízení pro děti a mládež, mateřské školy, ambulantní zdravotnická zařízení, zařízení sociálních služeb.
Podmíněně přípustné využití: Pro uspokojení potřeb souvisejících s hlavním a přípustným využitím lze umístit zařízení pro neorganizovaný sport, obchodní zařízení s celkovou hrubou podlažní plochou nepřevyšující 300 m2, parkovací a odstavné plochy, garáže pro osobní automobily.
Dále lze umístit: Lůžková zdravotnická zařízení, církevní zařízení, malá ubytovací zařízení, školy, školská a ostatní vzdělávací zařízení, kulturní zařízení, administrativu a veterinární zařízení v rámci staveb pro bydlení při zachování dominantního podílu bydlení, ambasády, sportovní zařízení, zařízení veřejného stravování, nerušící služby místního významu.

Veškerá občanská vybavenost, zastávka MHD 100 m, škola i školka v dosahu. Nedaleko Lesopark Hodkovičky, Mezinárodní škola The Prague British School, golfové hřiště, cyklostezka a mnoho sportovního vyžití.

Pro bližší informace kontaktujte naši realitní kancelář.

Makléř

Máte zájem o tento pozemek?

Tímto, v souladu s nařízením Evropského parlamentu a Rady (EU) 2016/679, v platném znění, prohlašuji, že mi je alespoň 16 let a uděluji tak svůj souhlas se zpracováním zadaných údajů (jméno, telefon, e-mail, ip adresa) společnosti B3 Technology, s.r.o., IČ: 07330600, se sídlem Novostavby 126/23, 435 11 Lom (správce dat), za účelem předání dotazu z tohoto formuláře Vámi vybranému inzerentovi a zpětného kontaktování mé osoby. Osobní údaje bude správce zpracovávat manuálně i automaticky přímo prostřednictvím svých zaměstnanců. Informace předané tímto formulářem budou uloženy v databázi správce maximálně po dobu 10 let. Odvolání souhlasu s uložením a zpracováním poskytnutých dat lze e-mailem na info@origo-reality.cz. V případě podezření na neoprávněné použití Vámi poskytnutých údajů máte právo předat podnět k šetření Úřadu pro ochranu osobních údajů. Více informací
Chystáte se prodat nemovitost?
Pomůžeme Vám!

Přihlášení k odběru

Nenechte si ujít nejnovější nabídky prodeje pozemků pro bydlení v Praze 4.