Pronájem rodinného domu, Litomyšl, Bohdana Kopeckého, 127 m2

Bohdana Kopeckého, Litomyšl, Záhradí

9 700 000 Kč
/za měsíc
Získejte výhodnou HYPOTÉKU Chci hypotéku

Parametry domu

AdresaBohdana Kopeckého, Litomyšl, Záhradí
ID16
StavbaCihlová
Stav objektuVe výstavbě
Lokalita objektuKlidná část obce
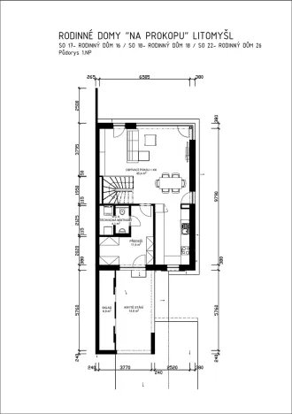
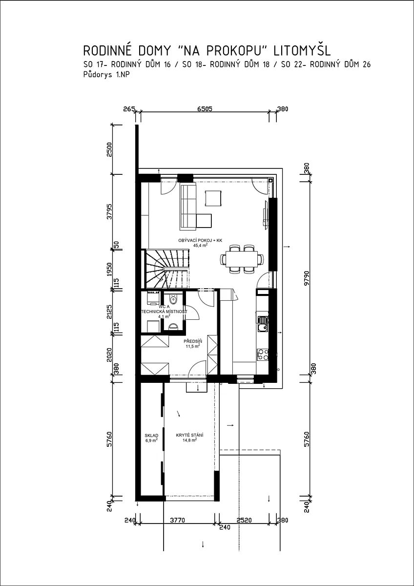
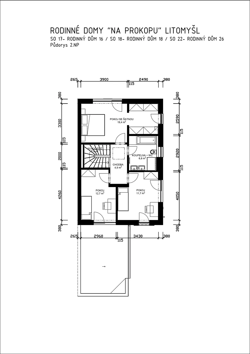
Užitná plocha127 m2
Plocha pozemku624 m2
Třída energetické náročnostiB - Velmi úsporná
Elektřina400V
OdpadVeřejná kanalizace
KomunikaceAsfaltová
TelekomunikaceInternet
DopravaDálnice, Silnice, Autobus
VodaVodovod
Topné tělesoPodlahové vytápění
Zdroj topeníTepelné čerpadlo
Zdroj teplé vodyTepelné čerpadlo
Parkování

Origo partneři v Litomyšli

Popis

Nabízíme k prodeji rodinný dům v lokalitě Na Prokopu, ul. Bohdana Kopeckého, Litomyšl. Rodinný dům se dokončuje na přání klienta. Ve standardním provedení jsou zahrnuty podlahové krytiny, obklady se sanitou včetně baterií, dveře s obložkovými zárubněmi, schodiště. Dům je vytápěn tepelným čerpadlem přes podlahové topení.

Makléř

Máte zájem o tento dům?

Tímto, v souladu s nařízením Evropského parlamentu a Rady (EU) 2016/679, v platném znění, prohlašuji, že mi je alespoň 16 let a uděluji tak svůj souhlas se zpracováním zadaných údajů (jméno, telefon, e-mail, ip adresa) společnosti B3 Technology, s.r.o., IČ: 07330600, se sídlem Novostavby 126/23, 435 11 Lom (správce dat), za účelem předání dotazu z tohoto formuláře Vámi vybranému inzerentovi a zpětného kontaktování mé osoby. Osobní údaje bude správce zpracovávat manuálně i automaticky přímo prostřednictvím svých zaměstnanců. Informace předané tímto formulářem budou uloženy v databázi správce maximálně po dobu 10 let. Odvolání souhlasu s uložením a zpracováním poskytnutých dat lze e-mailem na info@origo-reality.cz. V případě podezření na neoprávněné použití Vámi poskytnutých údajů máte právo předat podnět k šetření Úřadu pro ochranu osobních údajů. Více informací
Chystáte se prodat nemovitost?
Pomůžeme Vám!

Přihlášení k odběru

Nenechte si ujít nejnovější nabídky pronájmu rodinných domů v Litomyšli.