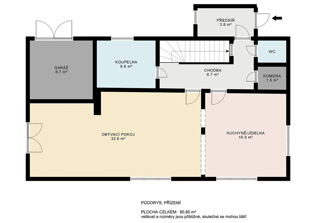
Prodej rodinného domu, Kamenný Přívoz, 159 m2

Kamenný Přívoz, Hostěradice

7 999 999 Kč
/za nemovitost
Hypotéka od 35 755 Kč /měs. Chci hypotéku

Parametry domu

Náklady na bydlení8000Kč při nehospodárném provozu 4 dospělýchosob
AdresaKamenný Přívoz, Hostěradice
StavbaCihlová
Stav objektuVelmi dobrý
Druh objektuSamostatný
Lokalita objektuKlidná část obce
Užitná plocha159 m2
Zastavěná plocha109 m2
Plocha pozemku753 m2
Třída energetické náročnostiE - Nehospodárná
Ukazatel energetické náročnosti338 kWh/m2 za rok
Elektřina230V
OdpadVeřejná kanalizace
KomunikaceAsfaltová, Zpevněná
DopravaVlak, Silnice, MHD, Autobus
VodaStudna
Topné tělesoPodlahové vytápění, Radiátory, Krb, Kotel na tuhá paliva
Zdroj topeníElektrokotel, Krb, Kotel na tuhá paliva
Zdroj teplé vodyBojler - elektro
Sklep
Parkování

Origo partneři v Kamenném Přívozu

Popis

Nabízím k prodeji dům s výhledem, nad řekou Sázavou. Malebný domek o dispozici 4+1 s bohatým technickým zázemím je obklopen vzrostlou zahradou. Není zbytečně velký a přesto má všechno, co od domova můžete očekávat. Útulný podkrovní pokojíček pro každého člena rodiny a hlavně pohodlně a moderně řešený hlavní obytný prostor s velkorysou kuchyní, krbem a komfortním vstupem na zahradu. Kontakt se zahradou vás tady nenechá chladnými v žádném ročním období. Teď na podzim zahrada hraje všemi barvami a slunce vás provází od rána, kdy nahlíží do kuchyně, až do večerní siesty na terase.
Dům byl kolaudován v roce 1942 jako rodinný dům a postupně prošel řadou stavebních úprav a renovací. Kuchyně a koupelna prošly před sedmi lety rekonstrukcí, splňují tedy současné nároky na prostor a pohodlí.V domě najdete také praktický špajz a prostornou šatnu.
Dům má vlastní vrtanou studnu. K vytápění se v přechodových obdobích využívá elektrokotel, během zimy je pak efektivnější topení peletami se zásobníkem. Klasický otevřený krb majitelé využívají spíše pro pěknou sváteční atmosféru. Dům je částečně zateplen.Prošel nedávnou pasportizací, dokumenty zašleme na vyžádání.

Na pozemku zaparkují pohodlně 2 auta, ale pro další 3 vozy je možné parkování přímo před domem. Na hlavní ulici pár kroků od domu je autobusová zastávka. V obci se nachází mateřská i základní škola.Ostatní veškerá občanská vybavenost je v přilehlých obcích, Jílovém u Prahy a Týnci nad Sázavou.

V případě zájmu o 3D virtuální prohlídku domu mne neváhejte kontaktovat, ráda se s vámi domluvím i na prohlídce přímo v domě.

Makléř

Máte zájem o tento dům?

Tímto, v souladu s nařízením Evropského parlamentu a Rady (EU) 2016/679, v platném znění, prohlašuji, že mi je alespoň 16 let a uděluji tak svůj souhlas se zpracováním zadaných údajů (jméno, telefon, e-mail, ip adresa) společnosti B3 Technology, s.r.o., IČ: 07330600, se sídlem Novostavby 126/23, 435 11 Lom (správce dat), za účelem předání dotazu z tohoto formuláře Vámi vybranému inzerentovi a zpětného kontaktování mé osoby. Osobní údaje bude správce zpracovávat manuálně i automaticky přímo prostřednictvím svých zaměstnanců. Informace předané tímto formulářem budou uloženy v databázi správce maximálně po dobu 10 let. Odvolání souhlasu s uložením a zpracováním poskytnutých dat lze e-mailem na info@origo-reality.cz. V případě podezření na neoprávněné použití Vámi poskytnutých údajů máte právo předat podnět k šetření Úřadu pro ochranu osobních údajů. Více informací
Chystáte se prodat nemovitost?
Pomůžeme Vám!

Přihlášení k odběru

Nenechte si ujít nejnovější nabídky prodeje rodinných domů v Kamenném Přívozu.