Pronájem bytu 2+kk, Praha - Vršovice, Orelská, 54 m2

Orelská, Praha, Vršovice

20 000 Kč
/za měsíc
Měsíční nájemné: 20.000,- Kč. Zálohy: 3.000,- Kč / 2 osoby, další osoba + 500,- Kč. Kauce: 40.000,- Kč. Elektřina: cca 2.500,- Kč měsíčně. Provize RK:
Získejte výhodnou HYPOTÉKU Chci hypotéku

Parametry bytu

AdresaOrelská, Praha, Vršovice
ID0279-NP00776
StavbaCihlová
Stav objektuVelmi dobrý
Patro4. z 6
VybavenoAno
VlastnictvíOsobní
Užitná plocha54 m2
Podlahová plocha54 m2
Třída energetické náročnostiG - Mimořádně nehospodárná
OdpadVeřejná kanalizace
VodaVodovod
Topné tělesoInfrapanel
Zdroj topeníInfrapanel
Zdroj teplé vodyBojler - elektro
Výtah

Origo partneři v Praze 10

Stěhovací služby

Výkup a prodej starého nábytku

Popis

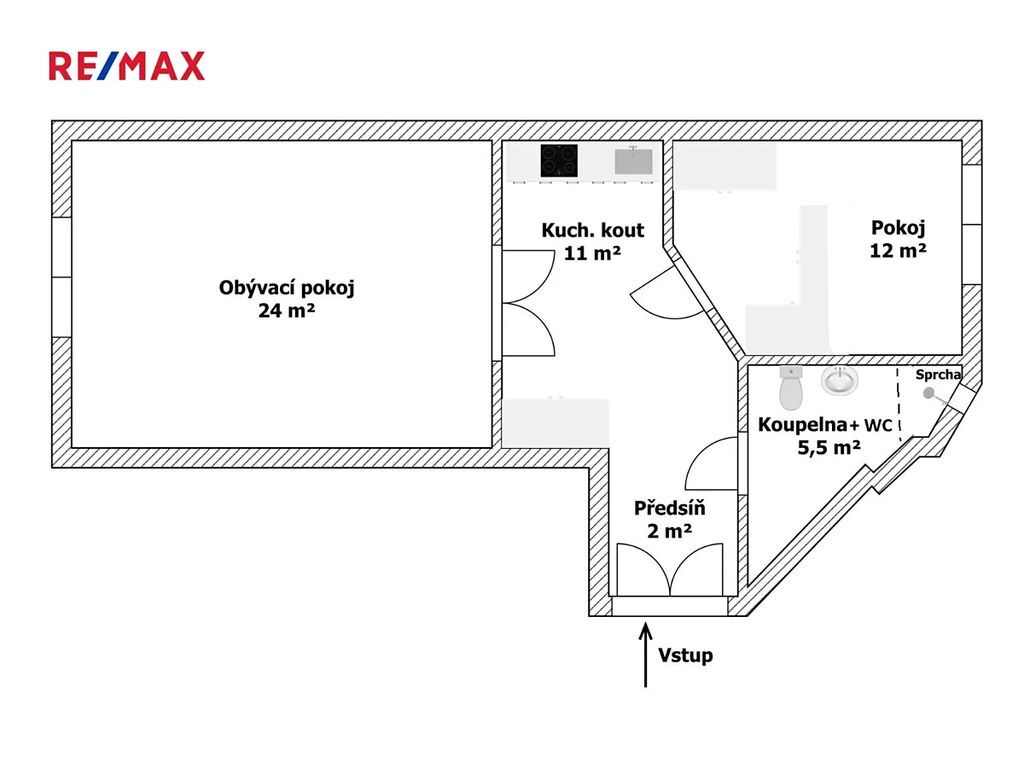
Pronájem bytu 2+kk (54,49 m²), Praha 10 - Vršovice, Orelská ul.
Ihned k nastěhování je byt v atraktivní lokalitě pražských Vršovic v blízkosti Čechova náměstí, který najdete ve 3. patře cihlového domu s výtahem.
Byt je prakticky dispozičně řešený, na vstupní chodbu navazuje kuchyňský kout, dva samostatné neprůchozí pokoje a koupelna se sprchovým koutem včetně WC.
Okno obývacího pokoje směřuje do ulice, okno ložnice do vnitrobloku.

Byt je částečně vybavený - kuchyňská linka s myčkou, vestavěná lednice s mrazákem, pračka v koupelně, manželská postel, sedací souprava, jídelní stůl se židlemi.
Úložné prostory jsou řešeny vestavěnými skříněmi.
Ohřev vody zajišťuje elektrický bojler, vytápění je řešeno stropními infrapanely, ovládanými termostatem, který umožňuje lehce udržovat nastavenou teplotu.

Měsíční nájemné: 20.000, - Kč
Záloha na služby: 2 osoby 3.000,- Kč, každá další osoba + 500,- Kč
Elektřina: přepis na nájemce (výši záloh určí dodavatel elektřiny, předpoklad cca 2.500, - Kč)
Kauce: dva měsíční nájmy
Provize RK: 18.150, - Kč vč. DPH
Internet si nájemce případně zřídí vlastní.

Uvítáme, pokud nám o sobě a dalších osobách, které by v bytě bydleli, napíšete pár informací. Děkujeme.

Byt je vhodný pro pár nebo rodinu s menšími dětmi, maximálně pro 4 osoby.
Domácí mazlíčci jsou možní po domluvě, v tom případě může být navýšena kauce.
Pouze zájemci se stabilním zaměstnáním nebo podnikáním, bez zápisu v exekučních a insolvenčních rejstřících.
V případě cizinců pouze s již platným dlouhodobým pobytem a zajištěným příjmem.
Majitel preferuje zájemce o dlouhodobý pronájem.

Tramvajovou a autobusovou zastávku najdete v těsné blízkosti domu, cesta na metro (Náměstí Míru) trvá MHD 10 minut. Přímo před domem je rezidenční modrá parkovací zóna a je zde i dostatek parkovacích míst na smíšené zóně.
V docházkové vzdálenosti je mnoho obchodů, kaváren, restaurací, v blízkosti je NC Eden a také krásný park Grébovka, který nabízí vyžití jak sportovcům, tak i rodinám s dětmi.

Makléř

Máte zájem o tento byt?

Tímto, v souladu s nařízením Evropského parlamentu a Rady (EU) 2016/679, v platném znění, prohlašuji, že mi je alespoň 16 let a uděluji tak svůj souhlas se zpracováním zadaných údajů (jméno, telefon, e-mail, ip adresa) společnosti B3 Technology, s.r.o., IČ: 07330600, se sídlem Novostavby 126/23, 435 11 Lom (správce dat), za účelem předání dotazu z tohoto formuláře Vámi vybranému inzerentovi a zpětného kontaktování mé osoby. Osobní údaje bude správce zpracovávat manuálně i automaticky přímo prostřednictvím svých zaměstnanců. Informace předané tímto formulářem budou uloženy v databázi správce maximálně po dobu 10 let. Odvolání souhlasu s uložením a zpracováním poskytnutých dat lze e-mailem na info@origo-reality.cz. V případě podezření na neoprávněné použití Vámi poskytnutých údajů máte právo předat podnět k šetření Úřadu pro ochranu osobních údajů. Více informací
Chystáte se prodat nemovitost?
Pomůžeme Vám!