Prodej rodinného domu, Vykáň, 214 m2

Vykáň

14 490 000 Kč
/za nemovitost
včetně poplatků, včetně provize, včetně právního servisu
Hypotéka od 64 762 Kč /měs. Chci hypotéku

Parametry domu

AdresaVykáň
ID28531
StavbaSmíšená
Stav objektuPo rekonstrukci
VybavenoNe
Druh objektuSamostatný
Lokalita objektuKlidná část obce
Užitná plocha214 m2
Zastavěná plocha155 m2
Podlahová plocha239 m2
Plocha pozemku367 m2
Plocha zahrady212 m2
Třída energetické náročnostiB - Velmi úsporná
Ukazatel energetické náročnosti82 kWh/m2 za rok
Elektřina230V
OdpadVeřejná kanalizace
DopravaSilnice, Autobus
VodaVodovod
Topné tělesoPodlahové vytápění, Radiátory, Krb
Zdroj topeníElektrokotel, Krb
Zdroj teplé vodyBojler - elektro
Výtah
Parkování

Origo partneři v Vykáni

Popis

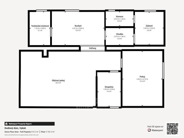
Nabízíme k prodeji prostorný rodinný dům o dispozici 6+kk, který se nachází ve slepé ulici v obci Vykáň a má dvě nadzemní podlaží. Tento dům je ideální pro rodinné bydlení a nabízí moderní a komfortní život.

V přízemí domu se nachází prostorný obývací pokoj s krbem, který vytváří útulnou atmosféru, ideální pro rodinná setkání. Na obývací pokoj navazuje kuchyň s jídelním koutem, což zajišťuje pohodlné propojení těchto prostor. Dále je v přízemí ložnice s výhledem do ulice, zádveří, technická místnost, komora a koupelna se sprchovým koutem a WC.

Do druhého patra vedou elegantní schody s Italským mramorovým obkladem, které jsou vybaveny automatickým senzorem osvětlení pro maximální komfort a bezpečnost. V horním patře se nacházejí čtyři samostatné, vzdušné pokoje s dostatkem přirozeného světla. Dva z nich mají velkorysou plochu 21,5 m² a další dva mají rozměry 15,9 m² a 17,8 m². Na patře se nachází také druhá koupelna, vybavená sprchovým koutem, vanou, WC a bidetovou sprchou, což poskytuje dostatek komfortu pro celou rodinu.

Dům je vybaven kvalitními dřevěnými dveřmi značky SAPELI, v přízemí je vinylová podlaha s dekorem dřeva a podlahové vytápění, zatímco v patře je dřevěná krytina a topení řešeno radiátory. Okna jsou trojskla, což zajišťuje vynikající tepelnou izolaci. Energetická náročnost budovy je třídy B, což znamená úsporu na energiích. Ohřev vody bojlerem a vytápění elektrokotlem (je zde udělaná příprava na tepelné čerpadlo).

Kolem domu je krásná zahrada, která je právě upravována a je zde instalována drenážní nádrž na dešťovou vodu, což je skvělé pro zavlažování. Rekonstrukcí prošel i kompletně celý plot. V okolí domu se nachází veškerá občanská vybavenost, včetně škol, školek, obchodů a sportovišť, což zajišťuje pohodlný život.

Tento dům je ideální volbou pro ty, kteří hledají komfortní a moderní bydlení s dostatkem prostoru a soukromí.
Momentálně na domě probíhají dokončovací práce a doporučuji osobní prohlídku. Více info v RK.

Makléř

Máte zájem o tento dům?

Tímto, v souladu s nařízením Evropského parlamentu a Rady (EU) 2016/679, v platném znění, prohlašuji, že mi je alespoň 16 let a uděluji tak svůj souhlas se zpracováním zadaných údajů (jméno, telefon, e-mail, ip adresa) společnosti B3 Technology, s.r.o., IČ: 07330600, se sídlem Novostavby 126/23, 435 11 Lom (správce dat), za účelem předání dotazu z tohoto formuláře Vámi vybranému inzerentovi a zpětného kontaktování mé osoby. Osobní údaje bude správce zpracovávat manuálně i automaticky přímo prostřednictvím svých zaměstnanců. Informace předané tímto formulářem budou uloženy v databázi správce maximálně po dobu 10 let. Odvolání souhlasu s uložením a zpracováním poskytnutých dat lze e-mailem na info@origo-reality.cz. V případě podezření na neoprávněné použití Vámi poskytnutých údajů máte právo předat podnět k šetření Úřadu pro ochranu osobních údajů. Více informací
Chystáte se prodat nemovitost?
Pomůžeme Vám!

Přihlášení k odběru

Nenechte si ujít nejnovější nabídky prodeje rodinných domů v Vykáni.