Prodej rodinného domu, Havlíčkův Brod, Vagonova, 300 m2

Vagonova, Havlíčkův Brod

6 240 000 Kč
/za nemovitost
Cena včetně právního servisu a provize RK
Hypotéka od 27 889 Kč /měs. Chci hypotéku

Parametry domu

AdresaVagonova, Havlíčkův Brod
ID87
StavbaCihlová
Stav objektuDobrý
VybavenoČástečně
Druh objektuŘadový
Užitná plocha300 m2
Zastavěná plocha236 m2
Podlahová plocha300 m2
Plocha pozemku342 m2
Plocha zahrady106 m2
Třída energetické náročnostiG - Mimořádně nehospodárná
OdpadVeřejná kanalizace
TopeníLokální plynové
VodaVodovod
Topné tělesoRadiátory, Krbová kamna
Bezbarierový přístup

Origo partneři v Havlíčkově Brodě

Popis

Nabízíme k prodeji dům v Havlíčkově Brodě, v těsné blízkosti sídliště Výšina, který spojuje bydlení a podnikání pod jednou střechou. Dům se nachází na pozemku o výměře 342 m2, zastavěná plocha činí 236 m2.

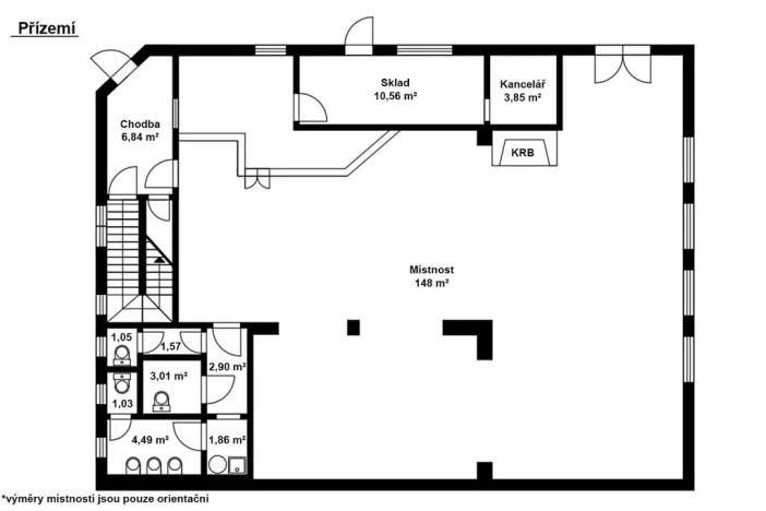
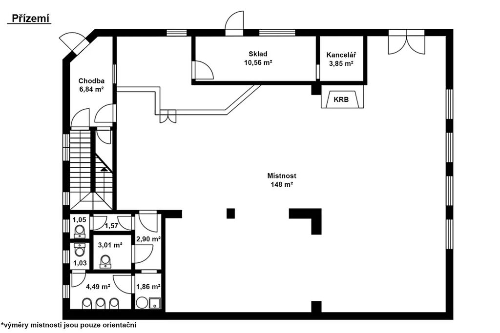
V přízemí fungovala velká pivnice dva prostorné sály, bar, zázemí, toalety pro pány i dámy a technická místnost, to vše o rozloze cca 185 m2. Tyto prostory však nemusí zůstat jen pivnicí - díky své velikosti a dispozici je lze předělat na jakýkoliv jiný komerční prostor, nebo je přetvořit na úplně jiné využití podle potřeb nového majitele. Terasu pro hosty lze zachovat nebo využít k parkování na vlastním pozemku. Na dvoře domu najdete prostorný dřevník s přímým vstupem do zadní části restaurace.

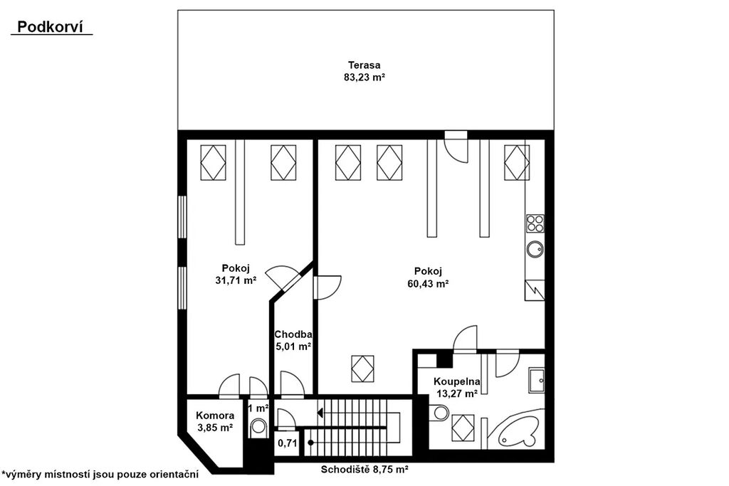
Ve 2. NP je byt s užitnou plochou 115 m2. Byt je aktuálně řešen jako 2+kk s velkou terasou, dalších 82 m2. Světlý, prostorný a s jasnou odděleností od podnikání v přízemí. Byt je celý obložen dřevem - díky tomu působí teple, útulně a má zajímavou atmosféru.

Technicky je dům připravený k okamžitému nastěhování. Plynový kotel s radiátory v obou podlažích, krb v přízemí, krbová kamna v patře, elektřina v mědi, voda v plastu, kanalizace samozřejmostí. Ohřev vody řeší bojler, střecha je ze šindele. V přízemí jsou dřevěná okna, v bytě plastová. Dům je bez zástav a břemen. Energetický štítek se zpracovává, proto prozatím uvádím tř. G.

A proč právě tady? Protože stojí na ideálním místě přímo u sídliště Výšina, kde by podnikání našlo své zákazníky každý den.

Pokud hledáte dům, ve kterém můžete nejen bydlet, ale i podnikat, tohle je přesně on.

Těším se na vás na prohlídce!

Makléř

Máte zájem o tento dům?

Tímto, v souladu s nařízením Evropského parlamentu a Rady (EU) 2016/679, v platném znění, prohlašuji, že mi je alespoň 16 let a uděluji tak svůj souhlas se zpracováním zadaných údajů (jméno, telefon, e-mail, ip adresa) společnosti B3 Technology, s.r.o., IČ: 07330600, se sídlem Novostavby 126/23, 435 11 Lom (správce dat), za účelem předání dotazu z tohoto formuláře Vámi vybranému inzerentovi a zpětného kontaktování mé osoby. Osobní údaje bude správce zpracovávat manuálně i automaticky přímo prostřednictvím svých zaměstnanců. Informace předané tímto formulářem budou uloženy v databázi správce maximálně po dobu 10 let. Odvolání souhlasu s uložením a zpracováním poskytnutých dat lze e-mailem na info@origo-reality.cz. V případě podezření na neoprávněné použití Vámi poskytnutých údajů máte právo předat podnět k šetření Úřadu pro ochranu osobních údajů. Více informací
Chystáte se prodat nemovitost?
Pomůžeme Vám!

Přihlášení k odběru

Nenechte si ujít nejnovější nabídky prodeje rodinných domů v Havlíčkově Brodě.