Prodej bytu 2+kk, Praha - Hlubočepy, náměstí Olgy Scheinpflugové, 50 m2

náměstí Olgy Scheinpflugové, Praha, Hlubočepy

8 200 000 Kč
/za nemovitost
možno přikoupit garážové stání a sklep, cena vč. provize, právního servisu a bezpečné bankovní úschovy
Hypotéka od 36 649 Kč /měs. Chci hypotéku

Parametry bytu

Adresanáměstí Olgy Scheinpflugové, Praha, Hlubočepy
IDbarrandov
StavbaCihlová
Stav objektuNovostavba
Patro2.
VlastnictvíOsobní
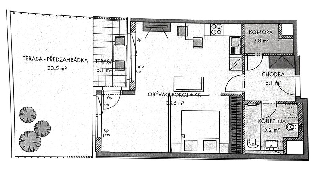
Užitná plocha50 m2
Plocha zahrady29 m2
Třída energetické náročnostiB - Velmi úsporná
Garáž
Sklep
Terasa
Výtah
Bezbarierový přístup

Origo partneři v Praze 5

Stěhovací služby

Výkup a prodej starého nábytku

Popis

Nová nabídka – krásný a prostorný byt 2+kk s luxusně velkou TERASOU/ZAHRÁDKOU. Byt je obýván teprve 2 roky a je ještě v záruce od developera!

Dispozice: obývací pokoj s kuch. koutem (+ částečně oddělená pracovna); ložnice (vestavba v OP, odkud je přístup posuvnými skleněnými dveřmi), předsíň, koupelna s prostorným sprchovým koutem + WC (přístup z předsíně), šatna (přístup z předsíně), terasa + zahrádka. Terasa je přístupná jak z obývacího pokoje, tak z pracovny a nabízí dostatek prostoru pro venkovní sezení, relaxaci – je k dispozici venkovní elektřina i voda (nezámrzný ventil) a dostatek slunce. Na všech oknech venkovní elektricky ovládané předokenní žaluzie.

Kvalitně vybavený byt – majitel může všechno zařízení přenechat - možnost začít hned bydlet, či bez dalších investic začít pronajímat (perfetní místo a dispozice na výhodný pronájem).

Byt se nachází v 1. podlaží (tj. v bezpečné výši 1. patra nad terénem – orientace na západ do klidného neprůchozího vnitrobloku s parkovou úpravou a bez provozu aut) moderního klidného a kvalitně postaveného domu (projekt Kaskády Barrandov, developer FINEP, kolaudace 2023) na nově zbudovaném náměstí.

Skvělá lokalita: v pěší dostupnosti veškerá občanská vybavenost, všechny stupně škol, aquapark, sportoviště, fitness, cyklostezky a příroda „za rohem“ (Prokopské a Dalejské údolí, perfektní dopravní dostupnost – zastávka TRAM přímo před domem (na metro B cca 12 minut), dále k dispozici BUS a pro auta rychlé napojení na Pražský okruh.

Hlavní výhody:
• veliká terasa
• kvalitní a klidný dům v oblíbeném projektu (v domě obchod, kolárna)
• perfektní lokalita
• možnost převzít kompletní zařízení bytu (v ceně přes 700.000,- Kč)
• možnost dokoupit vlastní garáž. stání (s pohodlným vjezdem/výjezdem) a se sklepem (dostatečně velký pro kola, apod.)

Osobní vlastnictví, možno financovat hypotékou, kterou pro Vás rádi zprostředkujeme za nejvýhodnějších podmínek. K dispozici a prohlídkám ihned. 25 let zkušeností, právní servis a bezpečná bankovní úschova kupní ceny pro Vaši maximální spokojenost!
Nejedná se o návrh na uzavření smlouvy, prodávající si vyhrazuje právo vybrat kupujícího dle vlastních kritérií.

Makléř

Máte zájem o tento byt?

Tímto, v souladu s nařízením Evropského parlamentu a Rady (EU) 2016/679, v platném znění, prohlašuji, že mi je alespoň 16 let a uděluji tak svůj souhlas se zpracováním zadaných údajů (jméno, telefon, e-mail, ip adresa) společnosti B3 Technology, s.r.o., IČ: 07330600, se sídlem Novostavby 126/23, 435 11 Lom (správce dat), za účelem předání dotazu z tohoto formuláře Vámi vybranému inzerentovi a zpětného kontaktování mé osoby. Osobní údaje bude správce zpracovávat manuálně i automaticky přímo prostřednictvím svých zaměstnanců. Informace předané tímto formulářem budou uloženy v databázi správce maximálně po dobu 10 let. Odvolání souhlasu s uložením a zpracováním poskytnutých dat lze e-mailem na info@origo-reality.cz. V případě podezření na neoprávněné použití Vámi poskytnutých údajů máte právo předat podnět k šetření Úřadu pro ochranu osobních údajů. Více informací
Chystáte se prodat nemovitost?
Pomůžeme Vám!

Přihlášení k odběru

Nenechte si ujít nejnovější nabídky prodeje bytů 2+kk v Praze 5.