Prodej rodinného domu, Červený Újezd, U Studny, 120 m2 (ID: 1840418)

U Studny, Červený Újezd

12 995 000 Kč
/za nemovitost
Cena zahrnuje veškeré právní služby a odměnu RK, 4500,-kč EL, 2000,-Kč voda
Hypotéka od 58 080 Kč /měs. Chci hypotéku

Parametry domu

Náklady na bydlení4500,-kč EL, 2000,-Kč voda
AdresaU Studny, Červený Újezd
ID3101
StavbaDřevěná
Stav objektuNovostavba
Druh objektuSamostatný
Lokalita objektuKlidná část obce
Užitná plocha120 m2
Zastavěná plocha74 m2
Podlahová plocha765 m2
Plocha pozemku765 m2
Plocha zahrady691 m2
Třída energetické náročnostiB - Velmi úsporná
Ukazatel energetické náročnosti7000 kWh/m2 za rok
Elektřina230V, 400V
OdpadVeřejná kanalizace
TelekomunikaceInternet
DopravaDálnice, MHD, Autobus
VodaVodovod
Bezbarierový přístup
Parkování

Origo partneři v Červeném Újezdu

Popis

Dovolujeme si nabídnout nízkoenergetickou dřevostavbu RD z roku 2018, která je rozložena ve dvou podlažích. Dispozice domu 4+kk+2xkoupelna+3xkomora.Dům je postaven jako typizovaný Kubis 74/22-Rýmařov. Exklusivně nabízíme dům od společnosti Rýmařov, která se zabývá stavbou rodinných domů již přes 50let, proto je i tento dům atraktivní volbou pro rodinné bydlení.

Dům sestává ze dvou podlažích, přičemž jednotlivá podlaží tvoří:
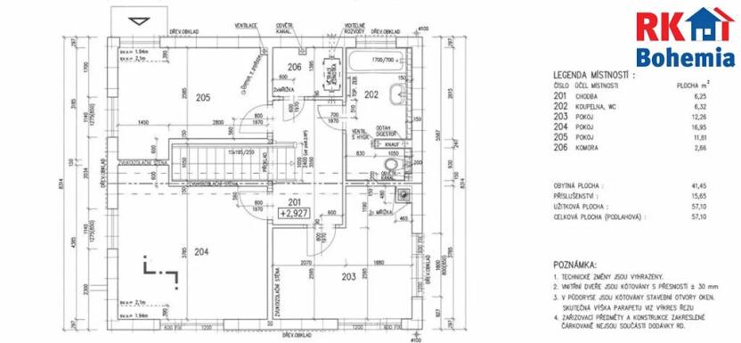
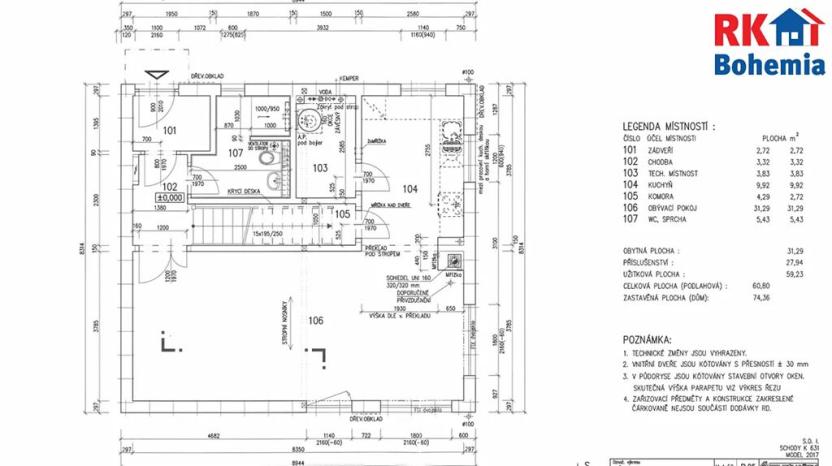
-přízemí: zádveří-3m2, chodba-3.3m2, koupelna+WC-5.5m2,tech.místnost-4m2,komora-4.2m2,kuchyň-10m2,obývací pokoj-31m2. Celková užitná plocha přízemí je 61m2.

-1.p: 3x pokoj-17m2, 12m2, 12m2, koupelna s vanou a WC-6.3m2,komora-2.7m2,chodba-6.3m2. Celková užitná plocha 1.p je 57m2.

Obě podlaží s příslušenstvím mají užitnou plochu cca 120m2. Přízemí domu nabízí krásný obytný a světlý prostor s kompletně vybavenou kuchyní a krbovými kamny, které přispívají nejen k příjemné atmosféře, ale současně dokáží vytopit celé přízemí a také snížit spotřebu el.energie domu.

Každý určitě ocení vstup přímo z jídelny na prostornou zastřešenou terasu, která poskytuje dostatek prostoru ke grilování, ale i odpočinku na odpolední kávu. Tato terasa, jako i celá zahrada, je situována na jih, takže poskytuje sluneční svit v průběhu celého dne.Střešní rošty jsou regulavatelné na průchod více světla.
Zahrada má dostatek plochy pro posezení u ohniště, kůlnu, tech.místnost na nářadí, trampolínu a další vyžití.

Na pozemku domu se nalézá prostorná plocha na parkování, třeba hned pro 4 automobily (podloží bylo zpevněno i na parkování karavanu). Vjezd na pozemek je bezproblémový, díky automatické posuvné bráně.
Dům je napojen na veškeré IS - El,voda,kanalizace+plyn v případě potřeby na hranici pozemku. Nemovitost dále nabízí detenční nádrž na dešťovou vodu v objemu 4000l a zalévání zahrady přes el. čerpadlo.

Vytápění domu zajišťuje el.digitální centrální vytápění s termostaty v každé místnosti od společnosti Siemens.Tento system je možno také nastavit tak, že budete mít v každé místnosti jinou teplotu. O bezpečnost domu se stará alarmový systém od společnosti Jablotron.

Červený Újezd je vynikající a klidná lokalita pro rodinné bydlení vzdálená jen 7km od hranice Prahy. V obci je obchod se základními potravinami, školka a ZŠ je v nedaleké Unhošti. Základní škola v docházkové vzdálenosti Svárov. Jezdí zde PID , kterou se dostanete do Unhoště a na Zličín metro B.

Celkově mohu tuto nemovitost jen vřele doporučit. Ne jen ohledně velice hezkého provedení domu, ale i cenově v porovnání s nemovitostmi v okolí, věříme, že je to velice zajímavá nabídka. Rád se s vámi osobně setkám na prohlídce tohoto krásného domu, který je možno financovat i hypotečním úvěrem.

Makléř

Máte zájem o tento dům?

Tímto, v souladu s nařízením Evropského parlamentu a Rady (EU) 2016/679, v platném znění, prohlašuji, že mi je alespoň 16 let a uděluji tak svůj souhlas se zpracováním zadaných údajů (jméno, telefon, e-mail, ip adresa) společnosti B3 Technology, s.r.o., IČ: 07330600, se sídlem Novostavby 126/23, 435 11 Lom (správce dat), za účelem předání dotazu z tohoto formuláře Vámi vybranému inzerentovi a zpětného kontaktování mé osoby. Osobní údaje bude správce zpracovávat manuálně i automaticky přímo prostřednictvím svých zaměstnanců. Informace předané tímto formulářem budou uloženy v databázi správce maximálně po dobu 10 let. Odvolání souhlasu s uložením a zpracováním poskytnutých dat lze e-mailem na info@origo-reality.cz. V případě podezření na neoprávněné použití Vámi poskytnutých údajů máte právo předat podnět k šetření Úřadu pro ochranu osobních údajů. Více informací
Chystáte se prodat nemovitost?
Pomůžeme Vám!

Přihlášení k odběru

Nenechte si ujít nejnovější nabídky prodeje rodinných domů v Červeném Újezdu (okr. Praha-západ).