Pronájem kanceláře, Brno, 60 m2 (ID: 1839827)

Brno, Veveří

19 625 Kč
/za měsíc
+ veškeré energie, chlazení, voda a služby 8029Kč/měsíc + provize RK 1 měsíční nájem bez služeb, bez DPH
Získejte výhodnou HYPOTÉKU Chci hypotéku

Parametry nemovitosti

AdresaBrno, Veveří
ID000568-19
StavbaCihlová
Stav objektuPo rekonstrukci
Patro2. z 6
VybavenoNe
Lokalita objektuCentrum obce
Užitná plocha60 m2
Třída energetické náročnostiG - Mimořádně nehospodárná
Elektřina230V
OdpadVeřejná kanalizace
KomunikaceAsfaltová
TelekomunikaceTelefon, Internet, Kabelové rozvody
DopravaVlak, Dálnice, Silnice, MHD, Autobus
VodaVodovod
Výtah
Bezbarierový přístup

Origo partneři v Brně

Popis

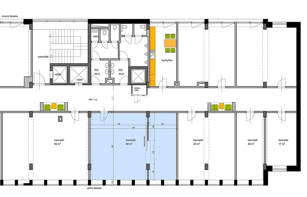
Nabízíme k pronájmu dvě propojené kanceláře v rámci moderní administrativní budovy v centru města Brna. Celková výměra je 60m2 a prostor je rozdělen na kancelář 39m2 a 21m2 dřevěnými posuvnými dveřmi. Menší kancelář lze využívat např. jako jednací místnost, místo pro vedoucího kanceláře apod. Vchod do kanceláře je přes větší 39m2 prostor.

Podlaží má sdílené sociální zázemí, kuchyňku, je zde odpočinková zóna a zóna pro nerušené telefonování. Budova je vybavena recepcí/ ostrahou, výtahem, klimatizací a je zde k dispozici i sdílená zasedací místnost. Budova má vlastní odpočinkovou zónu se zelení a omezené podzemní parkovací stání. V okolí objektu je modrá parkovací zóna B.
Podrobnosti Vám rádi poskytneme v RK.

Makléř

Máte zájem o tuto nemovistost?

Tímto, v souladu s nařízením Evropského parlamentu a Rady (EU) 2016/679, v platném znění, prohlašuji, že mi je alespoň 16 let a uděluji tak svůj souhlas se zpracováním zadaných údajů (jméno, telefon, e-mail, ip adresa) společnosti B3 Technology, s.r.o., IČ: 07330600, se sídlem Novostavby 126/23, 435 11 Lom (správce dat), za účelem předání dotazu z tohoto formuláře Vámi vybranému inzerentovi a zpětného kontaktování mé osoby. Osobní údaje bude správce zpracovávat manuálně i automaticky přímo prostřednictvím svých zaměstnanců. Informace předané tímto formulářem budou uloženy v databázi správce maximálně po dobu 10 let. Odvolání souhlasu s uložením a zpracováním poskytnutých dat lze e-mailem na info@origo-reality.cz. V případě podezření na neoprávněné použití Vámi poskytnutých údajů máte právo předat podnět k šetření Úřadu pro ochranu osobních údajů. Více informací
Chystáte se prodat nemovitost?
Pomůžeme Vám!

Přihlášení k odběru

Nenechte si ujít nejnovější nabídky pronájmu kanceláří v Brně.