Prodej rodinného domu, Boršice, 241 m2 (ID: 1839757)

Boršice

3 250 000 Kč
/za nemovitost
Provizi RK hradí prodávající
Hypotéka od 14 526 Kč /měs. Chci hypotéku

Parametry domu

AdresaBoršice
IDJ11013
StavbaCihlová
Stav objektuPřed rekonstrukcí
VybavenoNe
Typ objektuPatrový
Druh objektuRohový
Lokalita objektuKlidná část obce
VlastnictvíOsobní
Užitná plocha241 m2
Zastavěná plocha115 m2
Podlahová plocha250 m2
Plocha pozemku512 m2
Plocha zahrady325 m2
Třída energetické náročnostiG - Mimořádně nehospodárná
Elektřina230V, 400V
PlynPlynovod
OdpadVeřejná kanalizace
TopeníÚstřední plynové
KomunikaceAsfaltová
DopravaSilnice, Autobus
VodaVodovod
Topné tělesoRadiátory
Zdroj topeníPlynový kotel
Zdroj teplé vodyPlynový kotel
Balkon
Garáž
Sklep
Výtah
Bezbarierový přístup
Parkování

Origo partneři v Boršicích

Popis

Ve výhradním zastoupení majitele Vám nabízíme k prodeji rohový, patrový rodinný dům 3+1 v malebné obci Boršice, nedaleko Buchlovic.

Hledáte ideální kombinaci klidu venkova a dostupnosti městské infrastruktury? Tento dům s celkovou výměrou 512 m² je přesně to, co hledáte!

✅ Klíčové vlastnosti nemovitosti:
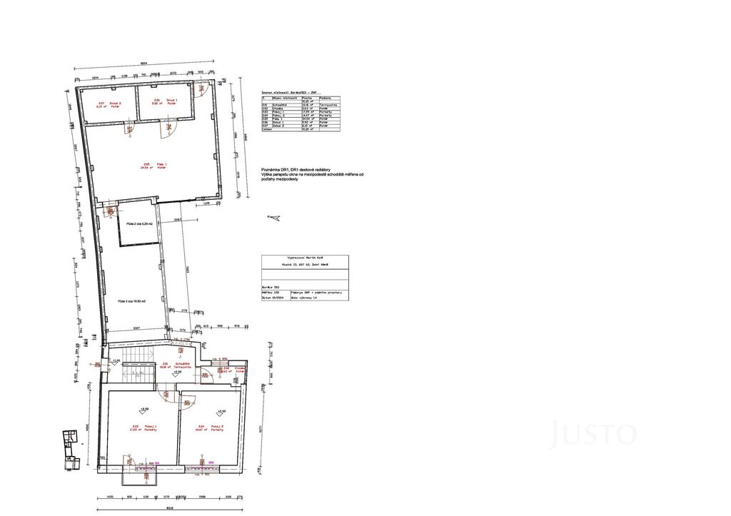
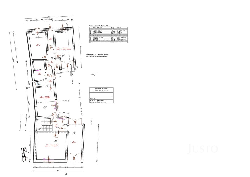
• Dispozice 3+1: Prostorný obývací pokoj, kuchyně, koupelna, sklad a garáž v přízemí. V patře dva pokoje a místnost se vstupem na půdu.
• Rekonstrukce: Probíhající rekonstrukce zahrnuje nové rozvody topení, elektroinstalaci v mědi a nové kanalizační a vodovodní přípojky.
• Inženýrské sítě: Dům je napojen na veřejný vodovod, kanalizaci, elektřinu a plyn. Topení zajišťuje plynový kotel, ohřev vody plynový bojler.
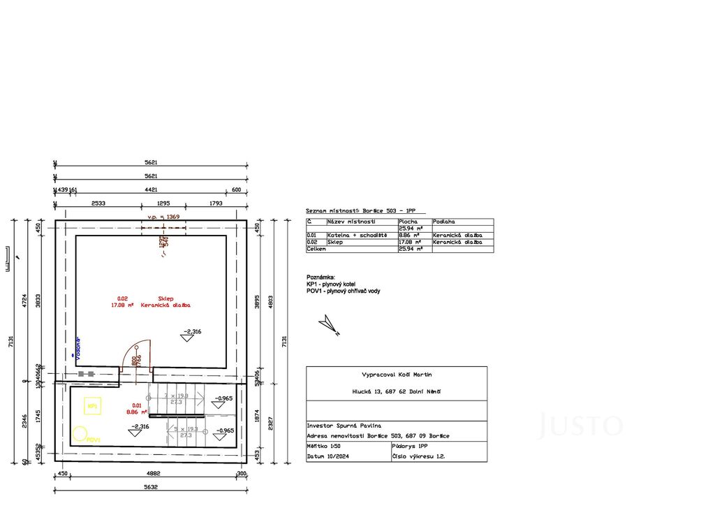
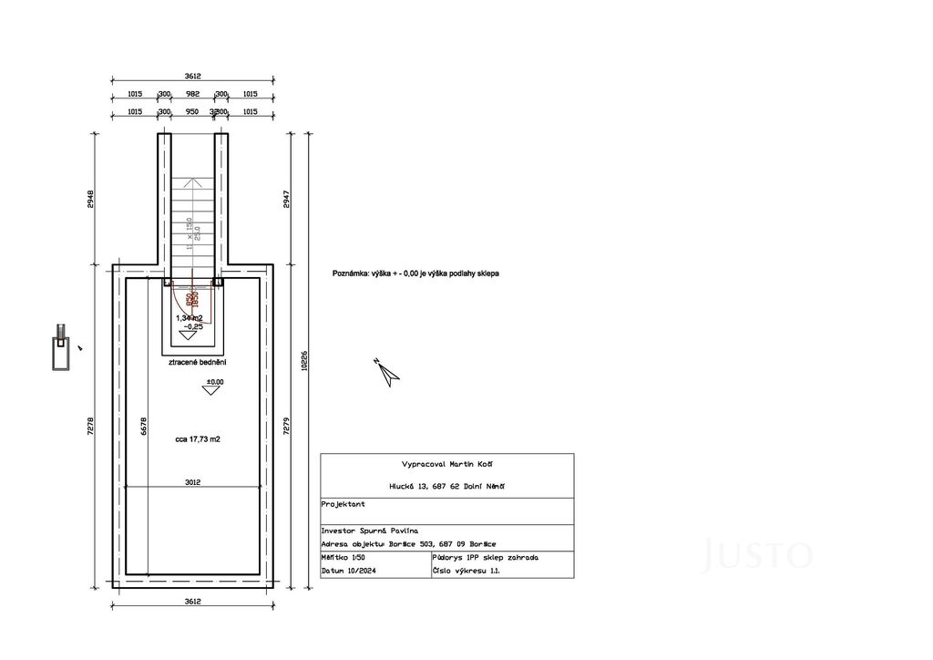
• Zahrada a příslušenství: K domu patří zahrada o výměře 352 m², předzahrádka, dvorek, garáž, dva sklepy, skladový prostor nad garáží, skleník a kovová konstrukce skladu.
• Užitná plocha: Celková užitná plocha domu je 241,51 m², z toho přízemí 106,69 m², patro 91,15 m² a sklepy 43,67 m².

✅ Lokalita:
• Obec Boršice: Nachází se pouhých 10 km od Uherského Hradiště a 3 km od Buchlovic. Pravidelné autobusové spojení do Uherského Hradiště zajišťuje snadnou dostupnost.
• Okolí: Klidná lokalita s krásnou přírodou a možnostmi pro volnočasové aktivity.

✅Vizualizace: Fotografie interiérů obsahují i vizualizace, které ukazují, jak by mohly místnosti vypadat po dokončení rekonstrukce.
✅Prohlídka: Rádi vám poskytneme další detaily a domluvíme prohlídku nemovitosti. Vyplňte formulář na konci inzerátu a do 15 minut obdržíte e-mail s pokyny k prohlídce a veškerými dostupnými informacemi a dokumenty k nemovitosti. Pokud e-mail neobdržíte do 30 minut, zkontrolujte složku nevyžádané pošty (Spam).

✅Financování:
Pomoc s financováním: Pomůžeme vám získat financování koupě této nemovitosti.
Majitel si vyhrazuje právo prodat nemovitost nejvýhodnější nabídce.

Neváhejte a domluvte si prohlídku ještě dnes!

Makléř

Máte zájem o tento dům?

Tímto, v souladu s nařízením Evropského parlamentu a Rady (EU) 2016/679, v platném znění, prohlašuji, že mi je alespoň 16 let a uděluji tak svůj souhlas se zpracováním zadaných údajů (jméno, telefon, e-mail, ip adresa) společnosti B3 Technology, s.r.o., IČ: 07330600, se sídlem Novostavby 126/23, 435 11 Lom (správce dat), za účelem předání dotazu z tohoto formuláře Vámi vybranému inzerentovi a zpětného kontaktování mé osoby. Osobní údaje bude správce zpracovávat manuálně i automaticky přímo prostřednictvím svých zaměstnanců. Informace předané tímto formulářem budou uloženy v databázi správce maximálně po dobu 10 let. Odvolání souhlasu s uložením a zpracováním poskytnutých dat lze e-mailem na info@origo-reality.cz. V případě podezření na neoprávněné použití Vámi poskytnutých údajů máte právo předat podnět k šetření Úřadu pro ochranu osobních údajů. Více informací
Chystáte se prodat nemovitost?
Pomůžeme Vám!

Přihlášení k odběru

Nenechte si ujít nejnovější nabídky prodeje rodinných domů v Boršicích.