Pronájem bytu 3+1, Praha, Slunečnicová, 77 m2 (ID: 1839716)

Slunečnicová, Praha 10

26 500 Kč
/za měsíc
Získejte výhodnou HYPOTÉKU Chci hypotéku

Parametry bytu

AdresaSlunečnicová, Praha 10
IDJ11153
StavbaCihlová
Stav objektuVelmi dobrý
Patro3. z 4
VybavenoČástečně
Lokalita objektuKlidná část obce
VlastnictvíOsobní
Užitná plocha77 m2
Podlahová plocha81 m2
Třída energetické náročnostiG - Mimořádně nehospodárná
Elektřina230V, 400V
OdpadVeřejná kanalizace
TopeníÚstřední dálkové
VodaVodovod
Topné tělesoRadiátory
Zdroj topeníÚstřední dálkové
Zdroj teplé vodyPlynová karma
Balkon
Garáž
Sklep
Lodžie
Výtah
Bezbarierový přístup
Parkování

Origo partneři v Praze 10

Stěhovací služby

Výkup a prodej starého nábytku

Popis

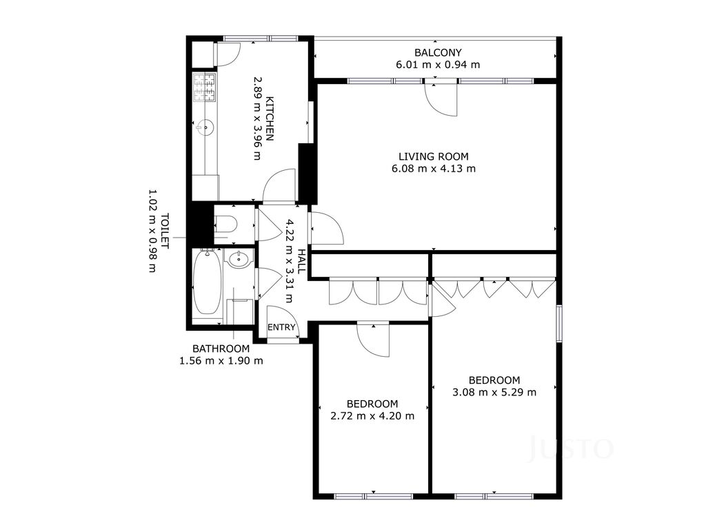
Nabízíme k pronájmu byt 3+1 (77 m²) v ulici Slunečnicová, ve vyhledávané čtvrti Praha - Záběhlice. Tento světlý byt je ideální pro ty, kteří hledají bydlení s veškerou občanskou vybaveností na dosah.

ZÁJEMCE NEHRADÍ PROVIZI RK!

Klíčové informace k nemovitosti:
Dispozice a umístění:
- Byt 3+1 v osobním vlastnictví
- Podlahová plocha 77 m²
- Lodžie 5,76 m²
- Balkon 4,02 m²
- Garáž 16 m²
- Sklepní kóje
- Orientace bytu:
· Obývací pokoj s lodžií a kuchyně orientovány na jiho-západ do klidného vnitrobloku
· Ložnice 1 a ložnice 2 orientovány na jiho-východ do klidného vnitrobloku
- Umístění: 3 NP
- Byt je ve velmi dobrém stavu:
· Parkety, plovoucí podlaha a linoleum
· Plastová okna s novými žaluziemi
· Kuchyňská linka se všemi spotřebiči – lednice, plynový sporák s plynovou troubou, digestoř, mikrovlnná trouba
· Koupelna s vanou, umyvadlem a keramickým obkladem, plynová karma na ohřev vody a pračka
· Samostatná toaleta
· Byt se pronajímá nevybavený

Cena pronájmu:
- Smlouva uzavřená na dobu určitou (1 rok) s možností prodloužení, ideální dlouhodobý pronájem.
- Nájemné 26 500 Kč, zálohy na služby 5 000 Kč + elektřina a plyn převedena na podnájemníka.
- Nájemné a zálohy na služby se platí vždy měsíc předem.
- Vratná kauce ve výši dvou měsíčních nájmů 53 000 Kč.
- V prvním měsíci nájemního bydlení je potřeba složit: vratnou kauci 53 000 Kč, nájemné za stávající měsíc 26 500 Kč + 5 000 Kč poplatky, nájemné za následující měsíc 26 500 Kč + 5 000 Kč poplatky k 20. dni daného měsíce, tj. celkovou částku 116 000 Kč.
- Zájemce nehradí provizi RK!

Výhody lokality:
- Skvělá občanská vybavenost a dopravní dostupnost
- V pěším dosahu:
· zastávka tram a bus Sídliště Zahradní město (přímý spoj do centra metro "A" Skalka, metro "A" Strašnická)
· mateřská i základní škola, sportovní a dětská hřiště
· sportovní areál Hamr sport

- V dojezdové vzdálenosti:
· Vivo Hostivař
· Hostivařský lesopark

Byt je k nastěhování ihned.

Další informace:
- Majitel si vyhrazuje právo výběru nejvýhodnější nabídky v případě více zájemců

Zaujala Vás tato nabídka? Neváhejte mě kontaktovat – ráda Vám projekt osobně představím!

Makléř

Máte zájem o tento byt?

Tímto, v souladu s nařízením Evropského parlamentu a Rady (EU) 2016/679, v platném znění, prohlašuji, že mi je alespoň 16 let a uděluji tak svůj souhlas se zpracováním zadaných údajů (jméno, telefon, e-mail, ip adresa) společnosti B3 Technology, s.r.o., IČ: 07330600, se sídlem Novostavby 126/23, 435 11 Lom (správce dat), za účelem předání dotazu z tohoto formuláře Vámi vybranému inzerentovi a zpětného kontaktování mé osoby. Osobní údaje bude správce zpracovávat manuálně i automaticky přímo prostřednictvím svých zaměstnanců. Informace předané tímto formulářem budou uloženy v databázi správce maximálně po dobu 10 let. Odvolání souhlasu s uložením a zpracováním poskytnutých dat lze e-mailem na info@origo-reality.cz. V případě podezření na neoprávněné použití Vámi poskytnutých údajů máte právo předat podnět k šetření Úřadu pro ochranu osobních údajů. Více informací
Chystáte se prodat nemovitost?
Pomůžeme Vám!