Prodej bytu 1+kk, Hurgáda,Egypt, 59 m2

Hurgáda,Egypt

1 700 000 Kč
/za nemovitost

Parametry bytu

AdresaHurgáda,Egypt
ID15540
StavbaCihlová
Stav objektuNovostavba
Patro3. z 4
VybavenoNe
Lokalita objektuCentrum obce
VlastnictvíOsobní
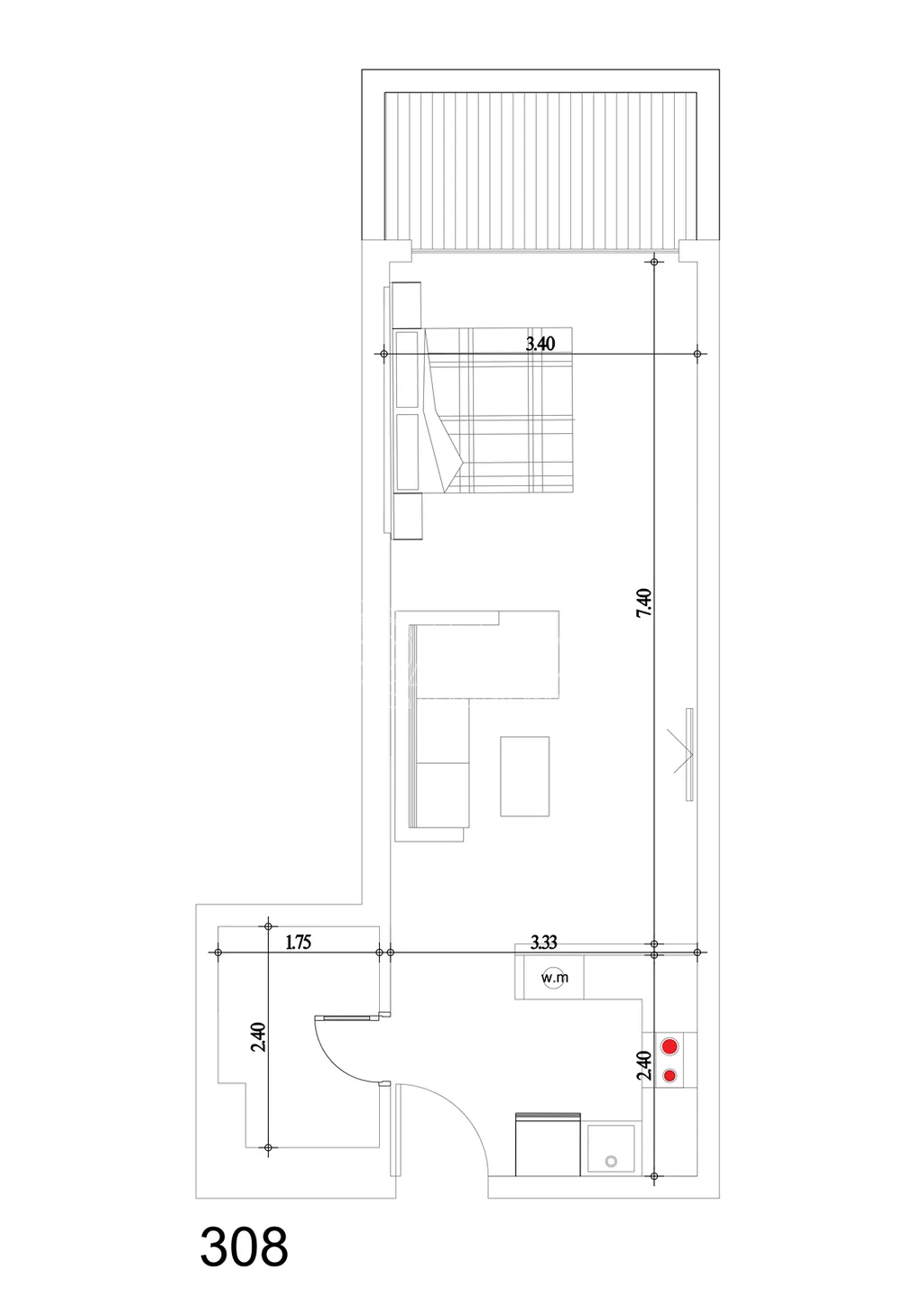
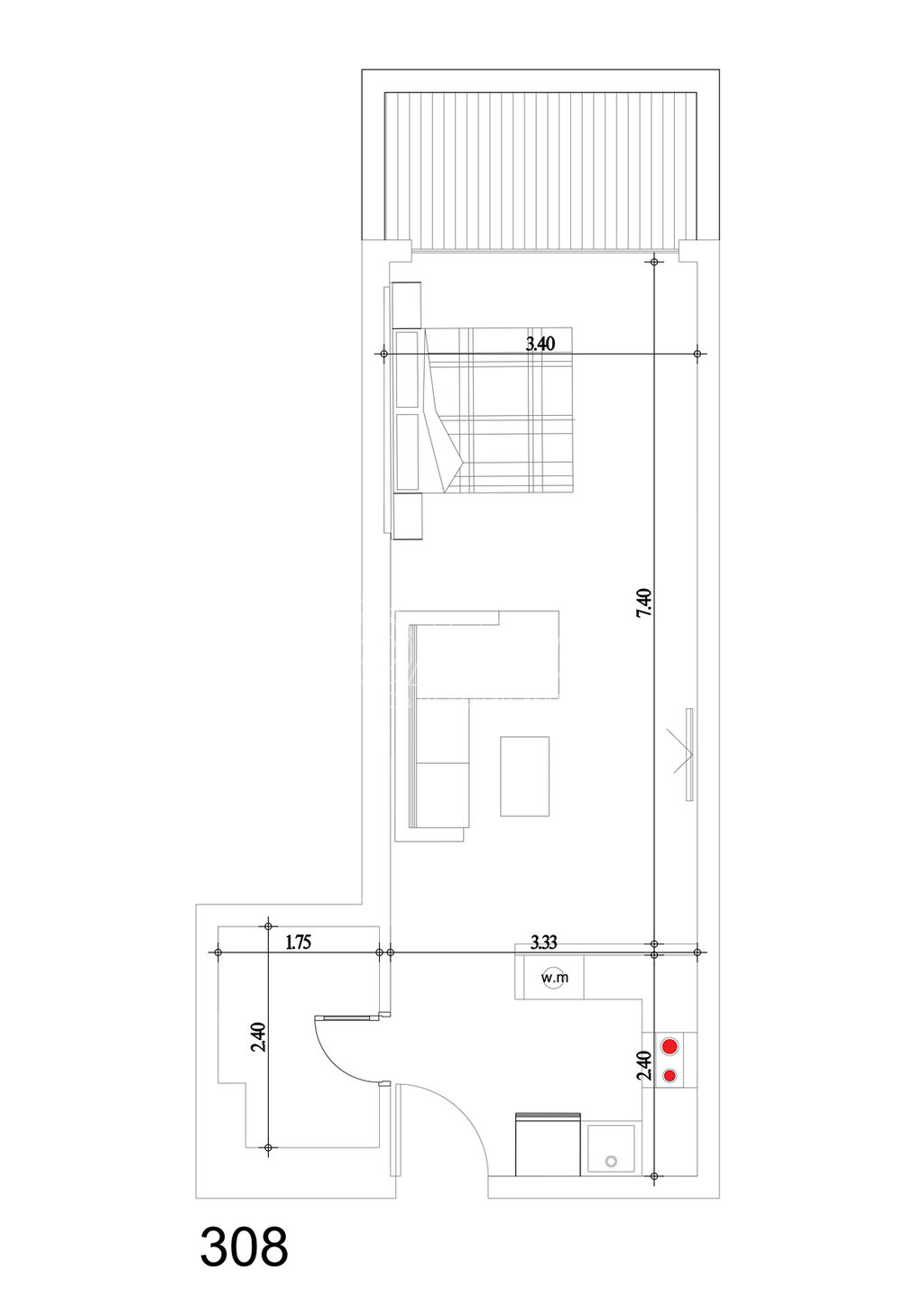
Užitná plocha59 m2
Třída energetické náročnostiG - Mimořádně nehospodárná

Origo partneři

Popis

Mám pro Vás příležitost ke koupi krásného světlého bytu / studia (1+kk) s částečným výhledem na moře. Bytový projekt Al Hambra v Hurgádě nabízí bydlení na dobré adrese v dosahu všeho, co můžete k pohodlnému užívání nebo pronajímání bytu potřebovat.

Nabízený byt má započtenou plochu 59 m2 (včetně podílu na společných prostorách, přibl. 20 % ze započtené plochy). Byt má dispozici 1+kk (velký pokoj s kuchyňským koutem a koupelna s WC) s lodžií. Byt se nachází na 3. patře čtyřpatrové budovy, výhled je na klidný bulvár Mamsha a moře vzdálené přibl. 200 m vzdušnou čarou. Orientace bytu je východní. Je připraven k okamžitému užívání.

Byt je vkusně zařízený kvalitním nábytkem (manželská postel s nočními stolky, prostorná skříň s posuvnými dveřmi, rozkládací gauč, konferenční stolek, velké zrcadlo, 2 barové židle) a velkou kuchyňskou linkou ve tvaru U s mramorovou pracovní deskou a spotřebiči (varná deska, mikrovlnná trouba, pračka, velká lednička s mrazničkou, v lince je místo na instalaci trouby). Byt je dále vybaven kvalitní klimatizací a zatemňovacími závěsy. Zájemcům poskytnu video bytu a jeho vybavení.

Rezidenční projekt Al Hambra 1st Avenue je situován v těsné blízkosti centra Hurgády, na ulici El Mamsha, která jednou z nejznámějších turistických oblastí v Hurgádě. Cesta z mezinárodního letiště trvá jen 5 minut. Lokalita je klidná, čistá a převážně s evropskou komunitou a bohatým zastoupením české komunity přímo v rezidenci Al Hambra a ve vedlejším projektu Princess.

Rezort zahrnuje rezidenční budovy, velký bazén, zahradu, restaurace, fitness, obchody, butiky, služby, wellness, hypermarket, lékařskou kliniku a parkoviště. V budově bude k dispozici ostraha, recepce, hotelové služby a správa nemovitosti včetně služby pronajímání bytů. Samozřejmostí jsou výtahy ve všech budovách.

S koupí bytu souvisí úhrada právních služeb v Egyptě.

Bytový komplex Al Hambra se nyní dokončuje, byty se již nyní postupně odevzdávají do užívání majitelům. Služby a komerční jednotky budou postupně zahajovat provoz během roku 2025.

Majitelé bytů mají přístup na soukromou pláž vzdálenou 300 m od rezidence určenou pouze pro majitele bytů v rezortech developera. Užívání pláže je umožněno formou klubového členství s ročním předplatným nebo zvýhodněným denním vstupným.

V bytovém projektu je k dispozici i mnoho dalších bytů menší i větší velikosti s výhledem na bazén, nebo do vedlejší zástavby/na hory.

Prodejem nemovitosti mé služby nekončí. Svým klientům společně s mým týmem zajistíme právní servis, pomůžeme se zařizováním bytu, poskytneme praktické informace, pomůžeme s řešením pronajímání bytu. Na mých stránkách bytyvegypte najdete mnoho odpovědí na často kladené otázky a videa s užitečnými informacemi o koupi nemovitosti a životě v Egyptě. Pomohu Vám případně i s řešením hypotečního úvěru na koupi bytu v Egyptě (s podmínkou zastavení nemovitosti v ČR).

Makléř

Máte zájem o tento byt?

Tímto, v souladu s nařízením Evropského parlamentu a Rady (EU) 2016/679, v platném znění, prohlašuji, že mi je alespoň 16 let a uděluji tak svůj souhlas se zpracováním zadaných údajů (jméno, telefon, e-mail, ip adresa) společnosti B3 Technology, s.r.o., IČ: 07330600, se sídlem Novostavby 126/23, 435 11 Lom (správce dat), za účelem předání dotazu z tohoto formuláře Vámi vybranému inzerentovi a zpětného kontaktování mé osoby. Osobní údaje bude správce zpracovávat manuálně i automaticky přímo prostřednictvím svých zaměstnanců. Informace předané tímto formulářem budou uloženy v databázi správce maximálně po dobu 10 let. Odvolání souhlasu s uložením a zpracováním poskytnutých dat lze e-mailem na info@origo-reality.cz. V případě podezření na neoprávněné použití Vámi poskytnutých údajů máte právo předat podnět k šetření Úřadu pro ochranu osobních údajů. Více informací
Chystáte se prodat nemovitost?
Pomůžeme Vám!

Přihlášení k odběru

Nenechte si ujít nejnovější nabídky prodeje bytů 1+kk.