Prodej bytu 2+1, Zlín, Dukelská, 52 m2

Dukelská, Zlín

4 980 000 Kč
/za nemovitost
včetně provize, včetně právního servisu
Hypotéka od 22 258 Kč /měs. Chci hypotéku

Parametry bytu

AdresaDukelská, Zlín
ID2513
StavbaCihlová
Stav objektuPo rekonstrukci
Patro3. z 5
VybavenoAno
Lokalita objektuSídliště
VlastnictvíOsobní
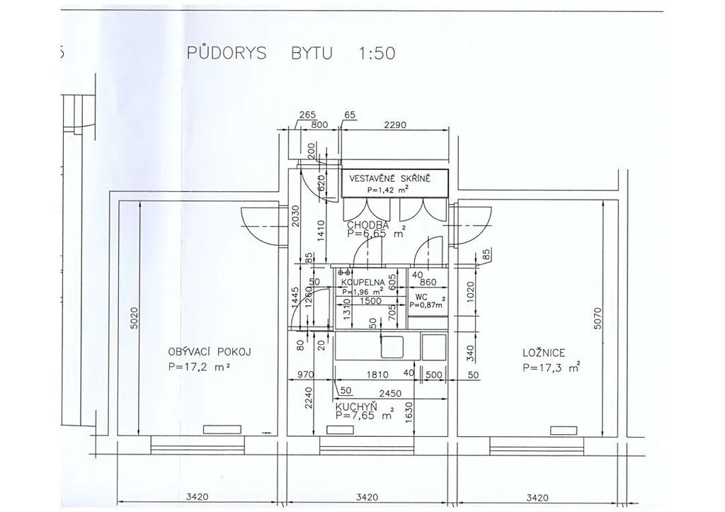
Užitná plocha52 m2
Třída energetické náročnostiD - Méně úsporná
Ukazatel energetické náročnosti148 kWh/m2 za rok
Elektřina230V
OdpadVeřejná kanalizace
KomunikaceAsfaltová
TelekomunikaceInternet, Kabelová televize
DopravaVlak, Dálnice, Silnice, MHD, Autobus
VodaVodovod
Topné tělesoRadiátory
Zdroj topeníCentrální dálkové
Zdroj teplé vodyCentrální dálkový ohřev
Sklep
Výtah

Origo partneři v Zlíně

Popis

Kompletně zrekonstruovaný byt 2+1 v klidné části Zlína – ideální pro bydlení i investici

Nabízíme ke koupi vkusně a kompletně zrekonstruovaný byt 2+1 ve vyhledávané a klidné lokalitě města Zlína. Byt se nachází v udržovaném domě s dobrou občanskou vybaveností v docházkové vzdálenosti.

Kompletní rekonstrukce – elektroinstalace, podlahy, kuchyňská linka, bytové jádro, nové vstupní bezpečnostní dveře
Moderní vybavení – byt se prodává zařízený tak jak je na fotografiích, nový nábytek pro 4 studenty (4 postele, 2 šatní skříně, 2 psací stoly, 2 židle), nové všechny spotřebiče (varná deska, trouba, lednice, mikrovlnka, varná konvice, pračka se sušičkou LG). Není nutná žádná dalšá investice.
Byt má sklep a dům má kolárnu. Budova je zateplena, což přispívá ke zvýšení energetické efektivity.
Momentálně se byt pronajímá 3 studentkám VŠ.
Byt je v osobním vlastnictví, bez zástav a břemen.
Skvělá investiční příležitost.
Měsíční náklady bytu 3879 Kč, zálohy na elektřinu 440 Kč. Při pronájmu 4 studentům čistý zisk po odečtení nákladů 20.524 Kč

Neváhejte nás kontaktovat pro více informací nebo domluvení prohlídky!

Makléř

Máte zájem o tento byt?

Tímto, v souladu s nařízením Evropského parlamentu a Rady (EU) 2016/679, v platném znění, prohlašuji, že mi je alespoň 16 let a uděluji tak svůj souhlas se zpracováním zadaných údajů (jméno, telefon, e-mail, ip adresa) společnosti B3 Technology, s.r.o., IČ: 07330600, se sídlem Novostavby 126/23, 435 11 Lom (správce dat), za účelem předání dotazu z tohoto formuláře Vámi vybranému inzerentovi a zpětného kontaktování mé osoby. Osobní údaje bude správce zpracovávat manuálně i automaticky přímo prostřednictvím svých zaměstnanců. Informace předané tímto formulářem budou uloženy v databázi správce maximálně po dobu 10 let. Odvolání souhlasu s uložením a zpracováním poskytnutých dat lze e-mailem na info@origo-reality.cz. V případě podezření na neoprávněné použití Vámi poskytnutých údajů máte právo předat podnět k šetření Úřadu pro ochranu osobních údajů. Více informací
Chystáte se prodat nemovitost?
Pomůžeme Vám!

Přihlášení k odběru

Nenechte si ujít nejnovější nabídky prodeje bytů 2+1 v Zlíně.