Prodej bytu 4+1, Břeclav, Fintajslova, 106 m2

Fintajslova, Břeclav

6 295 000 Kč
/za nemovitost
včetně poplatků, včetně provize, včetně právního servisu
Hypotéka od 28 135 Kč /měs. Chci hypotéku

Parametry bytu

AdresaFintajslova, Břeclav
ID00146
StavbaCihlová
Stav objektuPo rekonstrukci
Patro3. z 3
VybavenoNe
Druh objektuSamostatný
Lokalita objektuKlidná část obce
VlastnictvíOsobní
Užitná plocha106 m2
Podlahová plocha115 m2
Třída energetické náročnostiG - Mimořádně nehospodárná
Elektřina230V
PlynPlynovod
OdpadVeřejná kanalizace
TopeníÚstřední plynové
KomunikaceAsfaltová
TelekomunikaceInternet
DopravaVlak, Dálnice, Silnice, MHD, Autobus
VodaVodovod
Sklep
Výtah

Origo partneři v Břeclavi

Popis

Hledáte ke koupi bytovou jednotku v osobním vlastnictví, k nastěhování bez nutnosti rekonstrukce? Na klidném místě a zároveň se vším potřebným v blízkém okolí?

Ve výhradním zastoupení majitelů, Vám zprostředkujeme koupi bytové jednotky o velikosti 4+1 v ulici Fintajslova č.p. 2280/19, v okresním městě Břeclav.

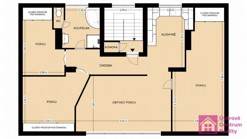
Byt se nachází v 3.nadzemním podlaží a podkroví z celkového počtu 3 podlaží.
V bytovém domě je pouze pět jednotek, na každém podlaží dvě a podkrovní byt. Bytový dům bez výtahu.

Celková plocha bytu je 115 m², s obytnou plochou 106 m².

Dispozice: schodiště, chodba se šatnou, kuchyně, ložnice, obývací pokoj, koupelna (vana i sprchový kout), toaleta a dva pokoje. Půdorys bytu naleznete ve fotogalerii.

Aktuální měsíční náklady na provoz bytu jsou 7.476 Kč (elektřina, plyn, voda, stočné, fond oprav a správa bytového domu).

V kuchyňské lince jsou zabudovány vestavěné spotřebiče (digestoř, plynová varná deska, elektrická trouba, myčka) plus samostatně stojící lednice s mrazničkou).

Podlaha je pokrytá dlažbou a vinylem. Byt je vytápěn plynovým kotlem, který je zavěšen v malé technické místnosti u schodiště před vstupem do bytu.

Pro uložení kol je možné využít společnou kolárnu anebo prostorný zděný uzamykatelný sklep o velikosti 9,30 m². Další velkou výhodou této bytové jednotky je spoluvlastnický podíl na oplocené zahradě, která se nachází kolem celého bytového domu.

V blízkosti domu se nachází obchod a restaurace. Do 10 minut chůze se dostanete k nemocnici, do centra města Břeclav a také k zastávce MHD. Parkování před domem s rezidenční parkovací kartou.

Možnost převzetí hypotéky s úrokovou sazbou 2,29% p.a. a fixací do 01/2029.

K nastěhování dohodou.

V případě více vážných zájemců bude kupující vybrán na základě parametrů stanovených prodávajícími.

Zaujala Vás tato nabídka? Máte zájem o prohlídku? Vám vyhovující termín prohlídky (den a čas) s kontakty na Vás (tel. číslo a e-mail) zasílejte na e-mail makléře, formou odpovědi na tuto inzerci.

Realitní makléř Vás následně bude telefonicky kontaktovat.

Makléř

Máte zájem o tento byt?

Tímto, v souladu s nařízením Evropského parlamentu a Rady (EU) 2016/679, v platném znění, prohlašuji, že mi je alespoň 16 let a uděluji tak svůj souhlas se zpracováním zadaných údajů (jméno, telefon, e-mail, ip adresa) společnosti B3 Technology, s.r.o., IČ: 07330600, se sídlem Novostavby 126/23, 435 11 Lom (správce dat), za účelem předání dotazu z tohoto formuláře Vámi vybranému inzerentovi a zpětného kontaktování mé osoby. Osobní údaje bude správce zpracovávat manuálně i automaticky přímo prostřednictvím svých zaměstnanců. Informace předané tímto formulářem budou uloženy v databázi správce maximálně po dobu 10 let. Odvolání souhlasu s uložením a zpracováním poskytnutých dat lze e-mailem na info@origo-reality.cz. V případě podezření na neoprávněné použití Vámi poskytnutých údajů máte právo předat podnět k šetření Úřadu pro ochranu osobních údajů. Více informací
Chystáte se prodat nemovitost?
Pomůžeme Vám!

Přihlášení k odběru

Nenechte si ujít nejnovější nabídky prodeje bytů 4+1 v Břeclavi.