Pronájem obchodního prostoru, Mnichovice, Pražská, 20 m2

Pražská, Mnichovice

8 000 Kč
/za měsíc
Získejte výhodnou HYPOTÉKU Chci hypotéku

Parametry nemovitosti

AdresaPražská, Mnichovice
ID17436
StavbaSmíšená
Stav objektuVelmi dobrý
VybavenoČástečně
Typ objektuPřízemní
Lokalita objektuCentrum obce
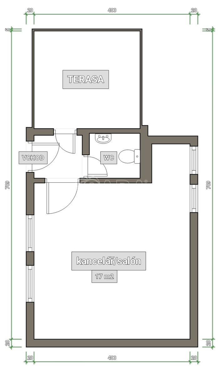
Užitná plocha20 m2
Zastavěná plocha25 m2
Plocha zahrady5 m2
Třída energetické náročnostiG - Mimořádně nehospodárná
Elektřina230V
OdpadVeřejná kanalizace
KomunikaceAsfaltová
DopravaVlak, Dálnice, Silnice, Autobus
VodaVodovod
Převod do OV
Parkování

Origo partneři v Mnichovicích

Popis

Pokud hledáte pro rozvoj svého podnikání nový prostor, tento si můžete upravit podle svých potřeb. Dříve kadeřnický salón, vhodný pro kancelář, nebo provozovnu. Vchod přímo z ulice. Za pěkného počasí klidná terasa pro posezení s klienty, nebo práci na čerstvém vzduchu.
Vytápění klimatizační jednotkou, parkování pro 1 auto na pozemku.
Služby: 2000,- (v průběhu nájmu se upřesní), kauce:30.000,-.

Makléř

Máte zájem o tuto nemovistost?

Tímto, v souladu s nařízením Evropského parlamentu a Rady (EU) 2016/679, v platném znění, prohlašuji, že mi je alespoň 16 let a uděluji tak svůj souhlas se zpracováním zadaných údajů (jméno, telefon, e-mail, ip adresa) společnosti B3 Technology, s.r.o., IČ: 07330600, se sídlem Novostavby 126/23, 435 11 Lom (správce dat), za účelem předání dotazu z tohoto formuláře Vámi vybranému inzerentovi a zpětného kontaktování mé osoby. Osobní údaje bude správce zpracovávat manuálně i automaticky přímo prostřednictvím svých zaměstnanců. Informace předané tímto formulářem budou uloženy v databázi správce maximálně po dobu 10 let. Odvolání souhlasu s uložením a zpracováním poskytnutých dat lze e-mailem na info@origo-reality.cz. V případě podezření na neoprávněné použití Vámi poskytnutých údajů máte právo předat podnět k šetření Úřadu pro ochranu osobních údajů. Více informací
Chystáte se prodat nemovitost?
Pomůžeme Vám!

Přihlášení k odběru

Nenechte si ujít nejnovější nabídky pronájmu obchodních prostor v Mnichovicích (okr. Praha-východ).