Pronájem bytu 4+1, Praha - Dejvice, Kladenská, 125 m2

Kladenská, Praha, Dejvice

45 000 Kč
/za měsíc
+ poplatky
Získejte výhodnou HYPOTÉKU Chci hypotéku

Parametry bytu

AdresaKladenská, Praha, Dejvice
IDRF 0561
StavbaCihlová
Stav objektuVelmi dobrý
Patro2. z 3
VybavenoNe
Lokalita objektuCentrum obce
VlastnictvíOsobní
Užitná plocha125 m2
Třída energetické náročnostiG - Mimořádně nehospodárná
Elektřina230V
PlynPlynovod
OdpadVeřejná kanalizace
KomunikaceAsfaltová
TelekomunikaceInternet
DopravaVlak, Silnice, MHD, Autobus
VodaVodovod
Topné tělesoRadiátory
Zdroj topeníPlynový kotel
Zdroj teplé vodyPlynový kotel
Garáž
Lodžie
Terasa

Origo partneři v Praze 6

Stěhovací služby

Výkup a prodej starého nábytku

Popis

Do tohoto parádního bytu hledáme fajnovou rodinu nebo i jen pár, který má rád prostor a ocení styl, v jakém je byt provedený. Nabízíme útulné kvalitní bydlení s výhledem dlouhodobého pronájmu.

Byt je to opravdu velkorysý! Má dostatečně veliké místnosti, poctivé dřevěné parkety, velká Euro okna s dvojskly a předokenními elektrickými roletami, pěkné výhledy a orientaci na všechny světové strany. Kromě toho spoustu různých úložných vestavěných skříní a zrekonstruované původní prvky. V srdci bytu Vás jistě okouzlí nádherný prostor, který může vzniknout propojením haly (s otevírací prosklenou stěnou) a obývacího pokoje.

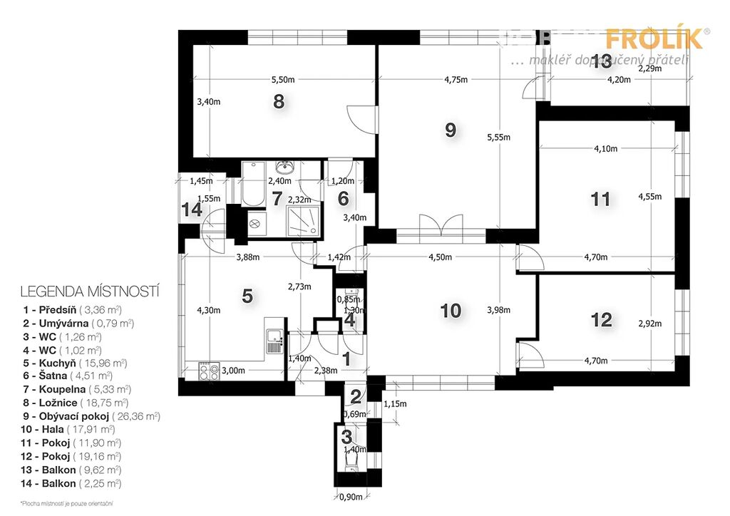
Najdete ho v 1. patře výborně udržované vilky, v ulici Kladenská, jen pár kroků od stanice metra Bořislavka. Ve své celkové ploše cca 125 m2 (+ terasa cca 9 m2) Vám nabídne: vstupní chodbu, halu, obývací pokoj, 3 samostatné ložnice, kuchyni s malou lodžií, koupelnu a dvě WC. Do bytu se vstupuje po společném domovním schodišti. Sousedy budete mít jen pod a nad bytem, protože byt zabírá celé patro vilky.

Je vytápěn vlastním plynovým kombi kotlem, který ohřívá i teplou vodu. V kuchyni zůstane myčka, sklokeramická varná deska, elektrická trouba a digestoř. Může být i pračka. V koupelně je kromě vany a sprchového koutu i bidet. Obě WC jsou samostatné.

Jedno auto můžete parkovat v garáži přímo u domu (výška je na běžný osobák) a druhé (např. SUV) klidně před garáží. Garáž je v ceně nájemného.

Za nákupy a různými službami to budete mít pár kroků do obchodního centra Bořislavka. V ulicích kolem domu pak najdete i různé další obchůdky, malé kavárničky, restaurace a pod..

Kromě nájemného budete platit zálohy na služby (voda - vlastní měření, odpad, osvětlení domu, revize kotle) v částce 2.000 Kč/měs. + spotřebu elektřiny a plynu (převádí se na nájemce). Na elektřinu odhaduji 2.000 Kč, plyn 2.500 Kč. Nájemné a zálohy se platí měsíčně předem, jistota je 2x nájemné, provize 1 nájemné.

Byt je ihned volný, připravený k dlouhodobému pronájmu.
Dlouho neváhejte a objednejte se na prohlídku, ať Vám byt neuteče! Takových bytů totiž v nabídce moc není!

PENB není k dispozici, dle zákona uvádím třídu G.

Makléř

Máte zájem o tento byt?

Tímto, v souladu s nařízením Evropského parlamentu a Rady (EU) 2016/679, v platném znění, prohlašuji, že mi je alespoň 16 let a uděluji tak svůj souhlas se zpracováním zadaných údajů (jméno, telefon, e-mail, ip adresa) společnosti B3 Technology, s.r.o., IČ: 07330600, se sídlem Novostavby 126/23, 435 11 Lom (správce dat), za účelem předání dotazu z tohoto formuláře Vámi vybranému inzerentovi a zpětného kontaktování mé osoby. Osobní údaje bude správce zpracovávat manuálně i automaticky přímo prostřednictvím svých zaměstnanců. Informace předané tímto formulářem budou uloženy v databázi správce maximálně po dobu 10 let. Odvolání souhlasu s uložením a zpracováním poskytnutých dat lze e-mailem na info@origo-reality.cz. V případě podezření na neoprávněné použití Vámi poskytnutých údajů máte právo předat podnět k šetření Úřadu pro ochranu osobních údajů. Více informací
Chystáte se prodat nemovitost?
Pomůžeme Vám!