Prodej rodinného domu, Radim, 213 m2

Radim

5 520 000 Kč
/za nemovitost
včetně provize, včetně právního servisu
Hypotéka od 24 671 Kč /měs. Chci hypotéku

Parametry domu

AdresaRadim
ID00184
StavbaSmíšená
Stav objektuPřed rekonstrukcí
VybavenoNe
Druh objektuSamostatný
Lokalita objektuKlidná část obce
Užitná plocha213 m2
Podlahová plocha213 m2
Plocha pozemku958 m2
Plocha zahrady700 m2
Třída energetické náročnostiG - Mimořádně nehospodárná
Elektřina230V
PlynPlynovod
OdpadJímka
KomunikaceAsfaltová
DopravaVlak, Dálnice, Silnice, MHD, Autobus
VodaVodovod, Studna
Topné tělesoRadiátory, Krbová kamna
Zdroj topeníPlynový kotel, Krbová kamna
Zdroj teplé vodyBojler - elektro
Garáž
Sklep
Výtah
Parkování

Origo partneři v Radimi

Popis

Dovoluji si vám nabídnout soubor staveb v obci Radim.
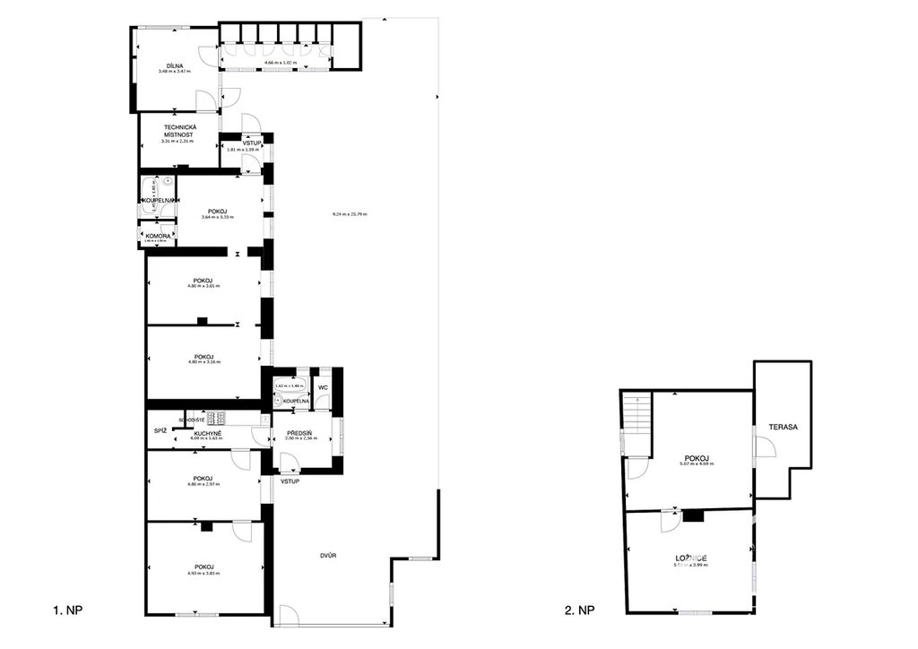
První stavbou je dům s č.p. postavený v roce 1971. Do domu vstoupíte verandou, ve které naleznete sociální zařízení. V chodbičce v přízemí je umístěna kuchyňská linka se dřezem, spíž a schody do 1.NP. Vlevo od kuchyňské linky jsou pak dva průchozí pokoje. V 1.NP naleznete dva další pokoje a vstup na balkon.
Na tento dům navazuje původní rodinný dům o dispozici 2+1, který je určen buď ke kompletní rekonstrukci, nebo demolici. Na pozemku se dále nachází vedlejší stavby - garáž, kotelna a dílny.
Veškeré stavby jsou určeny k rekonstrukci. Dům je napojen na plyn, obecní vodu, vytápění plynovým kotlem.

Největší devizou je však pozemek samotný. Umístěn je v klidné části obce, přesto v centru.
V obci naleznete základní občanskou vybavenost - dva obchody, poštu, MŠ a ZŠ do 5. třídy, ordinaci obvodního lékaře a box Zásilkovny.

Doporučuji prohlídku.
Majitel si vyhrazuje právo vybrat zájemce na základě jím zvolených kritérií.
Financování koupě této nemovitosti Vám ráda pomůžu zajistit.

Makléř

Máte zájem o tento dům?

Tímto, v souladu s nařízením Evropského parlamentu a Rady (EU) 2016/679, v platném znění, prohlašuji, že mi je alespoň 16 let a uděluji tak svůj souhlas se zpracováním zadaných údajů (jméno, telefon, e-mail, ip adresa) společnosti B3 Technology, s.r.o., IČ: 07330600, se sídlem Novostavby 126/23, 435 11 Lom (správce dat), za účelem předání dotazu z tohoto formuláře Vámi vybranému inzerentovi a zpětného kontaktování mé osoby. Osobní údaje bude správce zpracovávat manuálně i automaticky přímo prostřednictvím svých zaměstnanců. Informace předané tímto formulářem budou uloženy v databázi správce maximálně po dobu 10 let. Odvolání souhlasu s uložením a zpracováním poskytnutých dat lze e-mailem na info@origo-reality.cz. V případě podezření na neoprávněné použití Vámi poskytnutých údajů máte právo předat podnět k šetření Úřadu pro ochranu osobních údajů. Více informací
Chystáte se prodat nemovitost?
Pomůžeme Vám!

Přihlášení k odběru

Nenechte si ujít nejnovější nabídky prodeje rodinných domů v Radimi (okr. Kolín).