Prodej komerční nemovitosti, Mladá Boleslav, Nádražní, 400 m2 (ID: 1835908)

Nádražní, Mladá Boleslav, Čejetičky

Cena na vyžádání
/za nemovitost
Získejte výhodnou HYPOTÉKU Chci hypotéku

Parametry nemovitosti

AdresaNádražní, Mladá Boleslav, Čejetičky
ID3017
StavbaMontovaná
Stav objektuProjekt
Lokalita objektuOkraj obce
Užitná plocha400 m2
Zastavěná plocha315 m2
Podlahová plocha660 m2
Třída energetické náročnostiG - Mimořádně nehospodárná
Elektřina230V, 400V
OdpadVeřejná kanalizace
DopravaVlak, Dálnice, MHD, Autobus
VodaVodovod
Bezbarierový přístup

Origo partneři v Mladé Boleslavi

Popis

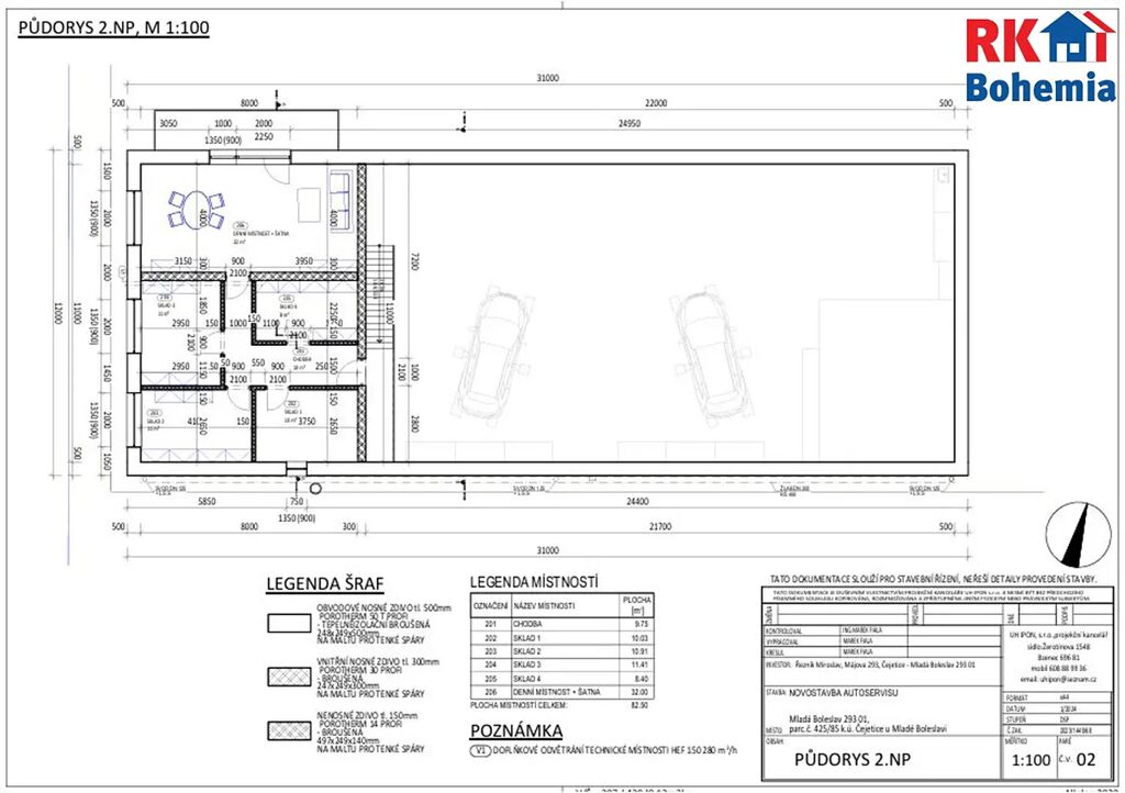
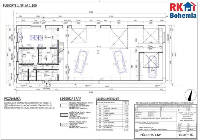
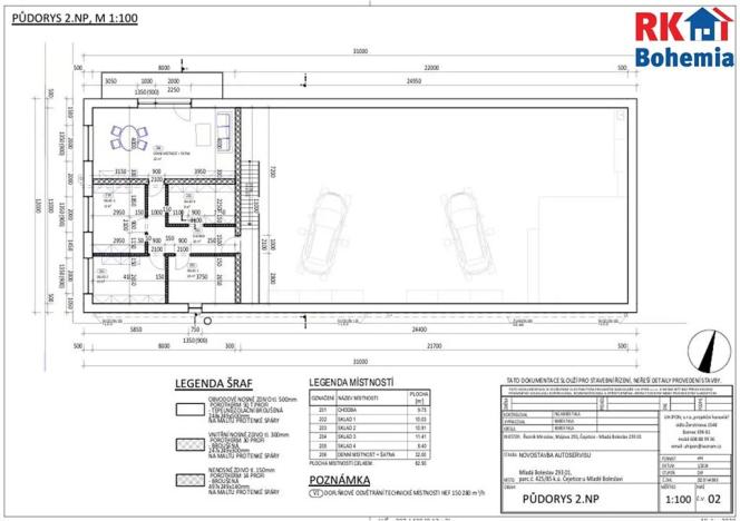
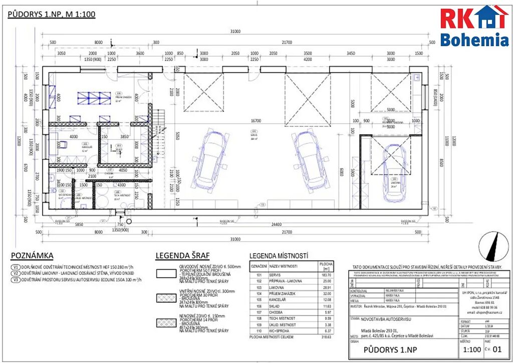
Prodej komerčního objektu projekt servisu s pozemkem 660 m, Mladá Boleslav Čejetičky, Nádražní ulice Nabízíme ke koupi komerční projekt servisu se zázemím ve dvou nadzemních podlažích, situovaný na komerčním pozemku o výměře 660 m.

Součástí prodeje je kompletní projektová dokumentace a platné stavební povolení. Objekt je navržen jako moderní servisní centrum se zázemím, přesné dispoziční řešení je k dispozici dle přiložených podkladů.

Tento projekt představuje ideální investiční příležitost pro podnikání v oblasti služeb, autoservisu či jiné komerční činnosti.

Stavební povolení vydáno.
Inženýrské sítě, vodovod, elektřina, kanalizace, přístupová cesta vybudovány.
Výborná dostupnost.
Možnost zajištění financování.

Financování vám rádi pomůžeme zajistit.
Pro více informací a sjednání prohlídky mě neváhejte kontaktovat.
Na osobní setkání se těší vaše makléřka.

Makléř

Máte zájem o tuto nemovistost?

Tímto, v souladu s nařízením Evropského parlamentu a Rady (EU) 2016/679, v platném znění, prohlašuji, že mi je alespoň 16 let a uděluji tak svůj souhlas se zpracováním zadaných údajů (jméno, telefon, e-mail, ip adresa) společnosti B3 Technology, s.r.o., IČ: 07330600, se sídlem Novostavby 126/23, 435 11 Lom (správce dat), za účelem předání dotazu z tohoto formuláře Vámi vybranému inzerentovi a zpětného kontaktování mé osoby. Osobní údaje bude správce zpracovávat manuálně i automaticky přímo prostřednictvím svých zaměstnanců. Informace předané tímto formulářem budou uloženy v databázi správce maximálně po dobu 10 let. Odvolání souhlasu s uložením a zpracováním poskytnutých dat lze e-mailem na info@origo-reality.cz. V případě podezření na neoprávněné použití Vámi poskytnutých údajů máte právo předat podnět k šetření Úřadu pro ochranu osobních údajů. Více informací
Chystáte se prodat nemovitost?
Pomůžeme Vám!

Přihlášení k odběru

Nenechte si ujít nejnovější nabídky prodeje komerčních nemovitostí v Mladé Boleslavi.