Pronájem bytu 2+kk, Chrášťany - Bylany, 30 m2

Chrášťany, Bylany

12 500 Kč
/za měsíc
poplatky 5.000,-Kč (elektřina, voda, popelnice) pro dvě osoby, provize RK
Získejte výhodnou HYPOTÉKU Chci hypotéku

Parametry bytu

AdresaChrášťany, Bylany
ID31943
StavbaCihlová
Stav objektuDobrý
Patro2. z 2
VlastnictvíOsobní
Užitná plocha30 m2
Podlahová plocha30 m2
Třída energetické náročnostiF - Velmi nehospodárná
Ukazatel energetické náročnosti1 kWh/m2 za rok
Parkování

Origo partneři v Chrášťanech

Popis

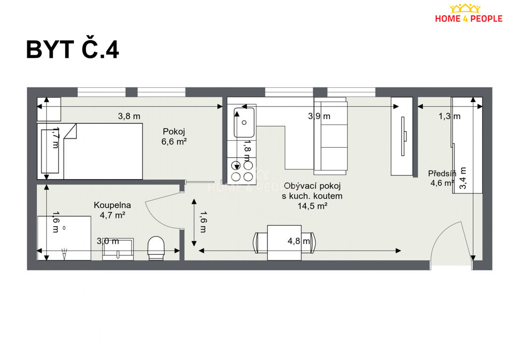
ve výhradním zastoupení majitele pronájem bytu 2+kk, 30m² v obci Bylany u Českého Brodu s malou zahrádkou v přízemí domu, která bude společná pro všechny bytové jednotky v domě. Bytová jednotka momentálně prošla kompletní rekonstrukcí. Úplně nová kuchyňská linka včetně myčky. Jinak je byt bez vybavení. V koupelně najdete sprchový kout, umyvadlo a wc. Hledáte klid v dojezdové vzdálenosti do Prahy, Českého Brodu či Kolína? Neváhejte mě kontaktovat pro více informací nebo prohlídku. Byt je volný od 15.10.2025 nebo dle dohody. Pronajímatel si vyhrazuje právo vybrat zájemce na základě jím zvolených kritérií. Byt je vhodný max pro dvě osoby. Ev. číslo: 31943.

Makléř

Máte zájem o tento byt?

Tímto, v souladu s nařízením Evropského parlamentu a Rady (EU) 2016/679, v platném znění, prohlašuji, že mi je alespoň 16 let a uděluji tak svůj souhlas se zpracováním zadaných údajů (jméno, telefon, e-mail, ip adresa) společnosti B3 Technology, s.r.o., IČ: 07330600, se sídlem Novostavby 126/23, 435 11 Lom (správce dat), za účelem předání dotazu z tohoto formuláře Vámi vybranému inzerentovi a zpětného kontaktování mé osoby. Osobní údaje bude správce zpracovávat manuálně i automaticky přímo prostřednictvím svých zaměstnanců. Informace předané tímto formulářem budou uloženy v databázi správce maximálně po dobu 10 let. Odvolání souhlasu s uložením a zpracováním poskytnutých dat lze e-mailem na info@origo-reality.cz. V případě podezření na neoprávněné použití Vámi poskytnutých údajů máte právo předat podnět k šetření Úřadu pro ochranu osobních údajů. Více informací
Chystáte se prodat nemovitost?
Pomůžeme Vám!

Přihlášení k odběru

Nenechte si ujít nejnovější nabídky pronájmu bytů 2+kk v Chrášťanech (okr. Kolín).