Prodej obchodního prostoru, Liberec - Liberec I-Staré Město, Ruprechtická, 481 m2

Ruprechtická, Liberec (nečleněné město)

20 990 000 Kč
/za nemovitost
Hypotéka od 93 813 Kč /měs. Chci hypotéku

Parametry nemovitosti

AdresaRuprechtická, Liberec (nečleněné město)
ID0858
StavbaCihlová
Stav objektuVelmi dobrý
VybavenoČástečně
Typ objektuPatrový
Lokalita objektuCentrum obce
Užitná plocha481 m2
Zastavěná plocha194 m2
Plocha zahrady61 m2
Třída energetické náročnostiG - Mimořádně nehospodárná
Elektřina400V
PlynPlynovod
OdpadVeřejná kanalizace
KomunikaceAsfaltová
TelekomunikaceKabelové rozvody
DopravaMHD
VodaVodovod
Převod do OV

Origo partneři v Liberci

Rekonstrukce

Úklidové služby

Popis

Exkluzivně nabízíme k prodeji historickou vilu v k.ú. Liberec , Staré Město, Ruprechtická ul., přestavěnou do dnešní podoby v roce 1928 pro továrníka Eduarda Hasse a v roce 1948 spolu s továrnou znárodněnou jako „průmyslový objekt“. Nemovitost se nachází v atraktivní lokalitě v širším centru města, s výbornou dopravní dostupností a možností parkování před domem nebo v přilehlé slepé ulici.
Až do privatizace roku 1993 vila sloužila jako ordinace závodního lékaře v přízemí a ubytování zaměstnanců v prvním patře a podkroví. Od roku 2003 probíhala postupná rekonstrukce s důrazem na zachování původního vzhledu vily. Provedena byla výměna oken, nová střecha vč. klempířských prvků, odborná rekonstrukce fasády, vše ve velmi dobrém technickém stavu bez dalších investic.
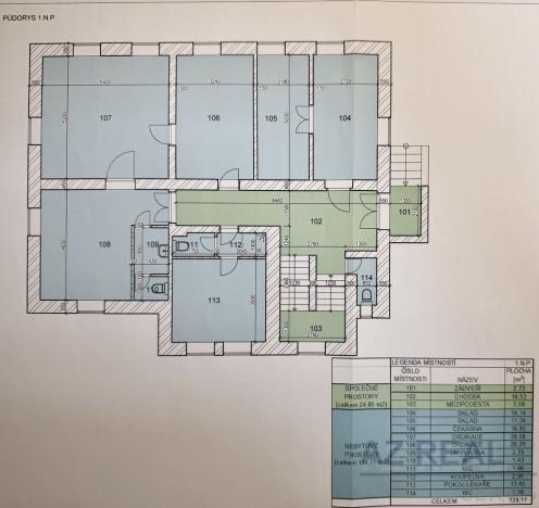
V současné době je v přízemí stále ordinace praktického lékaře a v prvním patře 4x byt 1+kk a prostor pro zřízení dalšího bytu 1+kk cca 20m2. V podkroví je další byt 1+kk a dva byty 2+kk.
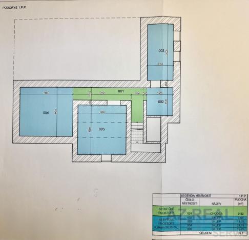
Vytápění je zajištěno čtyřmi plynovými kotli. Vnitřní prostory byly rovněž modernizovány pro potřeby současného standardu bydlení. Objekt je částečně podsklepený, sklepní prostory jsou k využití, suché a větrané. Za domem se nachází menší pozemek s možností parkování.
Tato nemovitost představuje bezpečnou a stabilní investici s atraktivním ročním konzervativním výnosem od 900t do 1mil Kč dle míry obsazenosti a díky své poloze i charakteru je možné využití jako reprezentativní sídlo firmy, případně zajímavou kombinaci bydlení, komerčních služeb a kanceláří.
Kompletní půdorysy s výměrami jsou k dispozici mezi fotografiemi.

Makléř

Máte zájem o tuto nemovistost?

Tímto, v souladu s nařízením Evropského parlamentu a Rady (EU) 2016/679, v platném znění, prohlašuji, že mi je alespoň 16 let a uděluji tak svůj souhlas se zpracováním zadaných údajů (jméno, telefon, e-mail, ip adresa) společnosti B3 Technology, s.r.o., IČ: 07330600, se sídlem Novostavby 126/23, 435 11 Lom (správce dat), za účelem předání dotazu z tohoto formuláře Vámi vybranému inzerentovi a zpětného kontaktování mé osoby. Osobní údaje bude správce zpracovávat manuálně i automaticky přímo prostřednictvím svých zaměstnanců. Informace předané tímto formulářem budou uloženy v databázi správce maximálně po dobu 10 let. Odvolání souhlasu s uložením a zpracováním poskytnutých dat lze e-mailem na info@origo-reality.cz. V případě podezření na neoprávněné použití Vámi poskytnutých údajů máte právo předat podnět k šetření Úřadu pro ochranu osobních údajů. Více informací
Chystáte se prodat nemovitost?
Pomůžeme Vám!