Prodej bytu 1+kk, Jablonec nad Nisou, Krkonošská, 39 m2

Krkonošská, Jablonec nad Nisou, Kokonín

4 074 000 Kč
/za nemovitost
Hypotéka od 18 208 Kč /měs. Chci hypotéku

Parametry bytu

AdresaKrkonošská, Jablonec nad Nisou, Kokonín
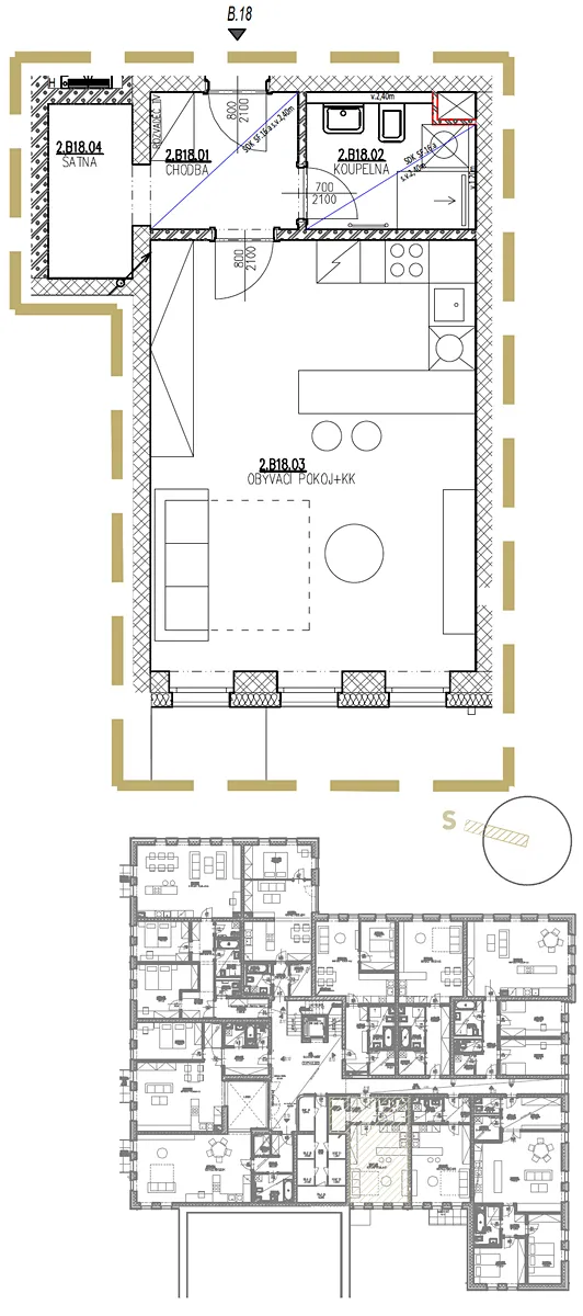
ID353/19 (B18)
StavbaCihlová
Stav objektuNovostavba
Patro2.
VlastnictvíOsobní
Užitná plocha39 m2
Třída energetické náročnostiB - Velmi úsporná
Sklep
Parkování

Origo partneři v Jablonci nad Nisou

Rekonstrukce

Úklidové služby

Popis

Byt připravený k nastěhování – kolaudace dokončena!

Nabízíme k prodeji prostorný byt B18 o dispozici 1+kk a celkové výměře 40,5 m² dle NOZ (čistá užitná plocha 38,7 m²). Byt se nachází 2. podlaží a je orientován převážně na západ. Jedná se o prostorné 1kk se samostatnou šatnou a samozřejmě i vč sklepní kóje o velikosti 2,7 m². Cena zahrnuje i parkovací stání – vše je uvedeno včetně DPH.

Byt je součástí rezidenčního projektu Bytový dům Sklárna, který vzniká v klidné části Jablonce nad Nisou – Kokoníně, v areálu bývalé sklárny obklopeném zelení. Projekt nabízí celkem 39 bytových jednotek – v novostavbě i zrekonstruované části bývalé huti. Uzavřený areál bude sloužit výhradně rezidentům a jejich návštěvám, součástí je i dětské hřiště a společné zelené plochy.

Všechny byty v projektu mají vysoký standard vybavení: kvalitní vinylové podlahy s akustickou podložkou, teplovodní podlahové vytápění, francouzská okna s izolačním trojsklem, moderní sanita značky Grohe, velkoformátové obklady v koupelnách atd.

Lokalita spojuje výhody klidného bydlení v přírodě s plnou občanskou vybaveností města Jablonce nad Nisou. V blízkosti se nachází Černostudniční hřeben, Bártlův vrch i Jizerské hory – ideální pro bydlení, sport a relaxaci po celý rok.

Více informací a kompletní nabídku bytů najdete na webových stránkách projektu – odkaz naleznete níže v sekci Kontakt. Byt prodává přímo developer – neplatíte žádnou provizi!

Makléř

Máte zájem o tento byt?

Tímto, v souladu s nařízením Evropského parlamentu a Rady (EU) 2016/679, v platném znění, prohlašuji, že mi je alespoň 16 let a uděluji tak svůj souhlas se zpracováním zadaných údajů (jméno, telefon, e-mail, ip adresa) společnosti B3 Technology, s.r.o., IČ: 07330600, se sídlem Novostavby 126/23, 435 11 Lom (správce dat), za účelem předání dotazu z tohoto formuláře Vámi vybranému inzerentovi a zpětného kontaktování mé osoby. Osobní údaje bude správce zpracovávat manuálně i automaticky přímo prostřednictvím svých zaměstnanců. Informace předané tímto formulářem budou uloženy v databázi správce maximálně po dobu 10 let. Odvolání souhlasu s uložením a zpracováním poskytnutých dat lze e-mailem na info@origo-reality.cz. V případě podezření na neoprávněné použití Vámi poskytnutých údajů máte právo předat podnět k šetření Úřadu pro ochranu osobních údajů. Více informací
Chystáte se prodat nemovitost?
Pomůžeme Vám!

Přihlášení k odběru

Nenechte si ujít nejnovější nabídky prodeje bytů 1+kk v Jablonci nad Nisou.