Prodej bytu 2+1, Praha - Smíchov, Moulíkova, 80 m2

Moulíkova, Praha 5

9 990 000 Kč
/za nemovitost
Uvedená cena zahrnuje provizi RK
Hypotéka od 44 649 Kč /měs. Chci hypotéku

Parametry bytu

AdresaMoulíkova, Praha 5
ID920334
StavbaCihlová
Stav objektuVelmi dobrý
VybavenoNe
Lokalita objektuKlidná část obce
VlastnictvíOsobní
Užitná plocha80 m2
Balkon

Origo partneři v Praze 5

Stěhovací služby

Výkup a prodej starého nábytku

Popis

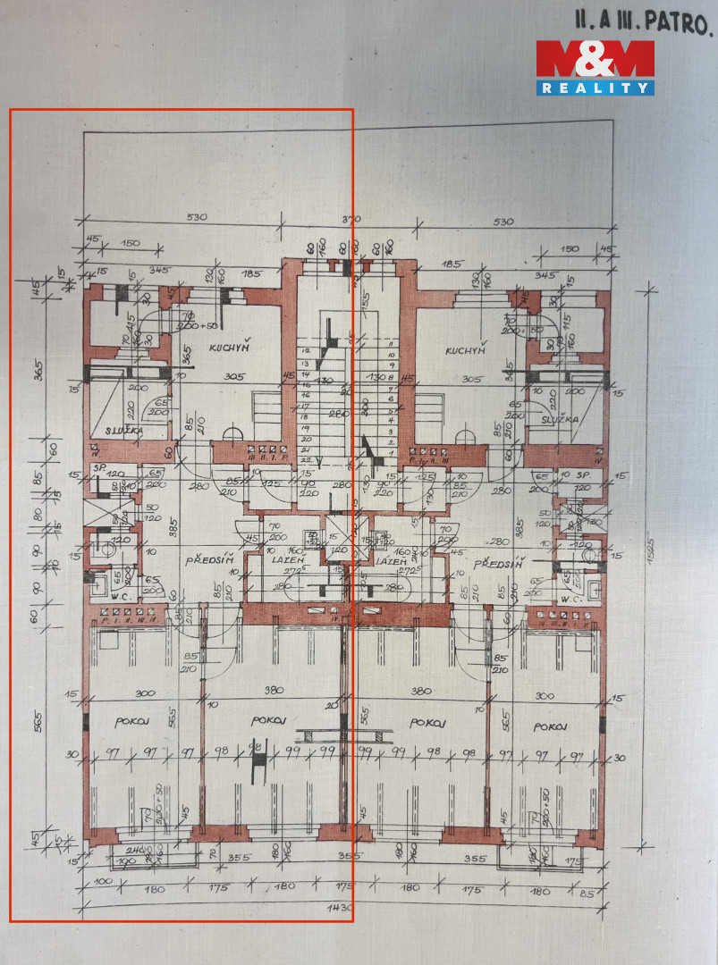
Velmi dobře udržovaný byt se současnou dispozicí 2+1 s malou pracovnou s možností úpravy na 3+kk se šatnou. Nachází se v atraktivní lokalitě pražského Smíchova, ul. Moulíkova. Byt je situován ve 3. patře cihlového domu bez výtahu, má velkorysou halu se vstupem do všech místností, zasklenou lodžii do vnitrobloku (2,5 m²) a balkon do ulice (1,4 m2). Prohlášení vlastníka uvádí výměru 74 m², skutečně zaměřeno 80,6 m² užitné plochy. K dispozici je prostorná kuchyně s místem pro jídelní stůl, komora a sklep (v současnosti probíhá kompletní rekonstrukce sklepů s instalací nových kovových sklepních kójí). Koupelna a WC byly rekonstruovány cca před 12 lety, v pokojích jsou renovované parkety. Byt je vhodný k rekonstrukci dle vlastních představ. Lokalita nabízí skvělou dopravní dostupnost – metro B Smíchovské nádraží, vlak, tramvaje i autobusy přímo u domu, rychlé napojení na Strakonickou i směry Kladno a Beroun. V okolí je kompletní občanská vybavenost, obchody, školy, OC Nový Smíchov.

Makléř

Máte zájem o tento byt?

Tímto, v souladu s nařízením Evropského parlamentu a Rady (EU) 2016/679, v platném znění, prohlašuji, že mi je alespoň 16 let a uděluji tak svůj souhlas se zpracováním zadaných údajů (jméno, telefon, e-mail, ip adresa) společnosti B3 Technology, s.r.o., IČ: 07330600, se sídlem Novostavby 126/23, 435 11 Lom (správce dat), za účelem předání dotazu z tohoto formuláře Vámi vybranému inzerentovi a zpětného kontaktování mé osoby. Osobní údaje bude správce zpracovávat manuálně i automaticky přímo prostřednictvím svých zaměstnanců. Informace předané tímto formulářem budou uloženy v databázi správce maximálně po dobu 10 let. Odvolání souhlasu s uložením a zpracováním poskytnutých dat lze e-mailem na info@origo-reality.cz. V případě podezření na neoprávněné použití Vámi poskytnutých údajů máte právo předat podnět k šetření Úřadu pro ochranu osobních údajů. Více informací
Chystáte se prodat nemovitost?
Pomůžeme Vám!

Přihlášení k odběru

Nenechte si ujít nejnovější nabídky prodeje bytů 2+1 v Praze 5.