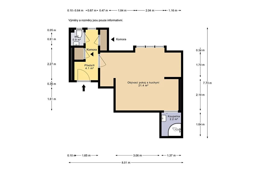
Prodej bytu 1+kk, Praha - Vršovice, Minská, 34 m2 (ID: 1833905)

Minská, Praha, Vršovice

5 599 000 Kč
/za nemovitost
Hypotéka od 25 024 Kč /měs. Chci hypotéku

Parametry bytu

AdresaMinská, Praha, Vršovice
StavbaCihlová
Stav objektuDobrý
VybavenoAno
Lokalita objektuKlidná část obce
VlastnictvíOsobní
Užitná plocha34 m2
Třída energetické náročnostiG - Mimořádně nehospodárná
Elektřina230V
PlynPlynovod
OdpadVeřejná kanalizace
KomunikaceAsfaltová
TelekomunikaceKabelové rozvody
DopravaSilnice, MHD
VodaVodovod
Topné tělesoRadiátory
Zdroj topeníPlynový kondenzační kotel
Zdroj teplé vodyPlynový kondenzační kotel
Výtah
Bezbarierový přístup

Origo partneři v Praze 10

Stěhovací služby

Výkup a prodej starého nábytku

Popis

Prodej bytu 1+kk, 34 m², osobní vlastnictví – Praha 10, Vršovice

Exkluzivně nabízíme k prodeji útulný byt 1+kk o velikosti 34 m² v osobním vlastnictví, nacházející se v přízemí cihlového domu v atraktivní části pražských Vršovic. Byt je vhodný jak k vlastnímu bydlení, tak i jako investice k pronájmu.

Dispozice a vybavení

Byt je moderně a prakticky zařízen s důrazem na dostatek úložných prostor.
• samostatná komora přímo v bytě
• šatní skříň s ukrytým plynovým kotlem, pračkou a sušičkou
• další vestavěná skříň pro uložení věcí
• chytré řešení spaní – sklopná postel integrovaná do vestavné skříně, která šetří prostor

Okna směřují do klidného vnitrobloku s upravenou zahradou, což zajišťuje příjemné a nerušené bydlení.

Lokalita

Vršovice patří mezi vyhledávané čtvrti Prahy díky kombinaci výborné dopravní dostupnosti a kompletní občanské vybavenosti. Tramvajová zastávka je vzdálena cca 2 minuty chůze, do centra města se dostanete během několika minut. V okolí najdete obchody, restaurace, kavárny i zeleň pro volnočasové aktivity.

Další informace

Energetická náročnost budovy: třída G (štítek bude upřesněn po dodání).

V případě zájmu o prohlídku nás neváhejte kontaktovat. Rádi Vám pomůžeme také se zajištěním financování formou hypotečního úvěru.

Makléř

Máte zájem o tento byt?

Tímto, v souladu s nařízením Evropského parlamentu a Rady (EU) 2016/679, v platném znění, prohlašuji, že mi je alespoň 16 let a uděluji tak svůj souhlas se zpracováním zadaných údajů (jméno, telefon, e-mail, ip adresa) společnosti B3 Technology, s.r.o., IČ: 07330600, se sídlem Novostavby 126/23, 435 11 Lom (správce dat), za účelem předání dotazu z tohoto formuláře Vámi vybranému inzerentovi a zpětného kontaktování mé osoby. Osobní údaje bude správce zpracovávat manuálně i automaticky přímo prostřednictvím svých zaměstnanců. Informace předané tímto formulářem budou uloženy v databázi správce maximálně po dobu 10 let. Odvolání souhlasu s uložením a zpracováním poskytnutých dat lze e-mailem na info@origo-reality.cz. V případě podezření na neoprávněné použití Vámi poskytnutých údajů máte právo předat podnět k šetření Úřadu pro ochranu osobních údajů. Více informací
Chystáte se prodat nemovitost?
Pomůžeme Vám!

Přihlášení k odběru

Nenechte si ujít nejnovější nabídky prodeje bytů 1+kk v Praze 10.