Prodej pozemku pro bydlení, Suchohrdly, V Kopci, 365 m2

V Kopci, Suchohrdly

1 250 000 Kč
/za nemovitost
- výrazná SLEVA z ceny 1,45 mil. Kč (cena včetně právního servisu, provize realitní kanceláři i DPH)
Hypotéka od 5 587 Kč /měs. Chci hypotéku

Parametry pozemku

AdresaV Kopci, Suchohrdly
ID284
Plocha pozemku365 m2
Elektřina230V, 400V
OdpadVeřejná kanalizace
KomunikaceAsfaltová
DopravaSilnice, Autobus
VodaVodovod
Bezbarierový přístup

Origo partneři v Suchohrdlech

Popis

Sleva 200.000,- Kč z ceny 1.450.000,- Kč, platí jen po omezenou dobu!

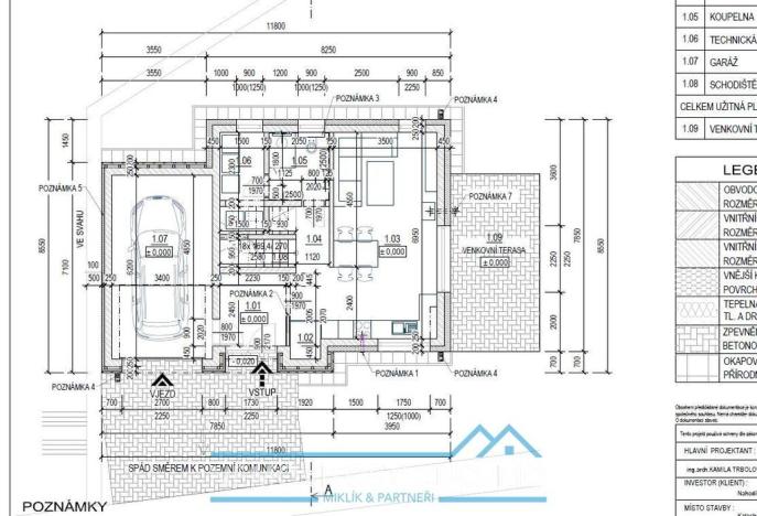
K prodeji nabízíme stavební pozemek v k.ú. Suchohrdly u Znojma, s obrovským benefitem, kterým je již hotová projektová dokumentace a vydané stavební povolení na rodinný dům s garáží, kde má kupující (stavitel) 2 možnosti:

a.) 4+kk, dvě koupelny, technická místnost, garáž
b.) 5+kk, jedna koupelna, technická místnost, garáž

Pozemek má výměru 365m2, ale díky velmi chytrému řešení projektové dokumentace zbývá stále dostatek prostoru na zahrádku, posezení apod.
A tohle není jen kus pozemku, kde si musíte ještě zafinancovat inženýrské sítě, jelikož prodávající tohle vše již vyřídil a zafinancoval, voda a kanalizace je realizovaná od firmy Colas, a přípojky jsou nachystané přímo na pozemku, i s elektrickým antoníčkem a plynovou přípojkou, včetně nového nájezdu z hlavní asfaltové komunikace.
Realizace inženýrských sítí činila 350.000,- Kč.

V rámci koupě pozemku je projekt zdarma, pokud bude stavitel pokračovat ve stavbě rodinného domu se stavební firmou Fachkas, která projekt realizovala, pokud by se klient rozhodl pro jinou firmu, či by si chtěl udělat projekt nový po vlastní ose, je třeba danou projektovou dokumentaci uhradit nad rámec kupní ceny (v předběžné výši 60.000,- Kč).

Uvedená cena je pak konečná včetně právního servisu, provize realitní kanceláři i DPH.
V případě zájmu o prohlídku, či dalších informací kontaktujte pana Ing. Miklíka, volat můžete kdykoliv, včetně víkendů a svátků.

Makléř

Máte zájem o tento pozemek?

Tímto, v souladu s nařízením Evropského parlamentu a Rady (EU) 2016/679, v platném znění, prohlašuji, že mi je alespoň 16 let a uděluji tak svůj souhlas se zpracováním zadaných údajů (jméno, telefon, e-mail, ip adresa) společnosti B3 Technology, s.r.o., IČ: 07330600, se sídlem Novostavby 126/23, 435 11 Lom (správce dat), za účelem předání dotazu z tohoto formuláře Vámi vybranému inzerentovi a zpětného kontaktování mé osoby. Osobní údaje bude správce zpracovávat manuálně i automaticky přímo prostřednictvím svých zaměstnanců. Informace předané tímto formulářem budou uloženy v databázi správce maximálně po dobu 10 let. Odvolání souhlasu s uložením a zpracováním poskytnutých dat lze e-mailem na info@origo-reality.cz. V případě podezření na neoprávněné použití Vámi poskytnutých údajů máte právo předat podnět k šetření Úřadu pro ochranu osobních údajů. Více informací
Chystáte se prodat nemovitost?
Pomůžeme Vám!

Přihlášení k odběru

Nenechte si ujít nejnovější nabídky prodeje pozemků pro bydlení v Suchohrdlech.