Prodej rodinného domu, Drahany, 140 m2

Drahany

5 490 000 Kč
/za nemovitost
Hypotéka od 24 537 Kč /měs. Chci hypotéku

Parametry domu

AdresaDrahany
ID9580
StavbaSmíšená
Stav objektuPo rekonstrukci
Druh objektuSamostatný
Lokalita objektuOkraj obce
Užitná plocha140 m2
Plocha pozemku666 m2
Třída energetické náročnostiB - Velmi úsporná
Elektřina230V
PlynPlynovod
OdpadVeřejná kanalizace
KomunikaceAsfaltová
DopravaSilnice, Autobus
VodaVodovod
Topné tělesoPodlahové vytápění
Zdroj topeníElektrokotel
Zdroj teplé vodyElektrokotel
Parkování

Origo partneři v Drahanech

Popis

Nabízíme k prodeji samostatně stojící RD 3+kk po rekonstrukci, s krásnou zahradou v obci Drahany, 10 km od Plumlovské přehrady. Obec Drahany se nachází ve vyhledávané zalesněně oblasti Drahanské vrchoviny a je vzdálená 20 km od Prostějova, 25 km od Blanska a 40 km od Olomouce a 50 km od Brna.

Celková výměra parcely je 666 m2, zastavěná plocha cca 90 m2. Parcela má pravidelný obdélníkový tvar (cca 35 x 19 m) a nachází se nedaleko centra obce, směrem na Blansko.

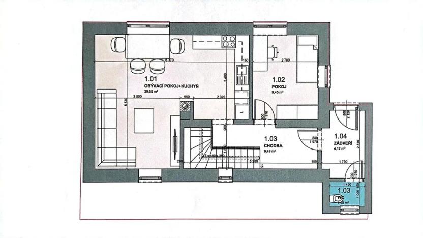
Dům o dispozici 3+kk je ze smíšeného zdiva, má 1 nadzemní podlaží a 1 podzemní podlaží.
Dům byl postaven cca někdy okolo r. 1930 a byl rekonstruován v r. 2022-2023 – nová přístavba zádveří s WC (Ytong), nová střešní krytina (pálená taška), hydroizolace vč. drenáže, příčky Ytong, koupelna, nové rozvody el. vč. přípojky 380 V, nové rozvody vody a kanalizace vč. nových přípojek na obecní řady, elektrokotel + zásobník 120 l, teplovodní podlahové vytápění, el. rohože v koupelně a WC, nově vyvložkovaný komín, retenční nádrž (9 m3), zateplení zdiva EPS min tl. 15 cm, sokly XPS min. tl. 12 cm, stropy SDK s izolací min. 24 cm Lambda 33, nová okna, obložkové interiérové dveře, podlahy vinyl a dlažba (z původního domu bylo zachováno pouze obvodové zdivo, stropy a krov).


V přízemí se nachází vstupní zádveří, pěkný pokoj, prostorný obývací pokoj s kuchyňským koutem (nová kuchyňská linka - varná deska, el. trouba, myčka, digestoř, dřez) a přípravou na krb, WC s umyvadlem. V suterénu je útulná ložnice s přímým vstupem na terasu a do zahrady, koupelna (sprchový kout, umyvadlo se skříňkou, WC, otopný žebřík, ventilátor) a technická místnost s prádelnou (elektrokotel, zásobník, místo pro pračku). V domě osvětlení, na oknech roletky, nová kuchyňská linka.

Objekt je ze smíšeného zdiva, základy kamenné ( přístavba zádveří ŽB), střecha sedlová, krytina pálená taška, krov původní), stropy klenbové cihlové, okna plastová (trojsklo).

IS – el. (220 a 380) ,obecní voda, obecní kanalizace. Je možné se napojit na plyn.
Vytápění a ohřev vody – elektrokotel + zásobník 120 l. Teplovodní podlahové vytápění, v koupelně a WC el. podlahové rohože, příprava na krbová kamna v obývacím pokoji.

Dům má velmi pěkný pozemek, orientace zahrady na J. Krásná terasa s výhledem do zahrady (zásuvky, voda). Pozemek je oplocen. 2 parkovací stání vedle domu.


Bydlení nedaleko centra obce, v blízkosti obchod, restaurace, autobus, v obci lékař, služby, škola, školka.
Volné ihned. Cena vč. právního servisu a provize RK.


Kompletní informace o stavu nemovitosti obdržíte u makléře, veškeré uvedené údaje jsou pouze informativní.
PENB podle staré vyhlášky má hodnotu B.

Makléř

Máte zájem o tento dům?

Tímto, v souladu s nařízením Evropského parlamentu a Rady (EU) 2016/679, v platném znění, prohlašuji, že mi je alespoň 16 let a uděluji tak svůj souhlas se zpracováním zadaných údajů (jméno, telefon, e-mail, ip adresa) společnosti B3 Technology, s.r.o., IČ: 07330600, se sídlem Novostavby 126/23, 435 11 Lom (správce dat), za účelem předání dotazu z tohoto formuláře Vámi vybranému inzerentovi a zpětného kontaktování mé osoby. Osobní údaje bude správce zpracovávat manuálně i automaticky přímo prostřednictvím svých zaměstnanců. Informace předané tímto formulářem budou uloženy v databázi správce maximálně po dobu 10 let. Odvolání souhlasu s uložením a zpracováním poskytnutých dat lze e-mailem na info@origo-reality.cz. V případě podezření na neoprávněné použití Vámi poskytnutých údajů máte právo předat podnět k šetření Úřadu pro ochranu osobních údajů. Více informací
Chystáte se prodat nemovitost?
Pomůžeme Vám!

Přihlášení k odběru

Nenechte si ujít nejnovější nabídky prodeje rodinných domů v Drahanech.