Pronájem kanceláře, Brno, Svatopetrská, 20 m2 (ID: 1829475)

Svatopetrská, Brno, Komárov

350 Kč
/za metr čtvereční / měsíc
+ služby (60,-/m2/měsíc), + energie dle skutečné spotřeby
Získejte výhodnou HYPOTÉKU Chci hypotéku

Parametry nemovitosti

AdresaSvatopetrská, Brno, Komárov
StavbaSmíšená
Stav objektuVelmi dobrý
Lokalita objektuCentrum obce
Užitná plocha20 m2
Třída energetické náročnostiB - Velmi úsporná
TopeníJiné
KomunikaceAsfaltová
TelekomunikaceTelefon, Internet
DopravaVlak, Dálnice, Silnice, MHD, Autobus
VodaMístní zdroj vody, Vodovod
Výtah
Bezbarierový přístup
Parkování

Origo partneři v Brně

Popis

Moderní přizpůsobitelné kancelářské prostory, které vyhoví vašim specifickým požadavkům. Nabízí sdílenou kuchyňku včetně sociálního zázemí.
V blízkosti centra města. Dostupnost jen pár minut od historického centra pěšky, na kole, autem nebo veřejnou dopravou.
Parkování v okolí budovy. Energetický standard je B, vytápění a chlazení zajišťují tepelná čerpadla a geotermální vrty. V okolí je občanská vybavenost (MHD stanice a výborné dopravní napojení na městský okruh a dálniční síť).

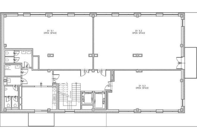
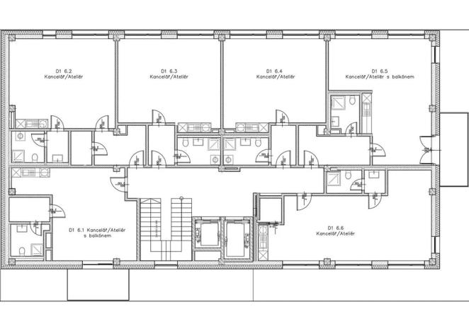
K dispozici jsou jednotky o velikosti od 19 do 120 m² s výší nájmu 350 CZK/m2/měsíc.

Standard kancelářských prostor:
- bezbariérový přístup do budovy, ostraha 24/7,
- snížený podhled včetně osvětlení,
- příjemné chlazení pomocí splitových fan-coil jednotek,
- otevíratelná okna včetně venkovních žaluzií,
- k dispozici sdílená kuchyňka a sociální zázemí,
- parkování v okolí objektu.

Budova i celý areál jsou střeženy 24hod denně, v areálu naleznete restauraci, obchod s potravinami. Budova a celý areál leží na strategickém místě v rámci brněnské infrastruktury. Je zde výborná dostupnost na dálnice D1 a D2, městská hromadná doprava má své zastávky v bezprostřední blízkosti budovy.
V našem areálu disponujeme dostatečnými parkovacími kapacitami na dvou hlídaných parkovacích plochách. Pro naše budoucí nájemníky je jistě zajímavá i blízkost komárovské cyklostezky (přímo tečuje náš areál) nebo třeba přilehlá odpočinková zóna při zrekonstruovaném nábřeží Ponávky.

Uvedené ceny jsou bez DPH. Podmínkou jsou nájemci, kteří jsou plátci DPH. Energie jsou účtovány na základě skutečné spotřeby.

V případě zájmu nás neváhejte kontaktovat. Rádi Vás prostorem a celým areálem provedeme.

Makléř

Máte zájem o tuto nemovistost?

Tímto, v souladu s nařízením Evropského parlamentu a Rady (EU) 2016/679, v platném znění, prohlašuji, že mi je alespoň 16 let a uděluji tak svůj souhlas se zpracováním zadaných údajů (jméno, telefon, e-mail, ip adresa) společnosti B3 Technology, s.r.o., IČ: 07330600, se sídlem Novostavby 126/23, 435 11 Lom (správce dat), za účelem předání dotazu z tohoto formuláře Vámi vybranému inzerentovi a zpětného kontaktování mé osoby. Osobní údaje bude správce zpracovávat manuálně i automaticky přímo prostřednictvím svých zaměstnanců. Informace předané tímto formulářem budou uloženy v databázi správce maximálně po dobu 10 let. Odvolání souhlasu s uložením a zpracováním poskytnutých dat lze e-mailem na info@origo-reality.cz. V případě podezření na neoprávněné použití Vámi poskytnutých údajů máte právo předat podnět k šetření Úřadu pro ochranu osobních údajů. Více informací
Chystáte se prodat nemovitost?
Pomůžeme Vám!

Přihlášení k odběru

Nenechte si ujít nejnovější nabídky pronájmu kanceláří v Brně.