Prodej rodinného domu, Praha - Kobylisy, Klecanská, 161 m2

Klecanská, Praha, Kobylisy

Rezervováno
26 250 000 Kč
/za nemovitost
Včetně provize a právních služeb
Hypotéka od 117 322 Kč /měs. Chci hypotéku

Parametry domu

StavRezervováno
AdresaKlecanská, Praha, Kobylisy
ID618
StavbaCihlová
Stav objektuPo rekonstrukci
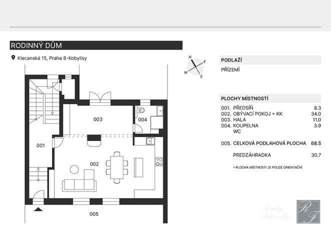
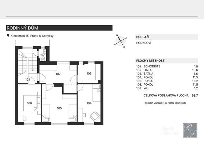
Užitná plocha161 m2
Zastavěná plocha80 m2
Plocha pozemku342 m2
Plocha zahrady262 m2
Třída energetické náročnostiG - Mimořádně nehospodárná
Elektřina230V
PlynPlynovod
OdpadVeřejná kanalizace
VodaVodovod
Topné tělesoPodlahové vytápění, Radiátory
Zdroj topeníPlynový kotel
Sklep

Origo partneři v Praze 8

Stěhovací služby

Výkup a prodej starého nábytku

Popis

Dovoluji si Vám nabídnout prostorný řadový rodinný dům 4+kk v klidné ulici v srdci Kobylis se vzrostlou zahradou, terasou a výjimečnou atmosférou.

Jedná se o mimořádné bydlení se světlým interiérem, vysokými stropy, sklepem, půdou, velkou šatnou, podlahovým topením v přízemí, nízkými provozními náklady a s dalším rozvojovým potenciálem.

Dům prošel kompletní rekonstrukcí před 19 lety a od té doby je pravidelně udržován. Má zcela novou zateplenou fasádu, čerstvě zrekonstruovaná jsou okna, parkety v obývacím pokoji, kuchyň i koupelna. Vytápění zajišťuje plynový kotel. Přitápět lze i krbovými kamny. Komín byl před 2 lety vyvložkován nerezovou vložkou.

Při rekonstrukcích byl kladen důraz na zachování původních architektonických prvků a přírodních materiálů, včetně špaletových oken se zafrézovaným těsněním a izolačním dvojsklem v exteriérové části, či dveří s dřevěnými rámy. Velmi se povedlo osazení velkých dřevěných oken v podkroví. To vše, společně se spoustou dalších detailů, dodává celému interiéru velmi pozitivní osobitý charakter.

V přízemí se nachází chodba s přístupem do suterénu se sklepem, spíž a především vzdušný a prosvětlený obývací prostor, velmi přirozeně propojený s terasou i zahradou. Tato část je doslova klenotem celého domu. Dále tu najdeme koupelnu se sprchovým koutem a toaletou. K dispozici je i další samostatné WC v mezaninu.

V patře jsou tři ložnice, z nichž každá nabízí dostatek místa pro manželskou postel, šatní skříň a další nábytek. K dispozici je také velká samostatná šatna, která je připravena na možnou přeměnu v další koupelnu.

Na zahradě je zastřešená terasa, zahradní domek a venkovní kuchyň. Nabízí se i možnost rozšíření směrem do zahrady (např. zimní zahrada). Zcela komfortní parkování je přímo před domem.

Dům se nachází v klidné rezidenční části Prahy 8 – Kobylisy. Lokalita je ideální pro rodinný život – tichá ulice, kde si hrají děti, les a tenisové kurty hned nad domem, park s koupalištěm a kluzištěm přes ulici, velké beachvolejbalové centrum nedaleko. Panuje zde takřka vesnický klid, ale všechny výhody městského života zůstávají.

Skvělá dostupnost MHD – za 3 minuty dojdete na zastávku tramvaje, 7 minut pěšky na metro Kobylisy a 10 minut na metro Ládví. V okolí je i několik autobusových zastávek. V bezprostředním okolí naleznete veškerou občanskou vybavenost – obchody, poštu, lékárny, restaurace, útulné kavárny, mateřské i základní školy, dětská hřiště, polikliniku i další služby.

Průkaz energetické náročnosti připravujeme, proto je dočasně uvedena třída G

Budu se těšit na setkání s Vámi

Makléř

Máte zájem o tento dům?

Tímto, v souladu s nařízením Evropského parlamentu a Rady (EU) 2016/679, v platném znění, prohlašuji, že mi je alespoň 16 let a uděluji tak svůj souhlas se zpracováním zadaných údajů (jméno, telefon, e-mail, ip adresa) společnosti B3 Technology, s.r.o., IČ: 07330600, se sídlem Novostavby 126/23, 435 11 Lom (správce dat), za účelem předání dotazu z tohoto formuláře Vámi vybranému inzerentovi a zpětného kontaktování mé osoby. Osobní údaje bude správce zpracovávat manuálně i automaticky přímo prostřednictvím svých zaměstnanců. Informace předané tímto formulářem budou uloženy v databázi správce maximálně po dobu 10 let. Odvolání souhlasu s uložením a zpracováním poskytnutých dat lze e-mailem na info@origo-reality.cz. V případě podezření na neoprávněné použití Vámi poskytnutých údajů máte právo předat podnět k šetření Úřadu pro ochranu osobních údajů. Více informací
Chystáte se prodat nemovitost?
Pomůžeme Vám!

Přihlášení k odběru

Nenechte si ujít nejnovější nabídky prodeje rodinných domů v Praze 8.