Prodej rodinného domu, Horní Třešňovec, 427 m2 (ID: 1828179)

Horní Třešňovec

12 990 000 Kč
/za nemovitost
vč. provize RK a právního servisu
Hypotéka od 58 057 Kč /měs. Chci hypotéku

Parametry domu

AdresaHorní Třešňovec
ID178/2980
StavbaCihlová
Stav objektuVelmi dobrý
VybavenoČástečně
Typ objektuPatrový
Druh objektuV bloku
Užitná plocha427 m2
Zastavěná plocha1067 m2
Podlahová plocha427 m2
Plocha pozemku3400 m2
Plocha zahrady2333 m2
Třída energetické náročnostiD - Méně úsporná
Elektřina230V, 400V
KomunikaceAsfaltová
TelekomunikaceInternet, Kabelová televize
DopravaVlak, Silnice, Autobus
Balkon
Garáž
Terasa
Bezbarierový přístup
Parkování
Bazén

Origo partneři v Horním Třešňovci

Popis

Realitní společnost CENTRUM s.r.o. nabízí ve výhradním zastoupení k prodeji zcela výjimečný multifunkční vícegenerační RD s pozemky o rozloze 3.400 m2, ležící v obci Horní Třešňovec, okr. Ústí nad Orlicí.
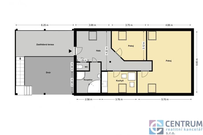
V domě se nachází 3 bytové jednotky (5+1+terasa, 3+kk+terasa, 2+1+terasa), 3 větší garáže, krytý bazén s technickým zázemím vč. příslušenství - finská sauna, fitness, vše vč. soc.zařízení. Součástí této zajímavé nemovitosti je dále udržovaná zahrada s pergolou vč. el. grilu a velké parkoviště se dvěmi vstupními vraty na DO zn. Hörrmann. Dům prošel v roce 2017 celkovou rekonstrukcí a může dobře sloužit jak k trvalému bydlení, tak i podnikání v různých oblastech např. rekreační : penzion ubytování s nabídkou wellnes, fitness, plavání, sportovní aktivity, kosmetické služby aj. Dispozice objektu : dominantou domu je podkrovní byt 5+1 (200 m2) se zastřešenou terasou (9 m2) a zahradního nábytku, ze kterého lze zároveň vstoupit do fitness a bazénu.
Je zde moderní kuchyň na míru s praktickým středovým ostrůvkem a vestavěnými spotřebiči. Kuchyň je prakticky propojena s obývacím prostorem a tvoří příjemný funkční celek o rozloze 53 m2, jehož součástí je klimatizace, el. předokenní žaluzie, kvalitní obložkové dveře z masivu, okna a terasové dveře jsou plastové s tepelně izolačním zasklením. Z centrální chodby se vstupuje do jednotlivých místností obývací kuchyň, 2x pokoj, ložnice se šatnou a vest. skříněmi se zrcadly, technická místnost, kancelář, 2x toaleta, koupelna s vanou a sprchovým koutem. Nad tímto bytem je větší půdní prostor (70 m2).
K domu byla přistavěna nová přístavba kde se nachází dva další byty :
přízemí : bezbariérový byt 3+kk (104 m2) se zastřešenou terasou (25 m2) a předzahrádkou (14 m2). Nad tímto bytem je v obytném podkroví byt o dispozici 2+1 (78 m2), taktéž se zakrytou velkou terasou (20 m2), oba tyto byty mohou být využívány jako apartmány pro wellness rekreaci.
V přední části objektu jsou umístěny garážové prostory s montážní jámou, dílnou a sociálním zázemím pro garáže. Z tohoto důvodu se zde může dařit podnikání v oblasti autoopravny, autodopravy či využít na skladovací prostory. K dopravní manipulaci dobře slouží velké parkoviště.
Technické údaje: voda obecní, el. 220, 380V, plynová přípojka, odkanalizování domu je řešeno septikem - možno se napojit na obecní kanalizaci před domem. Dům vč.krytého bazénu je vytápěn 3 plynovými kotli (r.2016) s rozvody ÚT topení, 2x krbová vložka, přístavba je vytápěna el. přímotopy. Pro úsporu el. energie byla v tomto roce zřízena nová fotovoltaická elektrárna (22 panelů), která zásadně uspoří náklady el. energie procelý tento objekt (na 3 další roky zafixována výhodná sazba el. a plynu u ČEZ). V domě je přípojka internetu a kabelové TV. Celkový stavebně technický stav této nemovitosti je velmi dobrý, vše je dobře udržováno. Bydlení tohoto typu zajistí budoucím majitelům požadavky na kvalitní bydlení v dostupnosti všech služeb. Doporučuji prohlídku.

Makléř

Máte zájem o tento dům?

Tímto, v souladu s nařízením Evropského parlamentu a Rady (EU) 2016/679, v platném znění, prohlašuji, že mi je alespoň 16 let a uděluji tak svůj souhlas se zpracováním zadaných údajů (jméno, telefon, e-mail, ip adresa) společnosti B3 Technology, s.r.o., IČ: 07330600, se sídlem Novostavby 126/23, 435 11 Lom (správce dat), za účelem předání dotazu z tohoto formuláře Vámi vybranému inzerentovi a zpětného kontaktování mé osoby. Osobní údaje bude správce zpracovávat manuálně i automaticky přímo prostřednictvím svých zaměstnanců. Informace předané tímto formulářem budou uloženy v databázi správce maximálně po dobu 10 let. Odvolání souhlasu s uložením a zpracováním poskytnutých dat lze e-mailem na info@origo-reality.cz. V případě podezření na neoprávněné použití Vámi poskytnutých údajů máte právo předat podnět k šetření Úřadu pro ochranu osobních údajů. Více informací
Chystáte se prodat nemovitost?
Pomůžeme Vám!

Přihlášení k odběru

Nenechte si ujít nejnovější nabídky prodeje rodinných domů v Horním Třešňovci.