Prodej kanceláře, Lemesos, Kypr, 65 m2 (ID: 1828116)

Lemesos

560 000 €
/za nemovitost

Parametry nemovitosti

AdresaLemesos
IDF17558
StavbaSmíšená
Stav objektuVe výstavbě
Lokalita objektuKlidná část obce
Užitná plocha65 m2
TelekomunikaceTelefon, Internet
Garáž
Parkování

Origo partneři

Popis

Jsme na místě a jsme první české zastoupení na Kypru.
Díky tomu vám můžeme nabídnout ty nejlepší cenové nabídky investičních i rekreačních nemovitostí po celém ostrově.

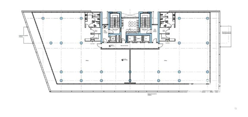
Groove – ikonické 8podlažní business centrum třídy A v srdci Limassolu

Tento prestižní komerční projekt se nachází v jedné z nejvyhledávanějších business oblastí Limassolu, hned vedle ulice Gladstonos poblíž křižovatky Pentadromos. Nabízí celkem 14 moderních kanceláří, 2 maloobchodní prostory a velkorysé parkovací zázemí.

Groove představuje moderní, rostoucí obchodní infrastrukturu – ideální pro investory i společnosti, které hledají reprezentativní kanceláře s funkčním zázemím v prémiové lokalitě.

Hlavní přednosti projektu:
Výrazná architektonická fasáda

1 591 m² soukromých teras

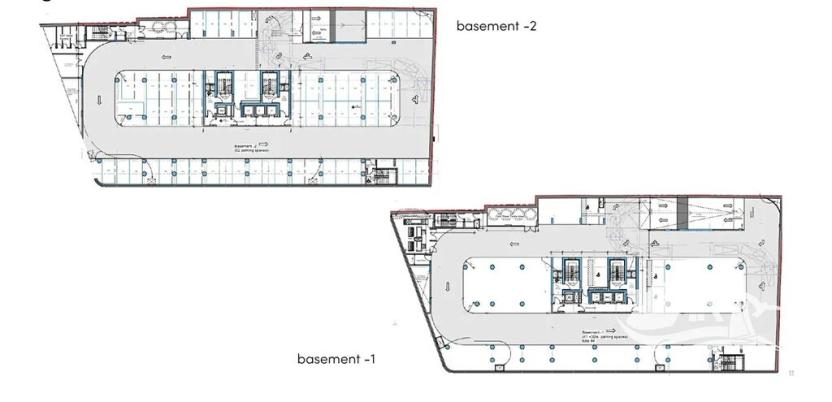
123 podzemních parkovacích míst o celkové ploše 2 243 m²

Maloobchodní jednotky o velikosti 374 až 489 m²

Světlé pracovní prostory s okny od podlahy ke stropu

Flexibilní kanceláře v otevřeném konceptu o rozměrech 335 až 408 m²

Skvělá centrální poloha s rychlým přístupem ke všem důležitým službám a k moři

K dispozici v provedení Shell & Core – možnost maximálního přizpůsobení interiéru

Lokalita:
Groove je situován pouhých 700 metrů od moře, na ulici Gladstonos v živém centru Limassolu. Leží v těsné blízkosti rušné oblasti Pentadromos, nákupní zóny Anexartisias a kouzelného Starého Města. Lokalita nabízí bezkonkurenční dostupnost k občanské vybavenosti, restauracím, barům i základním službám.

Groove tak dokonale spojuje komfort centrální polohy s výhodami blízkosti pobřeží, čímž vytváří ideální prostředí pro firmy i investory hledající vysoký standard a vynikající výnos z nájmu.
Kanceláře:

Kancelářské prostory ve standardu Shell & Core (hrubá stavba připravená k dokončení)

Tepelně izolované hliníkové dveře a okenní rámy s dvojitým zasklením

Příprava na odpadní rozvody vody

Příprava na instalaci sanitárního vybavení

Limassol je byznysové srdce Kypru a výnos z pronájmu komerčních prostor zde může dosahovat až 10 % ročně. Právě teď, před vstupem Kypru do Schengenského prostoru, je ideální čas pro strategickou investici do nemovitostí s vysokým potenciálem zhodnocení.

Nízká kriminalita, výhodné daňové podmínky, široké použití angličtiny a nejdelší letní sezóna v Evropě dělají z Kypru jednu z nejatraktivnějších lokalit pro život i podnikání.

Postaráme se o vše – od výběru nemovitosti po kompletní správu.

Makléř

Máte zájem o tuto nemovistost?

Tímto, v souladu s nařízením Evropského parlamentu a Rady (EU) 2016/679, v platném znění, prohlašuji, že mi je alespoň 16 let a uděluji tak svůj souhlas se zpracováním zadaných údajů (jméno, telefon, e-mail, ip adresa) společnosti B3 Technology, s.r.o., IČ: 07330600, se sídlem Novostavby 126/23, 435 11 Lom (správce dat), za účelem předání dotazu z tohoto formuláře Vámi vybranému inzerentovi a zpětného kontaktování mé osoby. Osobní údaje bude správce zpracovávat manuálně i automaticky přímo prostřednictvím svých zaměstnanců. Informace předané tímto formulářem budou uloženy v databázi správce maximálně po dobu 10 let. Odvolání souhlasu s uložením a zpracováním poskytnutých dat lze e-mailem na info@origo-reality.cz. V případě podezření na neoprávněné použití Vámi poskytnutých údajů máte právo předat podnět k šetření Úřadu pro ochranu osobních údajů. Více informací
Chystáte se prodat nemovitost?
Pomůžeme Vám!

Přihlášení k odběru

Nenechte si ujít nejnovější nabídky prodeje kanceláří.