Prodej rodinného domu, Hýsly, 258 m2 (ID: 1827083)

Hýsly

5 890 000 Kč
/za nemovitost
Původní cena 7.490.000 Kč, včetně poplatků, včetně provize, včetně právního servisu
Hypotéka od 26 325 Kč /měs. Chci hypotéku

Parametry domu

AdresaHýsly
ID03319
StavbaCihlová
Stav objektuVe výstavbě
Typ objektuPatrový
Druh objektuSamostatný
Užitná plocha258 m2
Zastavěná plocha234 m2
Plocha pozemku1152 m2
Plocha zahrady918 m2
Třída energetické náročnostiG - Mimořádně nehospodárná
Elektřina230V
OdpadVeřejná kanalizace
KomunikaceBetonová, Asfaltová
TelekomunikaceInternet
DopravaSilnice, Autobus
VodaVodovod
Garáž
Sklep
Terasa
Bezbarierový přístup
Parkování

Origo partneři v Hýslech

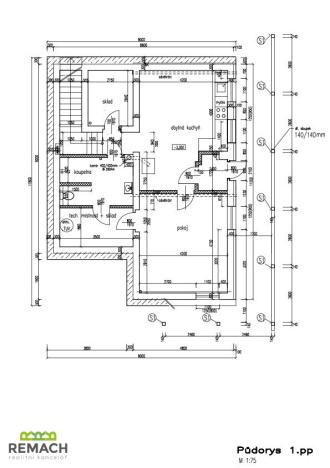
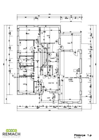
Popis

Tahle stavba má několik výhod. 1) nemusíte čekat na vyřízení stavebního povolení, 2) dispozici si ještě klidně můžete upravit, 3) zvolit si barvy a design svého interiéru, 4) pokračovat klidně i přes zimu, protože už je uzavřená konstrukce.
Díky svému umístění v zeleni nabízí tento solitérní dům všechno soukromí a to nejen uvnitř, ale i na zahradě.

Před domem je počítáno s dvou garáží a minimálně s jedním parkovacími místem. Celková rozloha pozemku je 1152 metrů čtverečních, z toho zastavěná je 234 m2. Na zahradě tak zůstane dostatek místa prto vaše koníčky a aktivity.

Dispozičně se jedná o čtyři kákáčko, tedy tři samostatné ložnice a prostorný obývací pokoj s kuchyňským koutem. Dvě koupelny, dvě šatny, technická místnost, terasa...je tady opravdu vše a to jsme se ještě nedostali do dolního bytu. Ten má jak samostatný vstup, tak i schodiště z předchozího patra (lze uzamčít). Můžete tedy dolní dva kákáčko buď pronajmout nebo mít ubytovanou návštěvu s veškerým komfortem a zázemím.

Dům dostane výjimečný vzhled po realizaci ochozu, který je naprojektovaný z čelní strany domu, dále kolem kuchyně a obýváku až na odpočinkovou terasu. Rozbije tak výšku nejvyšší strany domu.

Přístup na zahradu je i z komunikace za domem a dále možnost dokoupit navazující pozemek, který by ještě více zpřístupnil příjezd. Se starostou obce je domluvena výměna pozemků tak, že dojde k zarovnání hranice.

V kupní ceně je i na míru zhotovené elektrické podlahové topení do celého domu.

Při projekci se myslelo na úspornost, na průkaze PENB najdete hodnotu velmi úsporná. Rozpočet na dodělání máme z roku 2021, tak si to spolu můžeme na prohlídce přepočítat.

Makléř

Máte zájem o tento dům?

Tímto, v souladu s nařízením Evropského parlamentu a Rady (EU) 2016/679, v platném znění, prohlašuji, že mi je alespoň 16 let a uděluji tak svůj souhlas se zpracováním zadaných údajů (jméno, telefon, e-mail, ip adresa) společnosti B3 Technology, s.r.o., IČ: 07330600, se sídlem Novostavby 126/23, 435 11 Lom (správce dat), za účelem předání dotazu z tohoto formuláře Vámi vybranému inzerentovi a zpětného kontaktování mé osoby. Osobní údaje bude správce zpracovávat manuálně i automaticky přímo prostřednictvím svých zaměstnanců. Informace předané tímto formulářem budou uloženy v databázi správce maximálně po dobu 10 let. Odvolání souhlasu s uložením a zpracováním poskytnutých dat lze e-mailem na info@origo-reality.cz. V případě podezření na neoprávněné použití Vámi poskytnutých údajů máte právo předat podnět k šetření Úřadu pro ochranu osobních údajů. Více informací
Chystáte se prodat nemovitost?
Pomůžeme Vám!

Přihlášení k odběru

Nenechte si ujít nejnovější nabídky prodeje rodinných domů v Hýslech.