Prodej rodinného domu, Hodslavice, 211 m2 (ID: 1826020)
Hodslavice
/za nemovitost
Parametry domu
| Adresa | Hodslavice | 
|---|---|
| ID | 922248 | 
| Stavba | Cihlová | 
| Stav objektu | Před rekonstrukcí | 
| Druh objektu | Samostatný | 
| Užitná plocha | 211 m2 | 
| Zastavěná plocha | 137 m2 | 
| Podlahová plocha | 178 m2 | 
| Plocha pozemku | 840 m2 | 
| Plocha zahrady | 369 m2 | 
| Třída energetické náročnosti | G - Mimořádně nehospodárná | 
| Plyn | Plynovod | 
| Odpad | Veřejná kanalizace | 
| Komunikace | Asfaltová | 
| Doprava | Silnice | 
| Voda | Vodovod | 
| Sklep | |
| Parkování | 
Popis
Představuji vám unikátní příležitost ke koupi vícegeneračního rodinného domu s vytvořeným kompletním projektem na rekonstrukci, situovaného v malebné obci Hodslavice. Dům je aktuálně členěn do dvou nadzemních podlaží a jednoho podzemního. Okolí a lokalita nabízí idylický venkovský život s dobrou dostupností do velkých měst a veškerou občanskou vybavenost. Přiložené vizualizace odpovídají připravenému projektu na rekonstrukci, ale není podmínkou dle tohoto projektu rekonstrukci realizovat.
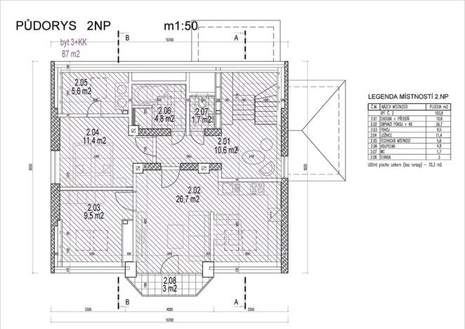
Dům má celkovou obytnou plochu 178 m² a užitkovou plochu 211 m², která je rozložena mezi dvěma nadzemními patry a jedním podzemním podlažím. Dle vytvořené studie a stavebního projektu lze dům přestavět na dvě samostatná bytové jednotky s dispozicí 3+kk, kdy byt ve 2.NP disponuje balkonem a menším podkroví. Obě bytové jednotky budou mít svoje vlastní, oddělené a samostatně přístupné sklepní prostory. Spodní byt v přízemí nabízí potom 78,2 m² užitné plochy a byt ve druhém podlaží potom 87 m². Oba byty počítají s vlastním vstupem, a tedy jsou absolutně na sobě nezávislé. Díky tomu je dům a byty ideální pro rodiny hledající prostor a soukromí. Nicméně lze zachovat aktuální společné prostory a pak může být dům kompletně vícegenerační a nabízet více společných prostor pro rodiny. V současné stavu je dům určen k rekonstrukci, což představuje skvělou příležitost přizpůsobit interiér podle vlastních představ a potřeb, kdy se projekt může změnit dle představ nových majitelů. Po vybudování samostatných bytů lze využít jako investiční příležitost se ziskem z pronájmů.
U domu může vzniknout dle studie 5 parkovacích míst na pozemku za bránou. Aktuálně se počítá s využitím pozemku, který je zastavěný hospodářským stavením, a tento po demolici využít na výstavbu druhého rodinného domu. Není to však podmínkou. 
Hodslavice jsou položeny ideálně uprostřed cesty mezi Novým Jičínem a Valašským Meziříčím, kdy do obou měst se dostanete pohodlně autobusem či do 10 minut osobním vozidlem. Dům s projektem je k dispozici ihned a nákup je možný prostřednictvím hypotečního úvěr jehož nejlepší podmínky vám pomohu zajistit. 
Dům je aktuálně napojen na elektřinu a obecní vodovod. Plynová přípojka a kanalizace se nachází před domem a je možné dům bez problémů napojit. V projektu se počítá s elektrickým kotlem na vytápění a ohřev vody.
Těším se, až vám tento dům a projekt na rekonstrukci budu moci představit osobně. Martin Matela LEV REALIT
Přihlášení k odběru
Nenechte si ujít nejnovější nabídky prodeje rodinných domů v Hodslavicích.
 
                                                                                     
                                                                                     
                                                                                     
                                                                                     
                                                                                     
                                                                                     
                                                                                     
                                                                                     
                                                                                     
                                                                                     
                                                                                     
                                                                                     
                                                                                     
                                                                                     
                                                                                     
                                                                                     
                                                                                     
                                                                                     
                                                                                     
                                                                                     
                                                                                     
                                                                                     
                                                                                     
                                                                                     
                                                                                     
                                                                                     
                                                                                     
                                                                                     
                                                                                     
                                                                                     
                                                                                     
                                                                                     
                                                                                     
                                                                                     
                                                                                     
                                                                                     
                                                                                     
                         
         
         
         
         
         
         
         
        