Prodej rodinného domu, Studená - Skrýchov, 147 m2

Studená, Skrýchov

3 790 000 Kč
/za nemovitost
včetně provize
Hypotéka od 16 939 Kč /měs. Chci hypotéku

Parametry domu

AdresaStudená, Skrýchov
ID01886
StavbaCihlová
Stav objektuPo rekonstrukci
VybavenoNe
Typ objektuPatrový
Druh objektuŘadový
Lokalita objektuKlidná část obce
Užitná plocha147 m2
Plocha pozemku511 m2
Třída energetické náročnostiG - Mimořádně nehospodárná
Elektřina230V, 400V
OdpadVeřejná kanalizace
TopeníÚstřední tuhá paliva
KomunikaceAsfaltová
DopravaSilnice, Autobus
VodaVodovod
Garáž
Výtah
Parkování

Origo partneři v Studené

Výkup a prodej starého nábytku

Popis

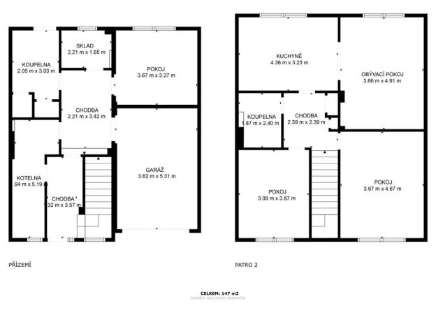
Nabízíme k prodeji řadový rodinný dům v obci Skrýchov, část obce Studená.

Dům má dispozici 4kk a na dvou podlažích nabízí užitnou plochu 147 m².
V přízemí se nachází chodba, praktická garáž, pokoj s výhledem do zahrady, technické zázemí a příprava na další sociální zařízení.
V patře potom najdete 2 neprůchozí pokoje, koupelnu s WC a obývací pokoj s kuchyní.

Před domem se nachází vícero parkovacích míst. Za domem je praktická rovinatá zahrada přístupná autem.

Dům prošel před nedávnem zdařilou rekonstrukcí. Proběhla výměna oken a dveří, nová střecha a zateplení, rekonstrukce podlahy, nové rozvody elektřiny, vody, topení a odpadů. Vytápění je řešeno kotlem na tuhá paliva splňujícím emisní normu.

Momentálně je potřeba instalovat kuchyňskou linku a položit podlahovou krytinu v pokojích.
Poté je dům rovnou obyvatelný. V případě potřeby jsme schopni zajistit realizaci.
Výhodou je, že si kupující může zvolit design a materiály podle svých preferencí.
Výhledově by se hodilo dodělat spodní sociální zařízení a dveře se zárubněmi, případně se nabízí úprava na samostatnou bytovou jednotku 1kk. Poté věříme, že na dlouhou dobu na domě nebude nic k řešení a čeká vás už jen pohodlné bydlení.

Co se týče lokality, tak ta se nese ve venkovském duchu. Jste v bezprostřední blízkosti přírody, kde najdete velké množství turistických a cykloturistických tras.
Veškerou občanskou vybavenost najdete 2 kilometry od domu v obci Studená, kam se pohodlně dostanete i autobusem.
Z větších měst máte na dosah (15 minut autem) Telč a Dačice.

Pokud vás dům zaujal, neváhejte se nám ozvat pro více informací či domluvení prohlídky.
Těšíme se na vás.

Makléř

Máte zájem o tento dům?

Tímto, v souladu s nařízením Evropského parlamentu a Rady (EU) 2016/679, v platném znění, prohlašuji, že mi je alespoň 16 let a uděluji tak svůj souhlas se zpracováním zadaných údajů (jméno, telefon, e-mail, ip adresa) společnosti B3 Technology, s.r.o., IČ: 07330600, se sídlem Novostavby 126/23, 435 11 Lom (správce dat), za účelem předání dotazu z tohoto formuláře Vámi vybranému inzerentovi a zpětného kontaktování mé osoby. Osobní údaje bude správce zpracovávat manuálně i automaticky přímo prostřednictvím svých zaměstnanců. Informace předané tímto formulářem budou uloženy v databázi správce maximálně po dobu 10 let. Odvolání souhlasu s uložením a zpracováním poskytnutých dat lze e-mailem na info@origo-reality.cz. V případě podezření na neoprávněné použití Vámi poskytnutých údajů máte právo předat podnět k šetření Úřadu pro ochranu osobních údajů. Více informací
Chystáte se prodat nemovitost?
Pomůžeme Vám!

Přihlášení k odběru

Nenechte si ujít nejnovější nabídky prodeje rodinných domů v Studené (okr. Jindřichův Hradec).