Prodej rodinného domu, Tupadly, 93 m2 (ID: 1823620)

Tupadly

Cena na vyžádání
/za nemovitost
Získejte výhodnou HYPOTÉKU Chci hypotéku

Parametry domu

AdresaTupadly
ID210905
StavbaCihlová
Stav objektuVe výstavbě
Užitná plocha93 m2
Plocha pozemku650 m2
Elektřina230V
OdpadSeptik
VodaVodovod
Topné tělesoKrbová kamna
Zdroj topeníElektrokotel, Tepelné čerpadlo
Zdroj teplé vodyBojler - elektro
Parkování

Origo partneři v Tupadlech

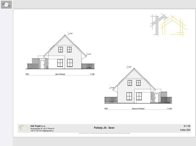
Popis

Nabízíme Vám prodej patrového rodinného domu 93m2, pozemek 650m2.
Dům je řešen jako 3+kk, v přízemí po vstupu hlavním vchodem, kde se v zádveří nachází toaleta s umyvadlem, vejdeme do prostorného obývacího pokoje ( 29,77m2), s kuchyňským koutem. Obývací pokoj disponuje francouzským oknem, ze kterého je vstup na rozlehlou zahradu.
V patře se nachází dva prostorné pokoje ( 16,26 m2 a 13,04m2), které jsou prosvětleny střešními okny a jedním klasickým oknem, což zaručuje dostatek světla. Koupelna s toaletou a vanou rovněž disponuje střešním oknem, které zajištuje komfort světla a možnosti správného odvětrání.
Rodinné domy v Tupadlech jsou řešeny jako dvojdomy, které mají hlavní vchod na jedné (východní) straně a zahrady po obvodu domu.
Projekt je schválen na 12 RD, což zajistí dostatek soukromí pro ty, kteří hledají klidné bydlení v malebném prostředí, kterým Kokořínský kraj je.

Vytápění je řešeno tepelným čerpadlem, v obývacím pokoji je příprava na krbová kamna.
Okna s izolačním 3 sklem, zdivo Porotherm.
Prosklené posuvné portály s izolačním sklem.

Obec Tupadly se nachází v okrese Mělník, kraji Středočeském v chráněné krajinné oblasti Kokořínsko, která nabízí dostatek možností pro výlety, sport a odpočinek v přírodě.
Ve vzdálenosti 36km od Prahy, 7 km západně leží Štětí, 10 km jižně Mělník, 16 km západně Roudnice nad Labem a 21 km jižně Neratovice.

Makléř

Máte zájem o tento dům?

Tímto, v souladu s nařízením Evropského parlamentu a Rady (EU) 2016/679, v platném znění, prohlašuji, že mi je alespoň 16 let a uděluji tak svůj souhlas se zpracováním zadaných údajů (jméno, telefon, e-mail, ip adresa) společnosti B3 Technology, s.r.o., IČ: 07330600, se sídlem Novostavby 126/23, 435 11 Lom (správce dat), za účelem předání dotazu z tohoto formuláře Vámi vybranému inzerentovi a zpětného kontaktování mé osoby. Osobní údaje bude správce zpracovávat manuálně i automaticky přímo prostřednictvím svých zaměstnanců. Informace předané tímto formulářem budou uloženy v databázi správce maximálně po dobu 10 let. Odvolání souhlasu s uložením a zpracováním poskytnutých dat lze e-mailem na info@origo-reality.cz. V případě podezření na neoprávněné použití Vámi poskytnutých údajů máte právo předat podnět k šetření Úřadu pro ochranu osobních údajů. Více informací
Chystáte se prodat nemovitost?
Pomůžeme Vám!

Přihlášení k odběru

Nenechte si ujít nejnovější nabídky prodeje rodinných domů v Tupadlech (okr. Mělník).