Soccer reality

Pronájem obchodního prostoru, Praha - Hloubětín, Poděbradská, 107 m2

Poděbradská, Praha, Hloubětín

42 844 Kč
/za měsíc
Získejte výhodnou HYPOTÉKU Chci hypotéku

Parametry nemovitosti

Náklady na bydlení+ služby 7.605,- Kč/měs. + přefakturace elektřiny a vodné/stočné
AdresaPoděbradská, Praha, Hloubětín
StavbaSmíšená
Stav objektuVelmi dobrý
Patro1. z 3
Lokalita objektuRušná část obce
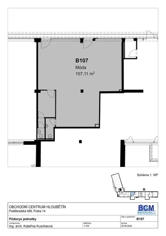
Užitná plocha107 m2
Elektřina230V
OdpadVeřejná kanalizace
KomunikaceAsfaltová
TelekomunikaceInternet
VodaVodovod
Topné tělesoRadiátory
Zdroj teplé vodyPlynový kotel
Výtah

Origo partneři v Praze 9

Stěhovací služby

Výkup a prodej starého nábytku

Popis

Společnost Mikrotechna s.r.o. nabízí k pronájmu obchodní prostory prodejny spotřebního zboží o výměře 107,11 m². Prostory prodejny se nachází v 1.NP a mají dva vlastní vchody z náměstí.

Obchodní centrum je po kompletní rekonstrukci a má výbornou dopravní dostupnost, nachází se přímo u stanice metra B - Hloubětín, v blízkosti stanic tramvají i autobusů. Vlastní parkoviště s první hodinou parkování zdarma, možnost trvalého pronájmu parkovacích stání za 2.000,- Kč/měsíc, klimatizace 1.500,- Kč/jed./měs. Samozřejmostí jsou osobo-nákladní výtahy, internet, kamerový systém.

Makléř

Máte zájem o tuto nemovistost?

Tímto, v souladu s nařízením Evropského parlamentu a Rady (EU) 2016/679, v platném znění, prohlašuji, že mi je alespoň 16 let a uděluji tak svůj souhlas se zpracováním zadaných údajů (jméno, telefon, e-mail, ip adresa) společnosti B3 Technology, s.r.o., IČ: 07330600, se sídlem Novostavby 126/23, 435 11 Lom (správce dat), za účelem předání dotazu z tohoto formuláře Vámi vybranému inzerentovi a zpětného kontaktování mé osoby. Osobní údaje bude správce zpracovávat manuálně i automaticky přímo prostřednictvím svých zaměstnanců. Informace předané tímto formulářem budou uloženy v databázi správce maximálně po dobu 10 let. Odvolání souhlasu s uložením a zpracováním poskytnutých dat lze e-mailem na info@origo-reality.cz. V případě podezření na neoprávněné použití Vámi poskytnutých údajů máte právo předat podnět k šetření Úřadu pro ochranu osobních údajů. Více informací
Chystáte se prodat nemovitost?
Pomůžeme Vám!

Přihlášení k odběru

Nenechte si ujít nejnovější nabídky pronájmu obchodních prostor v Praze 9.