Prodej rodinného domu, Podolí, 257 m2 (ID: 1822705)

Podolí

32 500 000 Kč
/za nemovitost
Hypotéka od 145 255 Kč /měs. Chci hypotéku

Parametry domu

AdresaPodolí
IDPDP008
StavbaCihlová
Stav objektuVelmi dobrý
Užitná plocha257 m2
Podlahová plocha263 m2
Plocha pozemku771 m2
Třída energetické náročnostiG - Mimořádně nehospodárná
Sklep
Výtah
Parkování

Origo partneři v Podolí

Popis

Nadstandardní bydlení v soukromí na exkluzivní adrese? Máme pro Vás ideální řešení!
Představujeme k prodeji výjimečný rodinný dům 5+kk s pečlivě udržovanou zahradou o rozloze 771 m², nacházející se v prestižní lokalitě Podolí u Brna. 
Dům zaručuje maximální soukromí díky neprůjezdné ulici a rozlehlé zahradě, a zároveň nabízí vynikající dopravní dostupnost do centra Brna. V blízkosti najdete dětské hřiště, multifunkční sportoviště i obchod s potravinami.
Dům se vyznačuje prvotřídním stavem a použitím kvalitních materiálů. 
Interiér 1. NP: Moderní kuchyň (13,9 m2) s velkorysou pracovní plochou a ostrůvkem, plně vybavená špičkovými spotřebiči. Jídelna (25,8 m2) s masivním stolem, který poskytne pohodlí i početnější společnosti. Další místnost může sloužit jako spíž (6,6 m2). Obývací část (48,2 m2) dominuje prosklený krb, který vytváří jedinečnou atmosféru. Veškerý nábytek je vyroben na míru a zahrnuje i elegantní knihovnu (15 m2). K dispozici je také koupelna (9,35 m2) se sprchovým koutem, toaletou, pračkou a sušičkou.
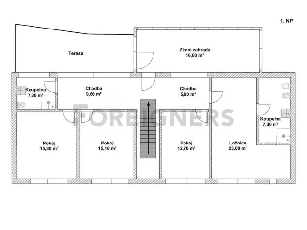
Interiér 2. NP: Prostorná ložnice (23 m²) s vlastní koupelnou (7,3 m2), sprchovým koutem a toaletou. Dva dětské pokoje (15,3 m² a 15,10 m²) a pokoj pro hosty (12,7 m2) nabízejí dostatek prostoru pro celou rodinu. Další koupelna )7,3 m2) s toaletou a sprchovým koutem je vybavena otopným žebříkem. Dominantou patra je prosklená zimní zahrada (16 m2) s terasou, ideální pro večerní posezení.
Dům se pyšní moderními betonovými stropy a velkými prosklenými plochami, které přinášejí spoustu přirozeného světla. Kvalitní přírodní materiály dodávají prostoru pocit útulnosti.
Vytápění: Tepelné čerpadlo – 1. NP podlahové topení, 2. NP radiátory.
Exteriér: Zahrada je okrasná a nabízí mnoho možností – od relaxace pod pergolou, posezení u ohniště, až po vířivku. Přístup do přírody zajišťuje vlastní branka. Carport pro dvě auta a vstup do sklepa z přední části zahrady dodávají na praktičnosti.
Přijďte se přesvědčit o výjimečnosti tohoto domu. 
Těšíme se na Vaši návštěvu!

Makléř

Máte zájem o tento dům?

Tímto, v souladu s nařízením Evropského parlamentu a Rady (EU) 2016/679, v platném znění, prohlašuji, že mi je alespoň 16 let a uděluji tak svůj souhlas se zpracováním zadaných údajů (jméno, telefon, e-mail, ip adresa) společnosti B3 Technology, s.r.o., IČ: 07330600, se sídlem Novostavby 126/23, 435 11 Lom (správce dat), za účelem předání dotazu z tohoto formuláře Vámi vybranému inzerentovi a zpětného kontaktování mé osoby. Osobní údaje bude správce zpracovávat manuálně i automaticky přímo prostřednictvím svých zaměstnanců. Informace předané tímto formulářem budou uloženy v databázi správce maximálně po dobu 10 let. Odvolání souhlasu s uložením a zpracováním poskytnutých dat lze e-mailem na info@origo-reality.cz. V případě podezření na neoprávněné použití Vámi poskytnutých údajů máte právo předat podnět k šetření Úřadu pro ochranu osobních údajů. Více informací
Chystáte se prodat nemovitost?
Pomůžeme Vám!

Přihlášení k odběru

Nenechte si ujít nejnovější nabídky prodeje rodinných domů v Podolí (okr. Brno-venkov).