Prodej bytu 2+kk, České Budějovice, Rudolfovská tř., 98 m2 (ID: 1822636)

Rudolfovská tř., České Budějovice 6

6 750 000 Kč
/za nemovitost
Hypotéka od 30 168 Kč /měs. Chci hypotéku

Parametry bytu

AdresaRudolfovská tř., České Budějovice 6
StavbaCihlová
Stav objektuVelmi dobrý
Patro3.
VybavenoČástečně
Lokalita objektuCentrum obce
VlastnictvíOsobní
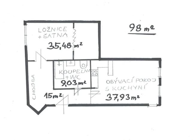
Užitná plocha98 m2
Třída energetické náročnostiC - Úsporná
Elektřina230V
PlynPlynovod
OdpadVeřejná kanalizace
TelekomunikaceInternet, Kabelová televize
DopravaVlak, Dálnice, Silnice, MHD, Autobus
VodaVodovod
Topné tělesoRadiátory
Zdroj topeníPlynový kotel
Zdroj teplé vodyPlynový kotel
Sklep
Výtah

Origo partneři v Českých Budějovicích

Popis

Výhradní nabídka prodeje prostorného zděného bytu umístěného poblíž křížení ulic Rudolfovská/Na Sadech, České Budějovice, v sousedství městského parku a centrálního náměstí Přemysla Otakara II. Tento atypický byt má dispozici 2+kk (možno 3+kk) a podlahovou plochu 98 m2.Byt se nachází ve 2.patře (3.N.P.) bytového domu o celkem 5 nadzemních podlažích.
‌Dispozice bytu: zádveří+chodba – 15 m2, koupelna s WC - 9,03m2, ložnice+šatna -35.48m2 (možno rozdělit) obývací pokoj s kuchyní- 37.93. K bytu náleží sklepní kóje v 1.N.P.o výměře cca 1.5 m2
Byt má vlastní ústřední topení s plynovým kotlem BAXI a rozvody s radiátory.
Byt byl dokončen v r 2014 a je proveden v následujícím provedení : vnitřní dveře dýhované +obložkové zárubně ,povrchy podlah- keram.dlažby+laminátové plovoucí ,okna plastová s izolačními dvojskly ,moderní koupelna se samostatně stojící vanou,umyvadlem a závěsným WC ,vybavená kuchyňská linka s vestavěnými spotřebiči,barem a dvěma digestořemi atd .Na chodbě prostorný výtah Schindler.
Dům je zateplen-energetická třída C.
Díky výborné poloze s blízkostí zeleně a zároveň dostupnosti do centra města je tento byt zajímavý pro široké skupiny zájemců.

Makléř

Máte zájem o tento byt?

Tímto, v souladu s nařízením Evropského parlamentu a Rady (EU) 2016/679, v platném znění, prohlašuji, že mi je alespoň 16 let a uděluji tak svůj souhlas se zpracováním zadaných údajů (jméno, telefon, e-mail, ip adresa) společnosti B3 Technology, s.r.o., IČ: 07330600, se sídlem Novostavby 126/23, 435 11 Lom (správce dat), za účelem předání dotazu z tohoto formuláře Vámi vybranému inzerentovi a zpětného kontaktování mé osoby. Osobní údaje bude správce zpracovávat manuálně i automaticky přímo prostřednictvím svých zaměstnanců. Informace předané tímto formulářem budou uloženy v databázi správce maximálně po dobu 10 let. Odvolání souhlasu s uložením a zpracováním poskytnutých dat lze e-mailem na info@origo-reality.cz. V případě podezření na neoprávněné použití Vámi poskytnutých údajů máte právo předat podnět k šetření Úřadu pro ochranu osobních údajů. Více informací
Chystáte se prodat nemovitost?
Pomůžeme Vám!