Prodej bytu 2+kk, Borová Lada, 71 m2 (ID: 1822068)

Borová Lada

7 970 000 Kč
/za nemovitost
Hypotéka od 35 621 Kč /měs. Chci hypotéku

Parametry bytu

AdresaBorová Lada
ID17251
StavbaSmíšená
Stav objektuNovostavba
Patro3. z 3
VybavenoAno
Lokalita objektuKlidná část obce
VlastnictvíOsobní
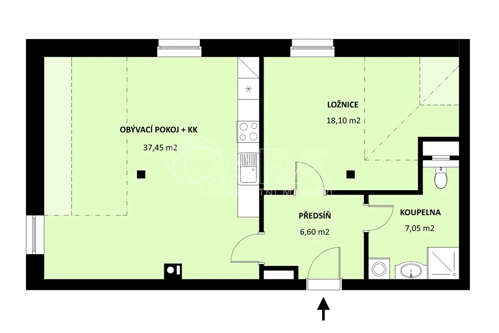
Užitná plocha71 m2
Podlahová plocha71 m2
Třída energetické náročnostiB - Velmi úsporná
Ukazatel energetické náročnosti85 kWh/m2 za rok
OdpadVeřejná kanalizace
Sklep

Origo partneři v Borové Ladě

Výkup a prodej starého nábytku

Popis

Hledáte zázemí pro pobyt na horách, které vám zároveň může sloužit i jako investice? Nebo zkrátka chcete žít na horách a neradi byste se starali o rodinný dům?

Pak je pro vás zajímavou možností koupě prostorného a kompletně zařízeného bytu 2+kk v obci Borová Lada nedaleko oblíbené Kvildy.

Tento byt se nachází ve 2. patře novostavby z roku 2024 a jistě oceníte celkové kvalitní zpracování jak domu, tak bytu vč. jeho vybavení. Dům je kromě vynikajících konstrukčních vlastností vybaven několika tepelnými čerpadly, což jej řadí k domům s minimální energetickou spotřebou.

Hned u vstupu do domu máte k dispozici sklep a před domem pak výhradní parkovací stání.

Skvělá je zejména lokalita, která poskytuje vyžití nejen fanouškům běžeckého lyžování, cyklistiky a turistiky. V dojezdových vzdálenostech jsou lyžařské areály Zadov (cca 20 min cesty) či rakouský Hochficht (75 min cesty).

I občanská vybavenost nahrává možnosti trvalého bydlení - přímo v obci se nachází mateřská i základní škola, pošta, restaurace, obchod se smíšeným zbožím či kavárna.

Přijeďte se podívat, jak lokalita a dispozice bytu vyhovují právě vašim potřebám.

Makléř

Máte zájem o tento byt?

Tímto, v souladu s nařízením Evropského parlamentu a Rady (EU) 2016/679, v platném znění, prohlašuji, že mi je alespoň 16 let a uděluji tak svůj souhlas se zpracováním zadaných údajů (jméno, telefon, e-mail, ip adresa) společnosti B3 Technology, s.r.o., IČ: 07330600, se sídlem Novostavby 126/23, 435 11 Lom (správce dat), za účelem předání dotazu z tohoto formuláře Vámi vybranému inzerentovi a zpětného kontaktování mé osoby. Osobní údaje bude správce zpracovávat manuálně i automaticky přímo prostřednictvím svých zaměstnanců. Informace předané tímto formulářem budou uloženy v databázi správce maximálně po dobu 10 let. Odvolání souhlasu s uložením a zpracováním poskytnutých dat lze e-mailem na info@origo-reality.cz. V případě podezření na neoprávněné použití Vámi poskytnutých údajů máte právo předat podnět k šetření Úřadu pro ochranu osobních údajů. Více informací
Chystáte se prodat nemovitost?
Pomůžeme Vám!

Přihlášení k odběru

Nenechte si ujít nejnovější nabídky prodeje bytů 2+kk v Borové Ladě.