Pronájem bytu 2+1, Liberk - Uhřínov, 61 m2
Liberk, Uhřínov
                                8 450 Kč
/za měsíc
Elektřinu si na sebe převede Nájemce, zálohy cca 900,- Kč, kauce 18.700,- Kč a provize 8.450,- Kč.
                            /za měsíc
Elektřinu si na sebe převede Nájemce, zálohy cca 900,- Kč, kauce 18.700,- Kč a provize 8.450,- Kč.
                                                    Získejte výhodnou HYPOTÉKU
                                                Chci hypotéku
                    
                Parametry bytu
| Adresa | Liberk, Uhřínov | 
|---|---|
| ID | N13471 | 
| Stavba | Cihlová | 
| Stav objektu | Dobrý | 
| Patro | 1. z 2 | 
| Vybaveno | Částečně | 
| Typ objektu | Patrový | 
| Lokalita objektu | Centrum obce | 
| Vlastnictví | Osobní | 
| Užitná plocha | 61 m2 | 
| Podlahová plocha | 67 m2 | 
| Třída energetické náročnosti | G - Mimořádně nehospodárná | 
| Elektřina | 230V | 
| Topení | Ústřední tuhá paliva | 
| Doprava | Silnice, Autobus | 
| Voda | Vodovod | 
| Sklep | |
| Výtah | 
         Origo
        partneři v Liberku    
    Popis
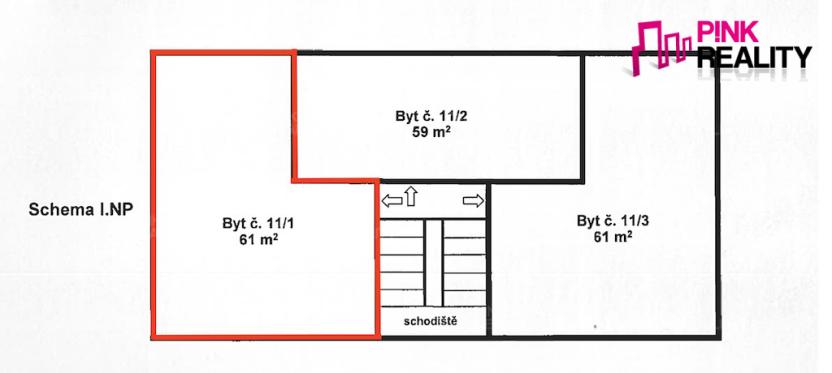
Nabízíme Vám pronájem prostorného bytu 2+1 v obci Liberk, část obce Uhřínov, která je vzdálena 15 km od okresního města Rychnova nad Kněžnou a 10 km od Škoda AUTO Kvasiny. Bytová jednotka je vhodná svou velikostí pro pár či rodinu, její celková výměra je 67 m2 včetně sklepa a je umístěná v 1. NP zděného bytového domu. Vytápění je zajištěno krbovými kamny s výměníkem se záložním zdrojem. Nájemné je bez záloh na energie a byt bude připraven k nastěhování od 01.11.2025. Pro bližší informace a prohlídku kontaktujte naši bezplatnou linku.
Přihlášení k odběru
Nenechte si ujít nejnovější nabídky pronájmu bytů 2+1 v Liberku.
 
                                                                                     
                                                                                     
                                                                                     
                                                                                     
                                                                                     
                                                                                     
                                                                                     
                                                                                     
                                                                                     
                                                                                     
                                                                                     
                                                             
                         
         
         
         
         
        