Prodej rodinného domu, Čistá u Horek, 320 m2 (ID: 1821678)

Čistá u Horek

3 590 000 Kč
/za nemovitost
Hypotéka od 16 045 Kč /měs. Chci hypotéku

Parametry domu

AdresaČistá u Horek
IDN113452
StavbaCihlová
Stav objektuDobrý
VybavenoNe
Druh objektuSamostatný
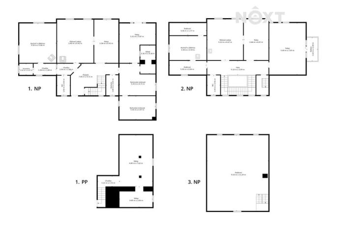
Užitná plocha320 m2
Zastavěná plocha320 m2
Plocha pozemku2349 m2
Třída energetické náročnostiG - Mimořádně nehospodárná
Elektřina400V
OdpadSeptik
TopeníLokální tuhá paliva, Ústřední tuhá paliva
KomunikaceAsfaltová
DopravaSilnice, Autobus
VodaStudna
Topné tělesoRadiátory, Krbová kamna, Kotel na tuhá paliva, Kamna
Zdroj topeníKrbová kamna, Kamna
Zdroj teplé vodyKotel na tuhá paliva
Bezbarierový přístup

Origo partneři v Čisté u Horek

Rekonstrukce

Úklidové služby

Popis

Hledáte místo, které vám nabídne prostor, soukromí a nekonečné možnosti? Tato výjimečná usedlost z roku 1895 kombinuje kouzlo historie s praktickými úpravami pro současné bydlení a nabízí obrovský potenciál pro toho, kdo ji dokáže správně uchopit. Co vás zde čeká: - Dům s duší a velkorysými rozměry – dvě plnohodnotná patra (každé 160 m²), sklep (30 m²) a prostorné podkroví. - Nové ústřední topení + lokální topidla v každé místnosti. - Kombinace původních dřevěných a novějších plastových oken, střecha z tašek a plechu. - Vlastní studna + septik, přípojka obecního vodovodu na hranici pozemku. Pozemky a zázemí: - Celková výměra 2 349 m², z toho 320 m² tvoří zastavěná plocha domu a dílen. - Dílny a prostory ideální pro řemeslnou výrobu, skladování nebo podnikání. - Historicky zde fungovalo řeznictví s prodejnou – možnost navázat na tradici nebo využít zcela novým způsobem. - Ideální také jako zemědělská usedlost – dostatek místa pro chov hospodářských zvířat, ustájení i skladování krmiva. Poloha a obec: - Na neutrální půdě – všude blízko: do královského města Jičín, k Prachovským skalám, i do horských areálů Pec pod Sněžkou, Špindlerův Mlýn, Trutnov a Vrchlabí. - Srdce klidné obce – pár kroků k sokolovně, kroužkům, restauraci a obchodu. - V docházkové vzdálenosti pošta, jesle, mateřská školka s prvky Montessori. - Obec plánuje výstavbu chodníků pro vyšší bezpečnost a komfort obyvatel. Příroda na dosah: - Jen 300 metrů od domu se otevírá úchvatný výhled na Krkonoše. - Okolí nabízí rybník, rozlehlé louky a lesy pro klidné procházky i aktivní odpočinek. ‘ - V sousední vesnici najdete zrenovované koupaliště, ideální pro letní dny. Pro koho je tato usedlost ideální? - Pro velkou rodinu hledající prostor a soukromí - Pro ty, kdo chtějí spojit bydlení s podnikáním - Pro hospodáře a chovatele, kteří chtějí skloubit domov s péčí o zvířata - Pro investory či kreativní duše, kteří vidí příležitost a mají odvahu ji využít naplno. Tato nemovitost čeká na člověka, který v ní uvidí víc než jen dům – místo, kde se splní jeho představy a sny. Rádi vás přivítáme, provedeme každým koutem a podělíme se o atmosféru, kterou fotky nikdy plně nezachytí. Prohlídky jsou možné i o víkendech – těšíme se na osobní setkání a věříme, že si Vás tato usedlost získá stejně jako nás. Pro komunikaci uvádějte evidenční číslo zakázky N113452.

Makléř

Máte zájem o tento dům?

Tímto, v souladu s nařízením Evropského parlamentu a Rady (EU) 2016/679, v platném znění, prohlašuji, že mi je alespoň 16 let a uděluji tak svůj souhlas se zpracováním zadaných údajů (jméno, telefon, e-mail, ip adresa) společnosti B3 Technology, s.r.o., IČ: 07330600, se sídlem Novostavby 126/23, 435 11 Lom (správce dat), za účelem předání dotazu z tohoto formuláře Vámi vybranému inzerentovi a zpětného kontaktování mé osoby. Osobní údaje bude správce zpracovávat manuálně i automaticky přímo prostřednictvím svých zaměstnanců. Informace předané tímto formulářem budou uloženy v databázi správce maximálně po dobu 10 let. Odvolání souhlasu s uložením a zpracováním poskytnutých dat lze e-mailem na info@origo-reality.cz. V případě podezření na neoprávněné použití Vámi poskytnutých údajů máte právo předat podnět k šetření Úřadu pro ochranu osobních údajů. Více informací
Chystáte se prodat nemovitost?
Pomůžeme Vám!

Přihlášení k odběru

Nenechte si ujít nejnovější nabídky prodeje rodinných domů v Čisté u Horek.