Prodej pozemku pro bydlení, Chbany, 915 m2 (ID: 1821235)
Chbany, Vadkovice
/za nemovitost
včetně poplatků, včetně provize, včetně právního servisu
Parametry pozemku
| Adresa | Chbany, Vadkovice | 
|---|---|
| ID | 01526 | 
| Plocha pozemku | 915 m2 | 
| Elektřina | 230V | 
| Voda | Místní zdroj vody | 
Popis
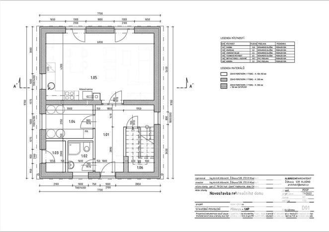
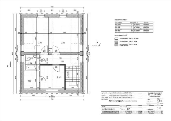
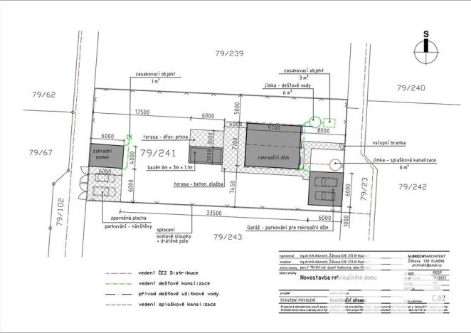
Exkluzivně nabízíme k prodeji stavební pozemek ve vyhledávané lokalitě, v blízkosti Nechranické přehrady, určený ke stavbě pro rodinnou rekreaci. Pozemek je zasíťovaný elektřinou, na hranici pozemku se vyústění vody, je možné vybudovat vodovodní šachtu. Pozemek je rovinatý s výměrou 915 m2, prodej je včetně 1/39 podílu na příjezdové cestě. Na tomto pozemku je vyřízené platné stavební povolení pro celoroční rekreační objekt, viz. foto a zpracovaný projekt pro stavbu je v ceně pozemku.
V okolní zástavbě jsou rekreační chaty a chaty k celoročnímu využití. Klidné místo s dojezdovou vzdáleností do města do 15 km. Bližší informace po telefonu.
Přihlášení k odběru
Nenechte si ujít nejnovější nabídky prodeje pozemků pro bydlení v Chbanech.
 
                                                                                     
                                                                                     
                                                                                     
                                                                                     
                                                                                     
                                                                                     
                                                                                     
                                                                                     
                                                                                     
                                                                                     
                                                                                     
                                                                                     
                                                                                     
                                                                                     
                                                                                     
                                                                                     
                                                                                     
                                                                                     
                                                                                     
                                                             
                                                             
                                                             
                         
         
         
         
         
         
        