Pronájem skladu, Zákolany, 100 m2 (ID: 1821096)

Zákolany

4 500 Kč
/za měsíc
bez poplatků, + provize RK, včetně právního servisu
Získejte výhodnou HYPOTÉKU Chci hypotéku

Parametry nemovitosti

AdresaZákolany
ID00740
StavbaSmíšená
Stav objektuŠpatný
Typ objektuPřízemní
Druh objektuSamostatný
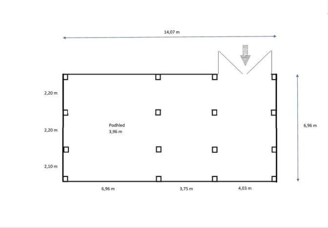
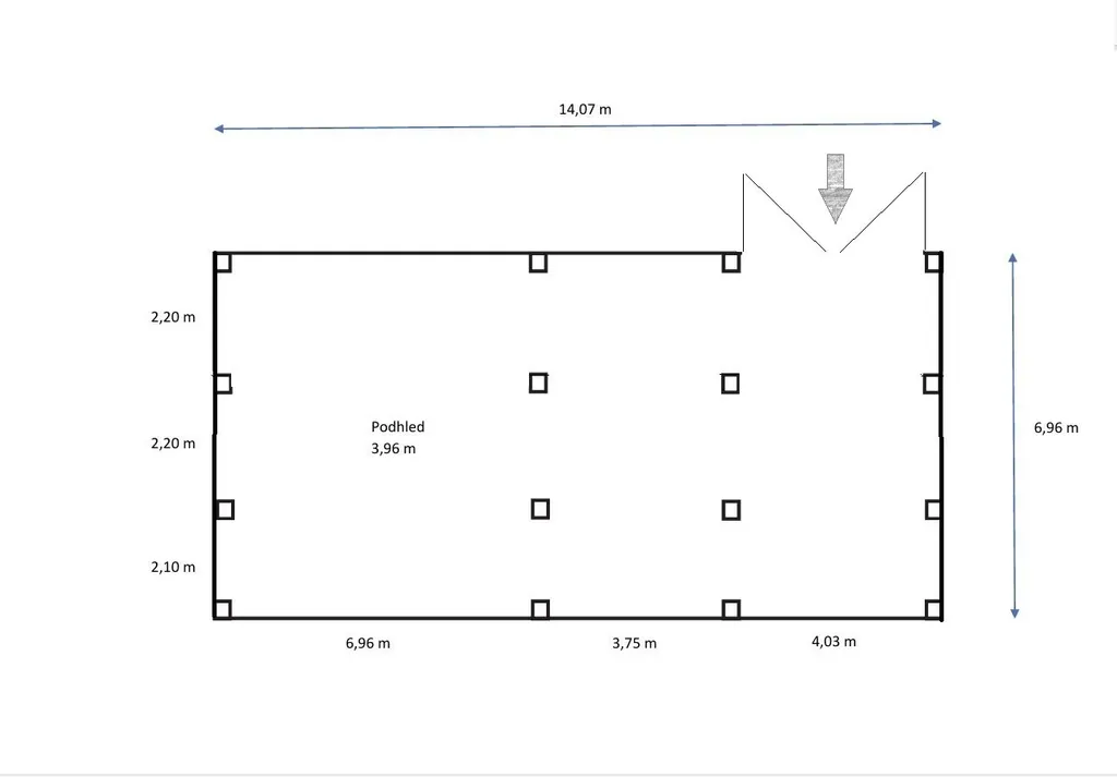
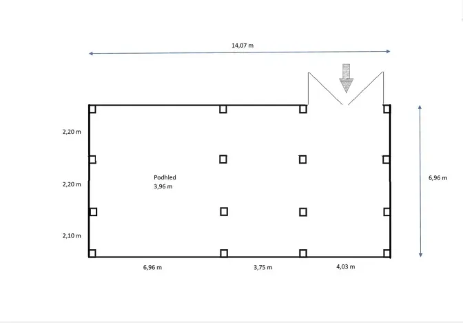
Užitná plocha100 m2
Třída energetické náročnostiG - Mimořádně nehospodárná
Elektřina230V, 400V
OdpadČOV pro celý objekt
KomunikaceBetonová
DopravaVlak, Silnice, Autobus
VodaMístní zdroj vody

Origo partneři v Zákolanech

Popis

Nabízím pronájem haly s částečně kovovou konstrukcí v Zákolanech. Opláštění budovy je v horším technickém stavu, betonová podlaha. Hala má zavedenou silovou el. včetně rozvaděče opatřeného zásuvkami a vlastní podružný elektroměr s jističem 100A tř. B. Možnost jakýchkoliv konstruktivních úprav nájemcem. Sociální zázemí (WC) v areálu k dispozici. Uzavřený areál, kamerový systém, fyzická přítomnost správce 24/7. Vhodné i pro nerušící výrobu, široká vrata. Preferován dlouhodobý nájemní vztah. Nájem 4.500 Kč + elektřina, kauce není nutná, provize 4.500 Kč + DPH. Výborná dostupnost: 15 min dojezd od Prahy, 8 min R7, 15 min D8, 15 min letiště. V obci zastávku busu i vlaku. Volné ihned.

Makléř

Máte zájem o tuto nemovistost?

Tímto, v souladu s nařízením Evropského parlamentu a Rady (EU) 2016/679, v platném znění, prohlašuji, že mi je alespoň 16 let a uděluji tak svůj souhlas se zpracováním zadaných údajů (jméno, telefon, e-mail, ip adresa) společnosti B3 Technology, s.r.o., IČ: 07330600, se sídlem Novostavby 126/23, 435 11 Lom (správce dat), za účelem předání dotazu z tohoto formuláře Vámi vybranému inzerentovi a zpětného kontaktování mé osoby. Osobní údaje bude správce zpracovávat manuálně i automaticky přímo prostřednictvím svých zaměstnanců. Informace předané tímto formulářem budou uloženy v databázi správce maximálně po dobu 10 let. Odvolání souhlasu s uložením a zpracováním poskytnutých dat lze e-mailem na info@origo-reality.cz. V případě podezření na neoprávněné použití Vámi poskytnutých údajů máte právo předat podnět k šetření Úřadu pro ochranu osobních údajů. Více informací
Chystáte se prodat nemovitost?
Pomůžeme Vám!

Přihlášení k odběru

Nenechte si ujít nejnovější nabídky pronájmu skladů v Zákolanech.