Pronájem bytu 1+kk, Praha - Nusle, 47 m2

Praha 2 - Nusle

23 900 Kč
/za měsíc
+ poplatky 3.000,- + elektřina přepis na zájemce, 1x provize, vratná kauce
Získejte výhodnou HYPOTÉKU Chci hypotéku

Parametry bytu

AdresaPraha 2 - Nusle
ID10929
StavbaCihlová
Stav objektuNovostavba
VybavenoAno
VlastnictvíOsobní
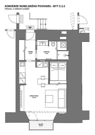
Užitná plocha47 m2
Třída energetické náročnostiG - Mimořádně nehospodárná

Origo partneři v Praze 2

Stěhovací služby

Výkup a prodej starého nábytku

Popis

Nabízíme k pronájmu kompletně vybavený byt 1+kk s podlahovou plochou 44 m² v exkluzivním rezidenčním projektu Nuselský pivovar, který spojuje moderní bydlení s historickým kouzlem této unikátní lokality.

Vybavení:
Plně vybavená kuchyňská linka - lednice, mrazák, myčka, trouba se sklokeramickou varnou deskou.
Vestavěné skříně s dostatkem úložného prostoru.
Postel, pohovka, jídelní stůl a židle, stolek pod TV.
Velká okna zajišťující dostatek světla nebo naopak uplné zatemnění - plisé žaluzie.
Balkon pro venkovní posezení.

Byt se nachází v novostavbě a nabízí nadstandardní provedení a příjemnou atmosféru. V bytě budete prvními nájemníky.

V suterénu domu na vás čeká parkovací stání, na patře potom prostorný sklep.

Výhody:
Novostavba v prémiovém projektu.
Výborná dostupnost MHD tramvaj, metro.
Blízkost parků Folimanka a Grébovka.
Veškerá občanská vybavenost v okolí.

O projektu:
Projekt Nuselský pivovar, realizovaný společností Penta Real Estate, představuje novou městskou čtvrť v pražských Nuslích, mezi ulicemi Bělehradská a Křesomyslova, nedaleko divadla Na Fidlovačce. Kombinuje pečlivou rekonstrukci historických budov bývalého pivovaru s moderní rezidenční výstavbou.

Lokalita projektu nabízí výhodnou polohu na rozhraní Vinohrad a Nuslí, v blízkosti parků Folimanka a Grébovka, s dobrou dostupností do centra města. Projekt získal ocenění Cena architektů v soutěži Realitní projekty roku 2021. Součástí projektu je i supermarket, drogerie, pošta, květinářství, trafika, kavárna/pekárna.

Celkově projekt přináší originální bydlení na výjimečném místě, kde se harmonicky prolíná moderní architektura se zachováním kulturního dědictví.

Byt bude k dispozici od prosince 2025, prohlídky budou možné od listopadu 2025. Pro více informací mne neváhejte kontaktovat.

Makléř

Máte zájem o tento byt?

Tímto, v souladu s nařízením Evropského parlamentu a Rady (EU) 2016/679, v platném znění, prohlašuji, že mi je alespoň 16 let a uděluji tak svůj souhlas se zpracováním zadaných údajů (jméno, telefon, e-mail, ip adresa) společnosti B3 Technology, s.r.o., IČ: 07330600, se sídlem Novostavby 126/23, 435 11 Lom (správce dat), za účelem předání dotazu z tohoto formuláře Vámi vybranému inzerentovi a zpětného kontaktování mé osoby. Osobní údaje bude správce zpracovávat manuálně i automaticky přímo prostřednictvím svých zaměstnanců. Informace předané tímto formulářem budou uloženy v databázi správce maximálně po dobu 10 let. Odvolání souhlasu s uložením a zpracováním poskytnutých dat lze e-mailem na info@origo-reality.cz. V případě podezření na neoprávněné použití Vámi poskytnutých údajů máte právo předat podnět k šetření Úřadu pro ochranu osobních údajů. Více informací
Chystáte se prodat nemovitost?
Pomůžeme Vám!