Prodej rodinného domu, Nymburk, Boleslavská třída, 295 m2

Boleslavská třída, Nymburk

12 140 000 Kč
/za nemovitost
Hypotéka od 54 258 Kč /měs. Chci hypotéku

Parametry domu

AdresaBoleslavská třída, Nymburk
ID919041
StavbaSmíšená
Stav objektuDobrý
VybavenoČástečně
Druh objektuŘadový
Lokalita objektuCentrum obce
VlastnictvíOsobní
Užitná plocha295 m2
Plocha pozemku264 m2

Origo partneři v Nymburku

Popis

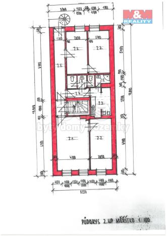
Přízemí (I.NP) cca 85m2 tvoří nebytové prostory, k využití pro obchodní činnost nebo kancelářské zázemí, případně pro gastronomický provoz, se sociálním zázemím, komorou a prostupem na klidnou zahradu ve vnitrobloku.
II.NP o výměře cca 105m2 tvoří 4 kanceláře, 1 propojovací chodba, sociální zázemí (2x WC a 1x samostatná koupelna se sprchou) a kuchyň. Po zadním schodišti sestoupit na zahradu.
III.NP (podkroví) o výměře cca 105 m2 tvoří atypický otevřený byt s velkým společným prostorem (kuchyně, jídelní část a obývací část) s klimatizací, jedním větším samostatným pokojem s okny do vnitrobloku (ložnice), jedním menším samostatným pokojem s okny do ulice (dětský pokoj/pracovna) s klimatizací, nadstandardně velkou průchozí koupelnou s vanou a sprchovým koutem a samostatnou šatnou s úložným prostorem.
Pod domem se nachází hezký historický sklep se stabilní teplotou, který lze využít k uskladnění mnoha věcí.

Makléř

Máte zájem o tento dům?

Tímto, v souladu s nařízením Evropského parlamentu a Rady (EU) 2016/679, v platném znění, prohlašuji, že mi je alespoň 16 let a uděluji tak svůj souhlas se zpracováním zadaných údajů (jméno, telefon, e-mail, ip adresa) společnosti B3 Technology, s.r.o., IČ: 07330600, se sídlem Novostavby 126/23, 435 11 Lom (správce dat), za účelem předání dotazu z tohoto formuláře Vámi vybranému inzerentovi a zpětného kontaktování mé osoby. Osobní údaje bude správce zpracovávat manuálně i automaticky přímo prostřednictvím svých zaměstnanců. Informace předané tímto formulářem budou uloženy v databázi správce maximálně po dobu 10 let. Odvolání souhlasu s uložením a zpracováním poskytnutých dat lze e-mailem na info@origo-reality.cz. V případě podezření na neoprávněné použití Vámi poskytnutých údajů máte právo předat podnět k šetření Úřadu pro ochranu osobních údajů. Více informací
Chystáte se prodat nemovitost?
Pomůžeme Vám!

Přihlášení k odběru

Nenechte si ujít nejnovější nabídky prodeje rodinných domů v Nymburku.