Prodej rodinného domu, Vonoklasy, K Louži, 155 m2 (ID: 1817856)

K Louži, Vonoklasy

Cena na vyžádání
/za nemovitost
Zvýhodněná kupní cena s platností do konce měsíce srpna 2025
Získejte výhodnou HYPOTÉKU Chci hypotéku

Parametry domu

AdresaK Louži, Vonoklasy
StavbaCihlová
Stav objektuVelmi dobrý
Užitná plocha155 m2
Plocha pozemku2007 m2
OdpadVeřejná kanalizace
TopeníJiné
KomunikaceAsfaltová
DopravaVlak, Dálnice, Silnice, MHD, Autobus
VodaVodovod
Garáž
Parkování

Origo partneři v Vonoklasech

Popis

Vyhlašujeme prodej nádherné stavební parcely, která se nachází v centru malé obce Vonoklasy, kdy ze svažitého pozemku je krásný výhled do širokého okolí. Spádovým centrem jsou 4 km vzdálené Černošice.



1. Popis nabízených nemovitostí

Svažitá parcela (parcela St. 51) o výměře 2.007m2, kdy se na tomto pozemku nachází starší zděný rodinný dům).

Jak již bylo řečeno, na parcela St. 51 se nachází starší dvougenerační zděný rodinný dům, zastavěná plocha domu činí 135m2.

Dům byl vystavěn v roce 1974, má 2.NP a není podsklepen. Dům prošel postupně od roku 1998 až do roku 2015 průběžnou přestavbou a modernizací. Je zateplen (10cm), položena kvalitní pálená taška, vytápění domu + ohřev vody je zajištěno nově vybudovaným (2017) tepelným čerpadlem (vzduch –voda). V domě instalována plastová okna, nové rozvody vody (plast), elektro (měď), topení.

Dům je napojen na obecní kanalizaci, obecní vodovod + vlastní studna (oba zdroje zavedeny do domu a lze volit mezi zdroji), plyn, elektro.

Dům nyní pronajatý na domu určitou do listopadu 2025, kdy čistý výnos z nájmu měsíčně činní: 25.000,- Kč



2. Budoucí využití nabízené nemovitosti

Současný vlastník nabízeného pozemku má zpracovanou architektonickou studii pro budoucí využití nabízených pozemků.


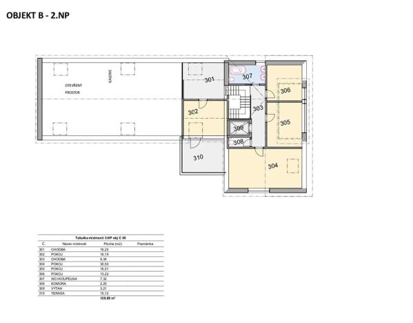
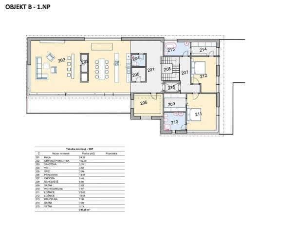
Na pozemku (parcela St. 51 o výměře 2.007m2), je navržena jedinečná luxusni solitérní vila s jedním polozapuštěným a dvěma nadzemními podlažími, garáží pro 5 automobilů, posilovnou, vnitřním bazénem s wellness a barem – vše o celkové podlahové ploše 775m2.

Dům je vertikálně propojen výtahem, který spojuje všechna podlaží. Architektonický záměr byl projednán s odborem územního plánování, představiteli obce a v architektonické komisy CHKO, kde získal kladné stanovisko. Investor (vlastník) je připraven v případě zájmu konkrétního vážného zájemce architektonický návrh rozpracovat do podoby projektové dokumentace pro získání územního rozhodnutí/souhlasu a stavebního povolení ve spojeném řízení, včetně zajištění projednání na dotčených orgánech státní správy a samosprávy až do fáze získání povolení, a to včetně zapracování specifických požadavků zájemce.
Investor je připraven i na variantu realizace celého záměru pro konkrétního zájemce až do fáze konečné realizace stavby a její kolaudace.




3. Popis lokality

Vonoklasy se nacházejí v chráněné krajinné oblasti Český kras, jihozápadně od Prahy, směrem ke Karlštejnu, prochází jimi několik turistických tras. Přestože je obec na dohled Berounce. Nejbližším centrem, dopravním, nákupním, snad i vzdělávacím a kulturním je obec Černošice.

Makléř

Máte zájem o tento dům?

Tímto, v souladu s nařízením Evropského parlamentu a Rady (EU) 2016/679, v platném znění, prohlašuji, že mi je alespoň 16 let a uděluji tak svůj souhlas se zpracováním zadaných údajů (jméno, telefon, e-mail, ip adresa) společnosti B3 Technology, s.r.o., IČ: 07330600, se sídlem Novostavby 126/23, 435 11 Lom (správce dat), za účelem předání dotazu z tohoto formuláře Vámi vybranému inzerentovi a zpětného kontaktování mé osoby. Osobní údaje bude správce zpracovávat manuálně i automaticky přímo prostřednictvím svých zaměstnanců. Informace předané tímto formulářem budou uloženy v databázi správce maximálně po dobu 10 let. Odvolání souhlasu s uložením a zpracováním poskytnutých dat lze e-mailem na info@origo-reality.cz. V případě podezření na neoprávněné použití Vámi poskytnutých údajů máte právo předat podnět k šetření Úřadu pro ochranu osobních údajů. Více informací
Chystáte se prodat nemovitost?
Pomůžeme Vám!

Přihlášení k odběru

Nenechte si ujít nejnovější nabídky prodeje rodinných domů v Vonoklasech.