Pronájem kanceláře, Jindřichův Hradec, Pravdova, 14 m2
Pravdova, Jindřichův Hradec II
/za měsíc
Záloha na dodávku služeb a energií +1.880,- Kč + DPH/měsíc. Vratná kauce 3.920,- Kč. Provize pro RK 4.000,- Kč.
Parametry nemovitosti
| Adresa | Pravdova, Jindřichův Hradec II | 
|---|---|
| ID | 2025118 | 
| Stavba | Cihlová | 
| Stav objektu | Dobrý | 
| Patro | 3. z 5 | 
| Lokalita objektu | Rušná část obce | 
| Užitná plocha | 14 m2 | 
| Podlahová plocha | 14 m2 | 
| Třída energetické náročnosti | G - Mimořádně nehospodárná | 
| Elektřina | 230V | 
| Odpad | Veřejná kanalizace | 
| Topení | Ústřední plynové | 
| Komunikace | Asfaltová | 
| Doprava | Vlak, Silnice, MHD | 
| Voda | Vodovod | 
| Výtah | |
| Bezbarierový přístup | 
Výkup a prodej starého nábytku
Popis
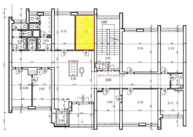
Pronájem slunné kanceláře ve 3. nadzemním podlaží kancelářské budovy s výtahem v Pravdově ulici, Jindřichův Hradec. 
Podlahová plocha 14 m2 nabízí jednu místnost orientovanou na jihovýchod. Dále k užívání společné sociální zařízení a společná kuchyňka na patře. Možnost využití doplňkových služeb. Parkovací místo na pozemku přes ulici za příplatek 400,- Kč/měsíc dle volné kapacity, dále úklid kanceláře za příplatek 600,- Kč/měsíc.
Záloha na dodávku služeb a energií +1.880,- Kč + DPH/měsíc. Vratná kauce 3.920,- Kč. Provize pro RK 4.000,- Kč.
Pronajímatel si vyhrazuje výběr nájemce dle svých vlastních kritérií.
Ihned k užívání.
Přihlášení k odběru
Nenechte si ujít nejnovější nabídky pronájmu kanceláří v Jindřichově Hradci.
 
                                                                                     
                                                                                     
                                                                                     
                                                                                     
                                                                                     
                                                                                     
                                                                                     
                         
         
        