Pronájem obchodního prostoru, Brno, Horova, 132 m2 (ID: 1817419)

Horova, Brno, Žabovřesky

34 000 Kč
/za měsíc
+ zálohy na energie
Získejte výhodnou HYPOTÉKU Chci hypotéku

Parametry nemovitosti

AdresaHorova, Brno, Žabovřesky
IDKOM112
StavbaCihlová
Stav objektuVelmi dobrý
Patro1.
VybavenoNe
Lokalita objektuRušná část obce
Užitná plocha132 m2
Třída energetické náročnostiG - Mimořádně nehospodárná
Elektřina230V, 400V
PlynPlynovod
OdpadVeřejná kanalizace
KomunikaceAsfaltová
VodaVodovod
Topné tělesoRadiátory
Zdroj topeníPlynový kondenzační kotel
Zdroj teplé vodyPlynový kondenzační kotel
Bezbarierový přístup
Parkování

Origo partneři v Brně

Popis

Přízemní komerční prostor se vstupem z frekventované ulice

Ve výhradním zastoupení majitele Vám nabízíme pronájem atraktivních, kompletně zrekonstruovaných nebytových prostor, s výbornou dopravní dostupností, situovaných v přízemí polyfunkčního domu v žádané lokalitě Brno Žabovřesky.

Majitel nemovitosti upřednostňuje využití pro fyzioterapie, rehabilitace, masáže, ordinace, lékárnu, showroom apod.

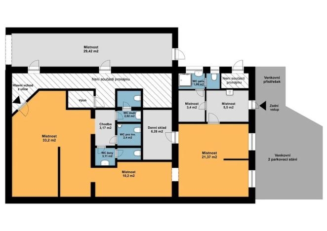
Dispozice a plocha:
• obchodní prostor (1. NP): 131,5 m² - zcela rekonstruovaný, bezbariérový vstup z
frekventované ulice
• možnost dalších skladových prostor 40,5 m² v suterénu budovy
• dva vstupy: přední pro zákazníky, zadní vhodný např. pro
zásobování
• dispozice a rozmístění místností viz přiložený půdorys

Dopravní dostupnost a lokalita:
• vynikající viditelnost z ulice
• zastávka tramvaje pouze 50 m od objektu
• rychlý dojezd do centra i na dálniční přivaděče
• 2 vyhrazená parkovací místa přímo u zadního vstupu ve dvoře (v ceně nájmu)

Technické vybavení:
• podlahy splňují zdravotnické parametry
• klimatizace
• vnitřní žaluzie
• vlastní plynový kondenzační kotel BAXI
• elektrické rozvody 230/400 V
• připojení k internetu

Cenové podmínky:
• Nájemné: 34.000 Kč/měs.
• Zálohy na energie: 4.500 Kč/měs.
• Jistota pro majitele (kauce): 50.000 Kč

Prohlídky jsou možné od 15.9.2025.

Makléř

Máte zájem o tuto nemovistost?

Tímto, v souladu s nařízením Evropského parlamentu a Rady (EU) 2016/679, v platném znění, prohlašuji, že mi je alespoň 16 let a uděluji tak svůj souhlas se zpracováním zadaných údajů (jméno, telefon, e-mail, ip adresa) společnosti B3 Technology, s.r.o., IČ: 07330600, se sídlem Novostavby 126/23, 435 11 Lom (správce dat), za účelem předání dotazu z tohoto formuláře Vámi vybranému inzerentovi a zpětného kontaktování mé osoby. Osobní údaje bude správce zpracovávat manuálně i automaticky přímo prostřednictvím svých zaměstnanců. Informace předané tímto formulářem budou uloženy v databázi správce maximálně po dobu 10 let. Odvolání souhlasu s uložením a zpracováním poskytnutých dat lze e-mailem na info@origo-reality.cz. V případě podezření na neoprávněné použití Vámi poskytnutých údajů máte právo předat podnět k šetření Úřadu pro ochranu osobních údajů. Více informací
Chystáte se prodat nemovitost?
Pomůžeme Vám!