Prodej pozemku pro bydlení, Náchod, Komenského, 440 m2

Komenského, Náchod

4 500 000 Kč
/za nemovitost
Hypotéka od 20 112 Kč /měs. Chci hypotéku

Parametry pozemku

AdresaKomenského, Náchod
ID322PN
Plocha pozemku440 m2
Elektřina230V, 400V
PlynPlynovod
OdpadVeřejná kanalizace
KomunikaceAsfaltová
DopravaVlak, Silnice, Autobus
VodaVodovod

Origo partneři v Náchodě

Pojištění a finance

Popis

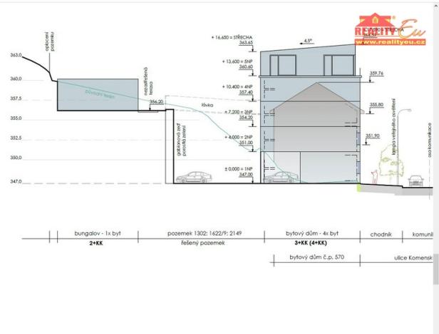
Pozemek s pravomocným stavební povolením na výstavbu bytového domu v centru Náchoda. Jedná se o individuální možnost vybudování objektu bytového domu o 4 moderních bytových jednotkách a jednotce bungalového typu s odpovídajícím množstvím parkovacích stání.
1. NP parkovací stání, vstup do výtahu a technické místnosti
2. NP BJ 4 kk o výměře 93 m²
3. NP BJ 4 kk o výměře 93 m² a BJ bungalov s terasou 2 kk o výměře 63 m²
4. NP BJ 3 kk s balkonem / terasou o výměře 74 m²
5. NP BJ 4 kk s lodžii o výměře 93 m²
Projekt oslovuje zájemce o kvalitnější moderní bydlení, pro něž je současná ,,seconhandová“ bytů nabídka nedostačující. U výstavby se počítá s připojením na obecní vodu, kanalizaci, plyn a elektřinu. Všechny tyto sítě jsou v přiléhající komunikaci. Právoplatné stavební povolení bylo vydáno na jaře 2024. Pozemek je v současné době beze staveb a oplocen. Prodej daného projektu je formou podílu v jednoúčelové společnosti.

Makléř

Máte zájem o tento pozemek?

Tímto, v souladu s nařízením Evropského parlamentu a Rady (EU) 2016/679, v platném znění, prohlašuji, že mi je alespoň 16 let a uděluji tak svůj souhlas se zpracováním zadaných údajů (jméno, telefon, e-mail, ip adresa) společnosti B3 Technology, s.r.o., IČ: 07330600, se sídlem Novostavby 126/23, 435 11 Lom (správce dat), za účelem předání dotazu z tohoto formuláře Vámi vybranému inzerentovi a zpětného kontaktování mé osoby. Osobní údaje bude správce zpracovávat manuálně i automaticky přímo prostřednictvím svých zaměstnanců. Informace předané tímto formulářem budou uloženy v databázi správce maximálně po dobu 10 let. Odvolání souhlasu s uložením a zpracováním poskytnutých dat lze e-mailem na info@origo-reality.cz. V případě podezření na neoprávněné použití Vámi poskytnutých údajů máte právo předat podnět k šetření Úřadu pro ochranu osobních údajů. Více informací
Chystáte se prodat nemovitost?
Pomůžeme Vám!
Theleadway banner

Přihlášení k odběru

Nenechte si ujít nejnovější nabídky prodeje pozemků pro bydlení v Náchodě.